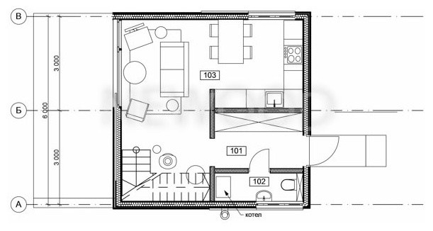
Данный проект позволяет по новому взглянуть на дачную традицию деревянных домов 6х6. . . Дом предназначен для молодых, современных людей. . . Двухэтажный деревянный дом «Куб», полностью соответствуя своему названию, имеет четкую геометрическую форму. . . В отделке фасадов используются такие материалы, как светлый планкен из лиственницы и темная бакелизированная фанера. Во время отсутствия хозяев, в целях безопасности, каждое окно может быть закрыто раздвижными ставнями. . . Несмотря на небольшие размеры площади, дом вмещает в себя все необходимое для комфортной жизни.
Год реализации: 2015
11 фотографий











