
Архитекторы
5
·
10 отзывов
Forester shack
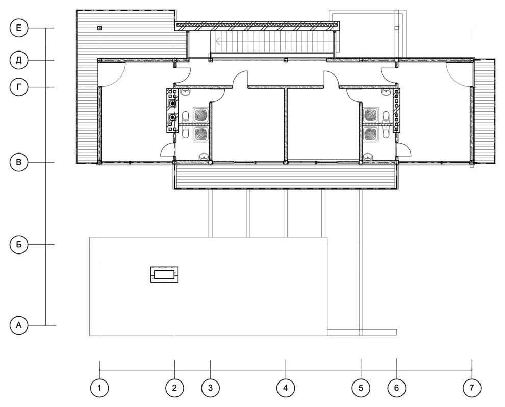
Дом площадью 265 кв. м. исполнен с оглядкой на традиции органической архитектуры. Активно задействованные на фасадах дерево и камень играют ключевую роль в формировании архитектурного облика здания. Камень, использованный в отделке первого этажа, создает ощущение монолитности и основательности. Второй этаж конструктивно выполнен из дерева, он как бы парит над основанием дома. . . Дом имеет 2 надземных этажа и пристроенную террасу-барбекю.
Другие фотографии в проекте
Вопросы к фото 0
Задайте вопрос
Вам ответят эксперты. Пришлем уведомление, когда вам ответят




