Forester shack

Другие фотографии в проекте Forester shack

Forester shack
Forester shack
Forester shack
Forester shack
Forester shack

Вопросы к фото 0

Задайте вопрос

Вам ответят эксперты. Пришлем уведомление, когда вам ответят

Деревянный дом из клееного бруса, Контемпорари, Москва, архитектурный проект, деревянный дом, каркасный дом, проект современного дома, современный деревянный дом, фахверк

Дмитрий Боровский

Дмитрий Боровский

Архитекторы

Смотреть профиль

2

отзыва

5

Рейтинг

Forester shack

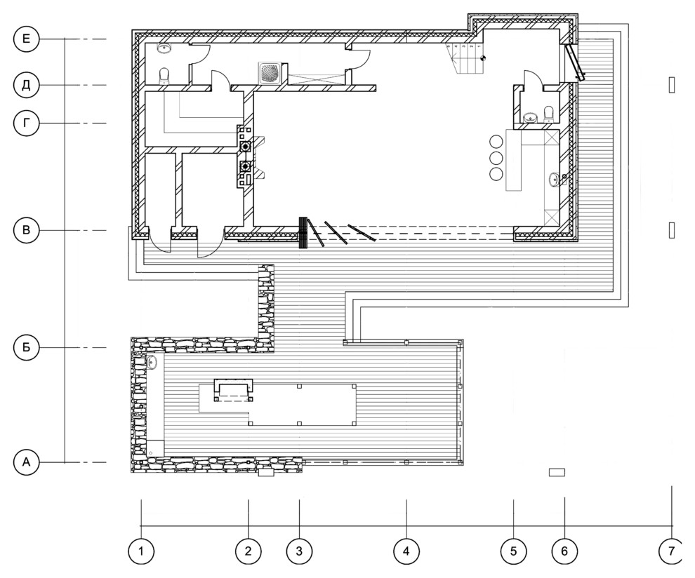
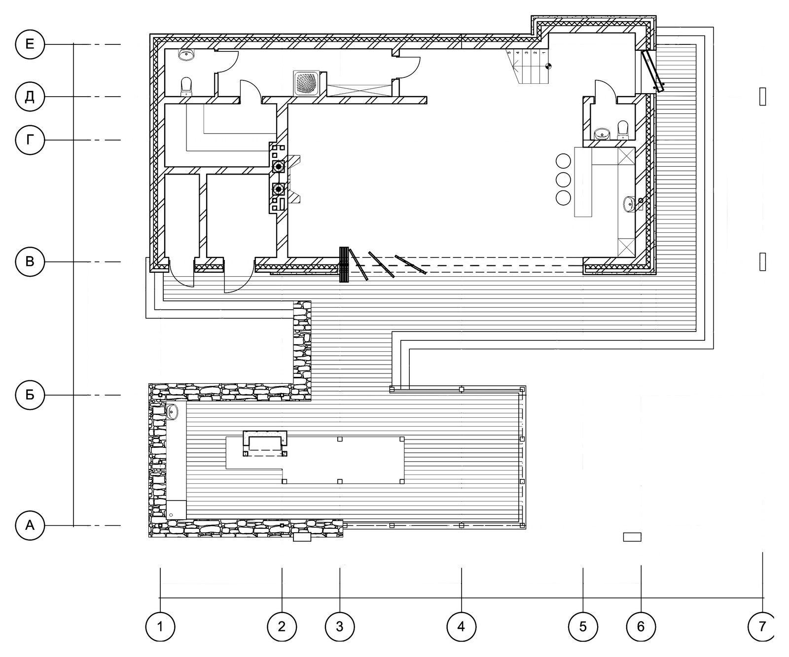
Дом площадью 265 кв. м. исполнен с оглядкой на традиции органической архитектуры. Активно задействованные на фасадах дерево и камень играют ключевую роль в формировании архитектурного облика здания. Камень, использованный в отделке первого этажа, создает ощущение монолитности и основательности. Второй этаж конструктивно выполнен из дерева, он как бы парит над основанием дома. . . Дом имеет 2 надземных этажа и пристроенную террасу-барбекю.

Вопросы к фото 0