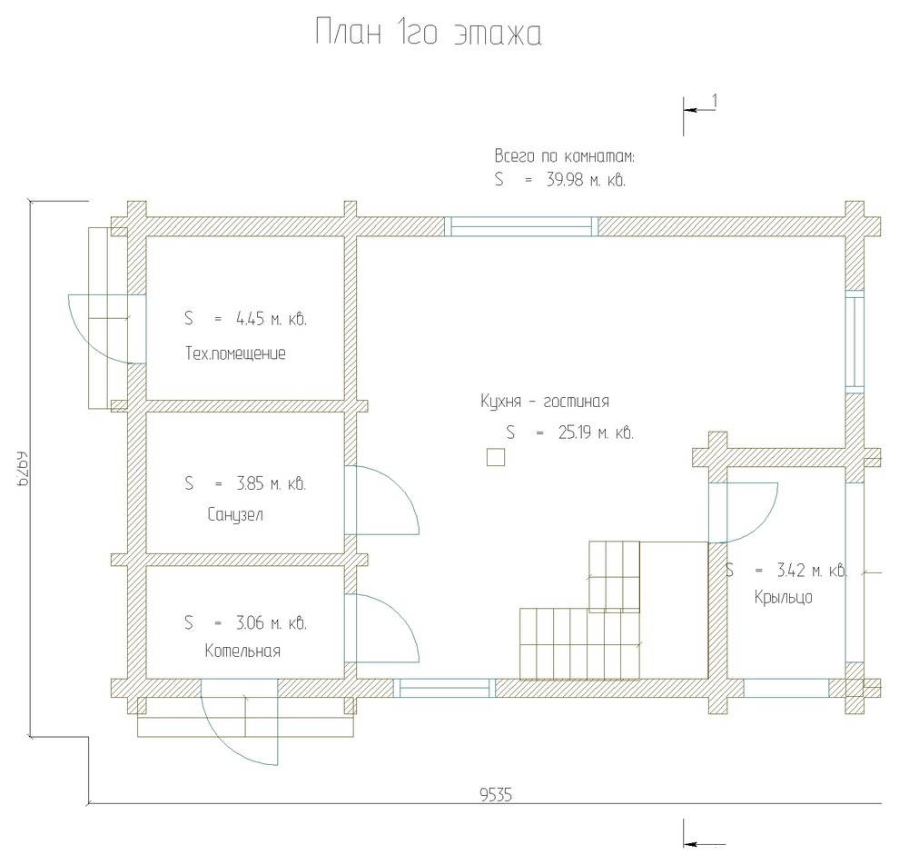
Профиль пользователяДвухэтажный дом 78м2 из бруса 220х140 — проект 192Год реализации: 2018Стоимость проектирования: 34 999 ₽г. Краснодар5 фотографийПоделитьсяСохранитьДвухэтажный дом 78м2 из бруса 220х140 — проект 192ПоделитьсяСохранитьДвухэтажный дом 78м2 из бруса 220х140 — проект 192ПоделитьсяСохранитьДвухэтажный дом 78м2 из бруса 220х140 — проект 192ПоделитьсяСохранитьДвухэтажный дом 78м2 из бруса 220х140 — проект 192ПоделитьсяСохранитьДвухэтажный дом 78м2 из бруса 220х140 — проект 192ПоделитьсяСохранить