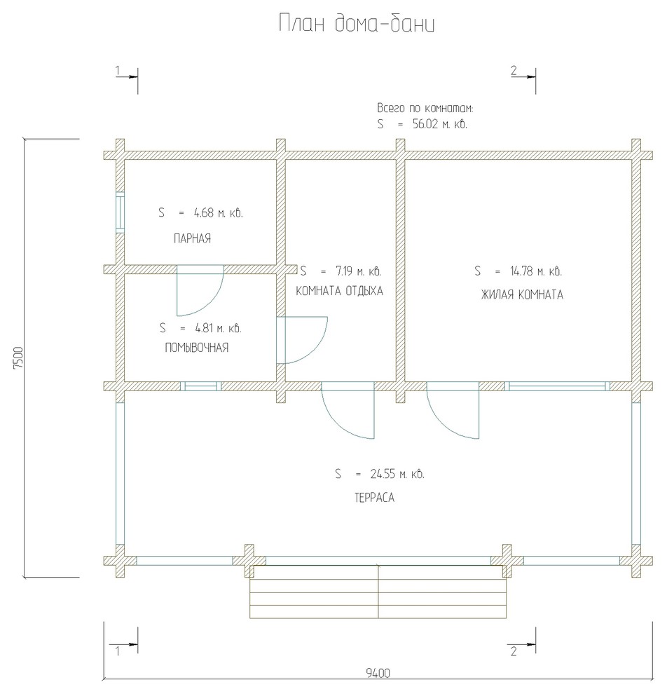
Профиль пользователяДом-баня 56м2 из бруса 150х150 — проект 276Год реализации: 2017Стоимость проектирования: 34 999 ₽г. Краснодар4 фотографииПоделитьсяСохранитьДом-баня 56м2 из бруса 150х150 — проект 276ПоделитьсяСохранитьДом-баня 56м2 из бруса 150х150 — проект 276ПоделитьсяСохранитьДом-баня 56м2 из бруса 150х150 — проект 276ПоделитьсяСохранитьДом-баня 56м2 из бруса 150х150 — проект 276ПоделитьсяСохранить