
Другие фотографии в проекте Дом-баня 56м2 из бруса 150х150 — проект 276
Вам ответят эксперты. Пришлем уведомление, когда вам ответят
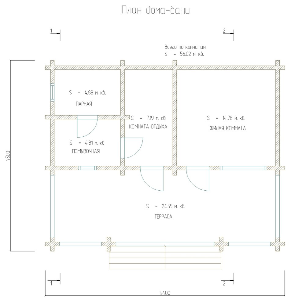
Андрей Липовка . Дом-баня 56м2 из бруса 150х150 — проект 276 . Проект дома-бани, общей площадью 56м2. . Материал — брус 150х150 . В доме-бане предусмотрены: . терраса . жилая комната . комната отдыха . помывочная . парная . Для строительства дома-бани вам понадобится: . Брус 150х150 — 29,09м3 . Вспомогательный пиломатериал — 10,64м3 . Межвенцевой утеплитель джут — 1380м.п. . Кровельный материал — 100м2