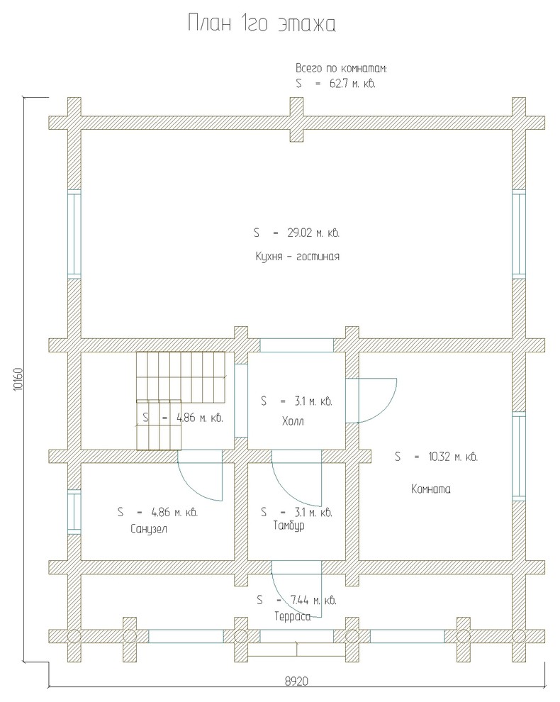
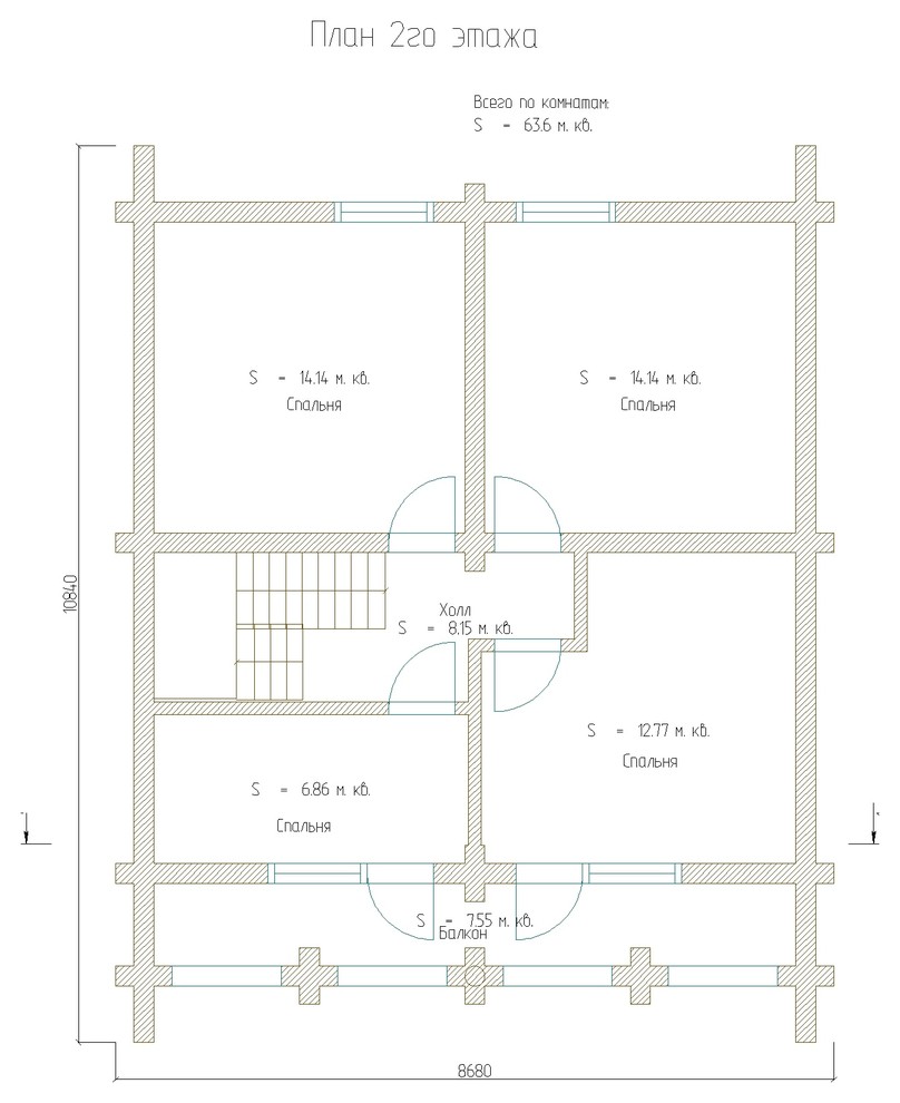
Профиль пользователяДвухэтажный дом 126м2 из бревна 240мм — проект 386Год реализации: 2017Стоимость проектирования: 34 999 ₽г. Краснодар5 фотографийПоделитьсяСохранитьДвухэтажный дом 126м2 из бревна 240мм — проект 386ПоделитьсяСохранитьДвухэтажный дом 126м2 из бревна 240мм — проект 386ПоделитьсяСохранитьДвухэтажный дом 126м2 из бревна 240мм — проект 386ПоделитьсяСохранитьДвухэтажный дом 126м2 из бревна 240мм — проект 386ПоделитьсяСохранитьДвухэтажный дом 126м2 из бревна 240мм — проект 386ПоделитьсяСохранить