
Другие фотографии в проекте Двухэтажный дом 126м2 из бревна 240мм — проект 386
Вам ответят эксперты. Пришлем уведомление, когда вам ответят
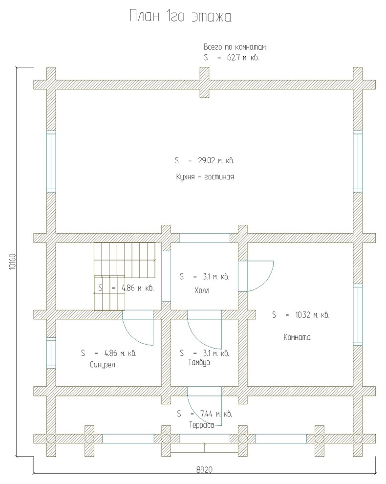
Андрей Липовка . Проект двухэтажного дома с террасой и 4 спальнями. Общая площадь дома — 126м2. . Материал — оцилиндрованное бревно 240мм . В доме предусмотрены: . терраса . кухня-гостиная . санузел . тамбур . комната . 4 спальни . балкон . Для строительства дома вам понадобится: . Оцилиндрованное бревно 240мм — 86,72м3 . Вспомогательный пиломатериал — 14,6м3 . Межвенцевой утеплитель джут — 2250м.п. . Кровельный материал — 138м2