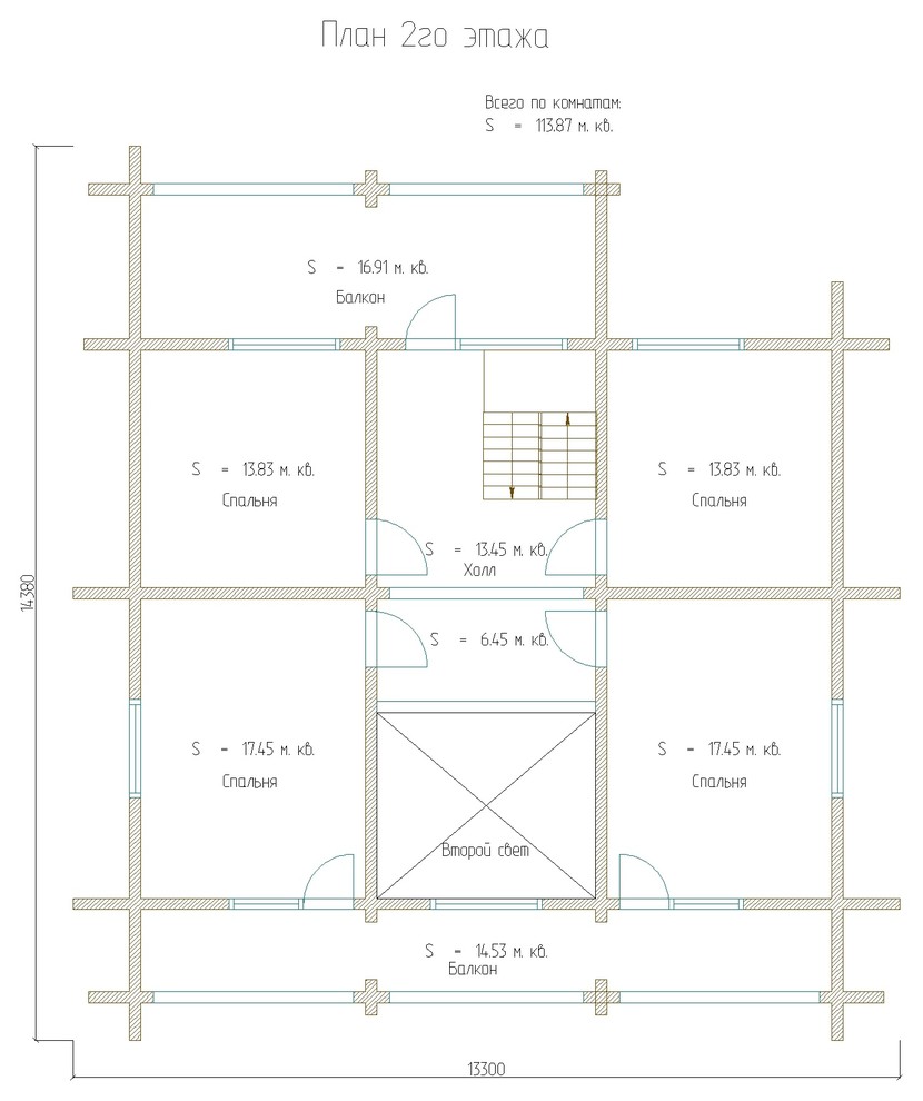
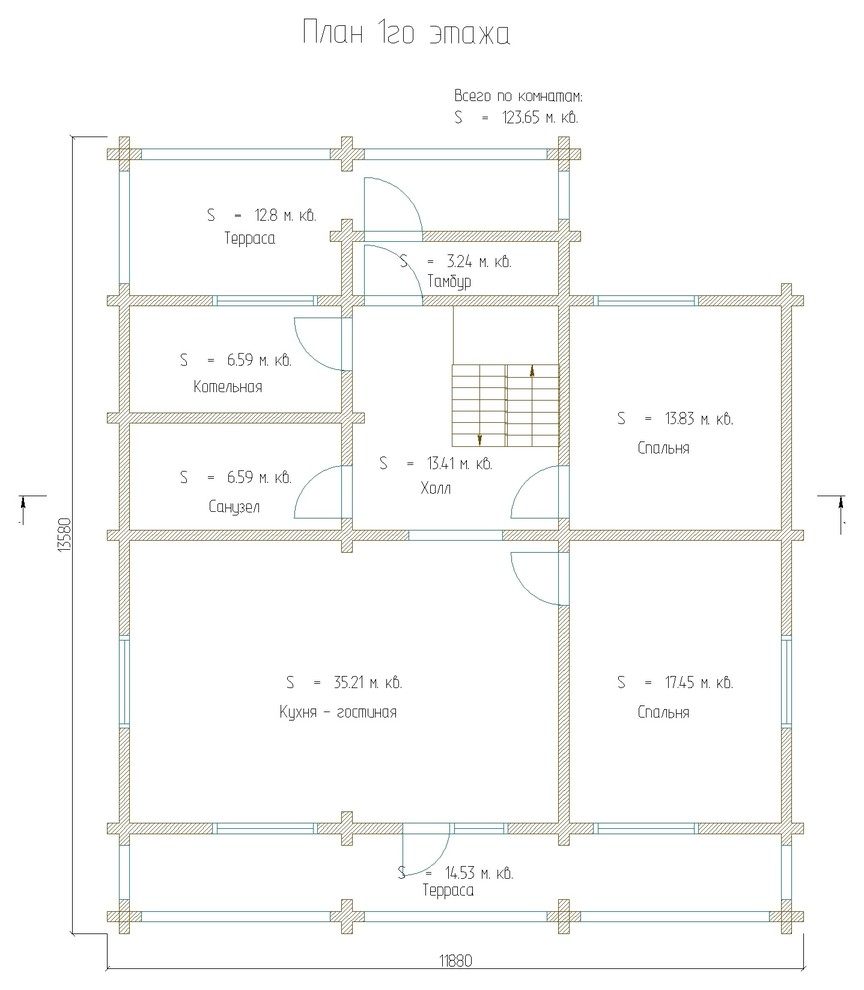
Профиль пользователяДвухэтажный дом 237м2 из бруса 180х180 — проект 281Год реализации: 2017Стоимость проектирования: 34 999 ₽г. Краснодар5 фотографийПоделитьсяСохранитьДвухэтажный дом 237м2 из бруса 180х180 — проект 281ПоделитьсяСохранитьДвухэтажный дом 237м2 из бруса 180х180 — проект 281ПоделитьсяСохранитьДвухэтажный дом 237м2 из бруса 180х180 — проект 281ПоделитьсяСохранитьДвухэтажный дом 237м2 из бруса 180х180 — проект 281ПоделитьсяСохранитьДвухэтажный дом 237м2 из бруса 180х180 — проект 281ПоделитьсяСохранить