Дом в Потапово
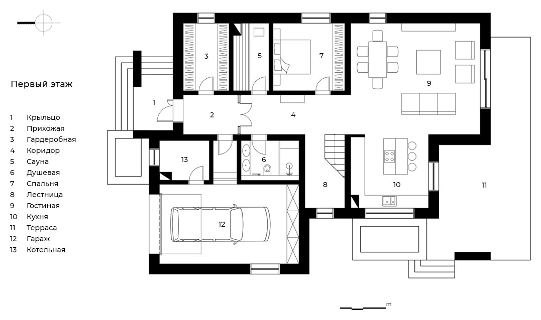
К моменту начала работы над данным проектом, у заказчиков, молодой интеллигентной семьи, было ясное представление желаемого облика будущего дома. Озвученные желания в полной мере совпали в нашим видением архитектуры, поэтому дальнейший процесс проектирования не имел значительных ограничений. На сравнительно небольшом участке нам удалось разместить строение, включающее в себя все необходимые для комфортной жизни помещения. На первом этаже расположены гостиная, кухня и столовая, пространство которых является единым и благодаря большим оконным порталам плавно перетекает на просторную террасу. На втором этаже расположены спальни и ванные комнаты для всех членов семьи. Функциональность внутреннего пространства отражена в архитектуре строения и подчеркнутра сочетанием простых геометрических форм с минимальным количеством отделочных материалов.
6 фотографий







