Дом в Воскресенском
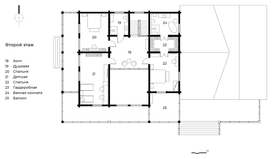
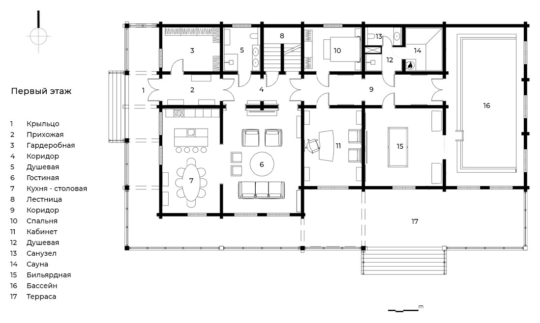
Современный особняк из кедра - идеальное место для жизни большой семьи. Природные оттенки и материалы, в сочетании с современными формами архитектуры, наполняют интерьер энергией. Большие панорамные окна, обращенные в сторону леса, визуально объединяют внутреннее пространство дома с природой. Планировочным решением предусмотрено пространство для отдыха, включающее просторные помещения бассейна и бильярдной. Обстановка сочетает в себе комфортные диваны и кресла B&B Italia, мебель от Poliform, Alivar и Poltrona Frau, а также предметы мебели, разработанные авторами проекта.
Год реализации: 2016
Стоимость проектирования: 2 450 000 ₽
12 фотографий













