Дом в Потапово

Другие фотографии в проекте Дом в Потапово

Дом в Потапово
Дом в Потапово
Дом в Потапово
Дом в Потапово
Дом в Потапово

Вопросы к фото 0

Задайте вопрос

Вам ответят эксперты. Пришлем уведомление, когда вам ответят

contemporary house, Архитектура, Москва, Современный, дом, дом минимализм, дом москва, жилой дом, план, планировка, планировочное решение, планкен, современный дом, фальцевая кровля, фасад

Дмитрий

Дмитрий

Дизайнеры интерьера

Смотреть профиль

9

отзывов

5

Рейтинг

Дом в Потапово

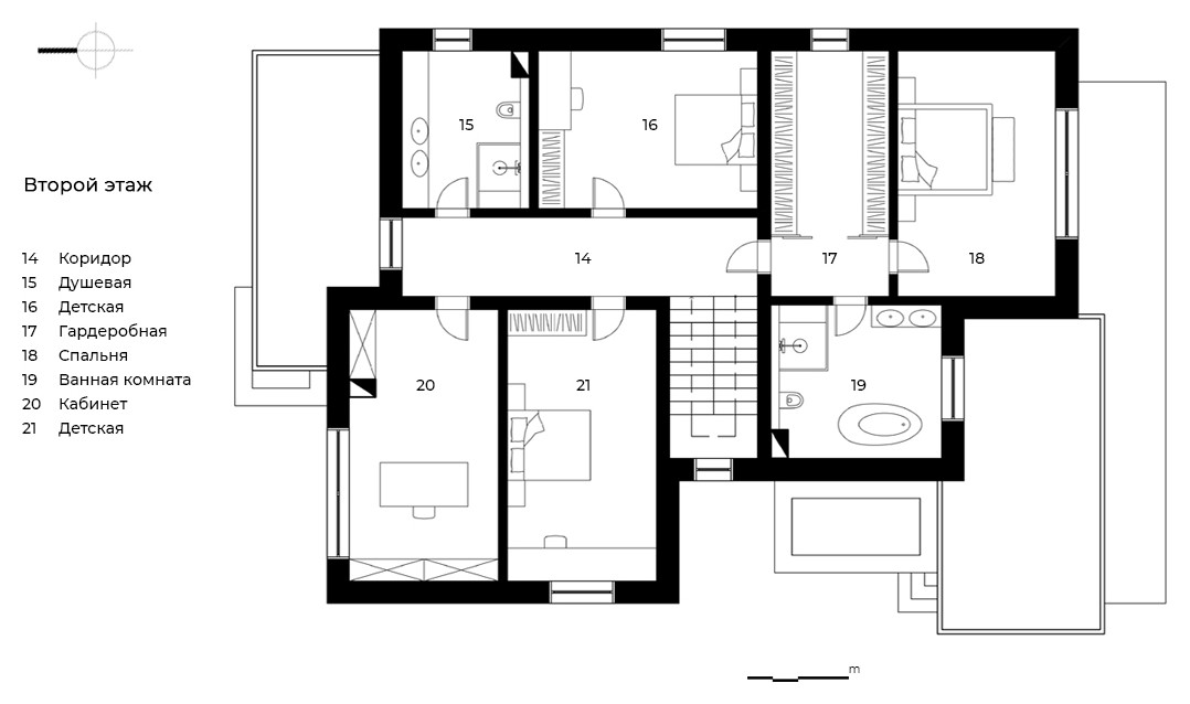
К моменту начала работы над данным проектом, у заказчиков, молодой интеллигентной семьи, было ясное представление желаемого облика будущего дома. Озвученные желания в полной мере совпали в нашим видением архитектуры, поэтому дальнейший процесс проектирования не имел значительных ограничений. На сравнительно небольшом участке нам удалось разместить строение, включающее в себя все необходимые для комфортной жизни помещения. На первом этаже расположены гостиная, кухня и столовая, пространство которых является единым и благодаря большим оконным порталам плавно перетекает на просторную террасу. На втором этаже расположены спальни и ванные комнаты для всех членов семьи. Функциональность внутреннего пространства отражена в архитектуре строения и подчеркнутра сочетанием простых геометрических форм с минимальным количеством отделочных материалов.

Вопросы к фото 0