Дача в СНТ Рябинка
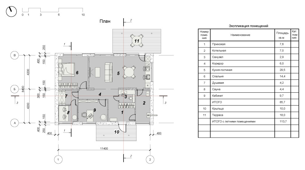
Проект дачи в СНТ #Рябинка . Проектирование: 2024 . Статус: идет строительство . . Скромный одноэтажный дом с энергоэффективной однослойной кладкой из газобетона D300 задуман изначально как дача, но с возможностью проживания зимой в выходные и праздники. В связи с этим, объект должен получиться не слишком дорогим в застройке, но тем не менее отвечающим требованиям к постройкам всесезонного использования. Принята простая конструктивная система: пятистенок с двускатной крышей на наслонных стропилах. Отсутствует подшива свесов. . . . Фундамент: мелкозаглубленная монолитная ж/б лента с теплоизоляцией отмостки; . Полы: монолитная ж/б плита по песчанному основанию; . Наружные стены: кладка из газобетонного блока D300 400мм; . Внутренние стены и перегородки: из газобетонного блока D600 . Фронтоны: деревянный каркас; . Крыша: деревянная стропильная система. . . Отделка: . Тонкослойная штукатурка по газобетону; . Отделка сухим строганым бруском на основании из влагостойкой фанеры; . Крыльцо и терраса покрыты палубной доской из массива лиственницы.
25 фотографий


























