
Архитекторы
0
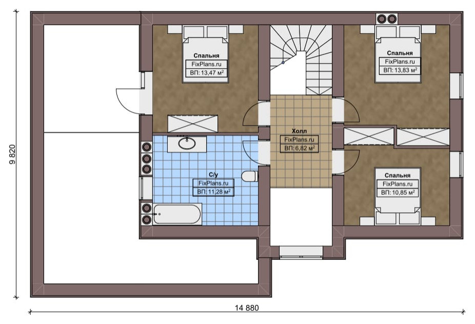
Проект двухэтажного дома 10х16 м S184м2 F-16298
Количество этажей |2|;, Количество спален |3|;, Площадь |183.62| м2;, Материал |Газобетон;, Материал фасада |Штукатурный ;, Тип фундамента |Фундаментная плита;, Тип кровли |Скатная;, Материал кровли |Фальцевая кровля;, Тип строения |Жилой дом;, Вид поставки |Бумажная версия;, В проект входят| кухня, кухня-столовая, гостиная, ванная, санузел;, Мансардный этаж |Нет;, Количество ванных комнат ||;, Крыша |2-скатная;, Гараж |;, Стиль |Европейский;, Терраса |Нет;, Цоколь |Нет;, Балкон |Нет;, Второй свет |;, Сауна/баня |Нет;, Бассейн |Нет;, Спортзал |Нет;, Количество жилых комнат |3|;, Количество санузлов ||;, Лоджия |Нет;, Мансарда |Нет;, Чердак |Да;
Другие фотографии в проекте
Вопросы к фото 0
Задайте вопрос
Вам ответят эксперты. Пришлем уведомление, когда вам ответят
Похожие фотографии

Проект дома с мансардой 11х12 м S108м2 F-14759
Ерванд Григорян

Проект одноэтажного дома 34х26м S428м2 F-17216
Ерванд Григорян

Проект дома с мансардой 8х13 м S127м2 F-17810
Ерванд Григорян

Проект дома с мансардой 12х13 м S176м2 F-17729
Ерванд Григорян

Проект двухэтажного дома 14х12 м S220м2 F-18026
Ерванд Григорян

Проросший сквозь берёзы жилой дом
Свежая идея для дизайна: двухэтажный, бежевый частный загородный дом среднего размера в классическом стиле с комбинированной облицовкой, вальмовой крышей и металлической крышей - отличное фото интерьера
Архитектор Малюгин

Возведение стен 2-го этажа
Стильный дизайн: двухэтажный, бежевый частный загородный дом среднего размера в классическом стиле с комбинированной облицовкой, вальмовой крышей и металлической крышей - последний тренд
Архитектор Малюгин

Отделка дома
Свежая идея для дизайна: двухэтажный, бежевый частный загородный дом среднего размера в классическом стиле с облицовкой из винила, двускатной крышей и металлической крышей - отличное фото интерьера
Сергей Габрилёв

Отделка дома
На фото: двухэтажный, бежевый частный загородный дом среднего размера в классическом стиле с облицовкой из винила, двускатной крышей и металлической крышей
Сергей Габрилёв

Отделка дома
Пример оригинального дизайна: двухэтажный, бежевый частный загородный дом среднего размера в классическом стиле с облицовкой из винила, двускатной крышей и металлической крышей
Сергей Габрилёв

Проект одноэтажного дома 15х16м S305м2 F-14669
Ерванд Григорян

Проект дома с мансардой 9х9 м S104м2 F-14660
Ерванд Григорян




