
Архитекторы
0
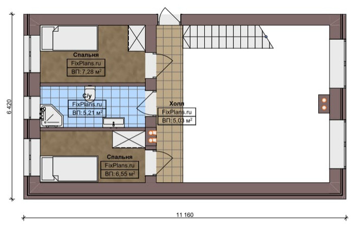
Проект дома с мансардой 11х12 м S108м2 F-14759
Количество этажей |1|;, Количество спален |3|;, Площадь |108.03| м2;, Материал |Керамический поризованный блок;, Материал фасада |Облицовочный кирпич ;, Тип фундамента |Фундаментная плита;, Тип кровли |Скатная;, Материал кровли |Металлочерепица;, Тип строения |Жилой дом;, Вид поставки |Бумажная версия;, В проект входят| котельная, гардеробная, кухня, кухня-столовая, гостиная, ванная, кабинет, санузел;, Мансардный этаж |Да;, Количество ванных комнат |3|;, Крыша |2-скатная;, Гараж |;, Стиль |Европейский;, Терраса |Нет;, Цоколь |Нет;, Балкон |Нет;, Второй свет |;, Сауна/баня |Нет;, Бассейн |Нет;, Спортзал |Нет;, Количество жилых комнат |3|;, Количество санузлов |3|;, Лоджия |Нет;, Мансарда |Да;, Чердак |Нет;
Другие фотографии в проекте
Вопросы к фото 0
Задайте вопрос
Вам ответят эксперты. Пришлем уведомление, когда вам ответят
Похожие фотографии

Проект дома с мансардой 9х9 м S104м2 F-14660
Ерванд Григорян

Проект двухэтажного дома 13х13 м S267м2 F-14723
Ерванд Григорян

Проект двухэтажного дома 10х16 м S184м2 F-16298
Ерванд Григорян

Проект дома с мансардой 10х12 м S161м2 F-17387
Ерванд Григорян

Проект дома с мансардой 8х13 м S127м2 F-17810
Ерванд Григорян

Кирпичный 2-этажный дом 9.22 х 9.22, общ. S - 121 кв.м
Стильный дизайн: двухэтажный, кирпичный, желтый частный загородный дом среднего размера в классическом стиле с двускатной крышей и металлической крышей - последний тренд
Стройдом 34

Проект одноэтажного дома 15х16м S305м2 F-14669
Ерванд Григорян

Проект одноэтажного дома 13х9м S66м2 F-14750
Ерванд Григорян

Проект одноэтажного дома 8х12м S70м2 F-14876
Ерванд Григорян

Проект одноэтажного дома 13х16м S122м2 F-15398
Ерванд Григорян

Проект одноэтажного дома 15х11м S104м2 F-15344
Ерванд Григорян

Проект дома с мансардой 13х14 м S268м2 F-15947
Ерванд Григорян




