
Архитекторы
0
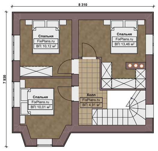
Проект дома с мансардой 8х8 м S80м2 F-17477
Количество этажей |1|;, Количество спален |4|;, Площадь |79.7| м2;, Материал |Газобетон;, Материал фасада |Планкен ;, Тип фундамента |Ленточный;, Тип кровли |Скатная;, Материал кровли |Металлочерепица;, Тип строения |Жилой дом;, Вид поставки |Бумажная версия;, В проект входят| кухня, кухня-столовая, гостиная, ванная, санузел;, Мансардный этаж |Да;, Количество ванных комнат |1|;, Крыша |Сложная;, Гараж |;, Стиль |Европейский;, Терраса |Нет;, Цоколь |Нет;, Балкон |Нет;, Второй свет |;, Сауна/баня |Нет;, Бассейн |Нет;, Спортзал |Нет;, Количество жилых комнат |4|;, Количество санузлов |1|;, Лоджия |Нет;, Мансарда |Да;, Чердак |Нет;
Другие фотографии в проекте
Вопросы к фото 0
Задайте вопрос
Вам ответят эксперты. Пришлем уведомление, когда вам ответят
Похожие фотографии

Проект дома с мансардой 21х24 м S297м2 F-17144
Ерванд Григорян

Проект дома с мансардой 11х15 м S159м2 F-15164
Ерванд Григорян

Проект дома с мансардой 8х8 м S83м2 F-15668
Ерванд Григорян

Проект дома с мансардой 11х7 м S53м2 F-14642
Ерванд Григорян

Проект одноэтажного дома 15х11м S104м2 F-15344
Ерванд Григорян

Проект одноэтажного дома 16х13м S145м2 F-16424
Ерванд Григорян

Проект одноэтажного дома 17х20м S265м2 F-16451
Ерванд Григорян

Проект одноэтажного дома 33х21м S708м2 F-17162
Ерванд Григорян

Проект одноэтажного дома 21х19м S255м2 F-17081
Ерванд Григорян

Проект одноэтажного дома 13х16м S161м2 F-17450
Ерванд Григорян

Проект дома с мансардой 13х10 м S138м2 F-17324
Ерванд Григорян

Проект двухэтажного дома 13х12 м S154м2 F-17414
Ерванд Григорян




