
Дизайнеры интерьера
0
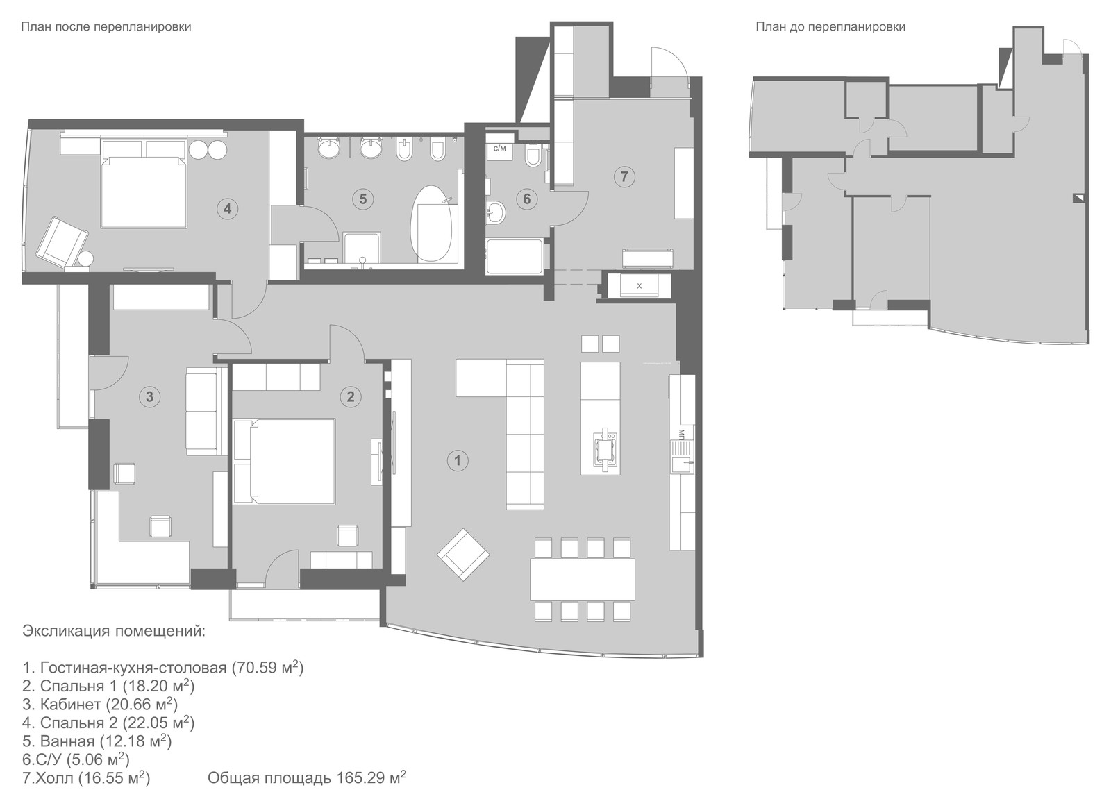
КУТУЗОВСКАЯ РИВЬЕРА
Архитектурное бюро Materia 174 - Bureau of Architecture Materia 174
Другие фотографии в проекте
Вопросы к фото 0
Задайте вопрос
Вам ответят эксперты. Пришлем уведомление, когда вам ответят
Ванная комната, Москва, Переходный
Похожие фотографии

Двухуровневая квартира с характером | современный дизайн интерьера
NEAPOL DESIGN | Татьяна и Дарья

Бутик-отель ЛетягинЪ
Ульяна Бойкова
Бюргерский уют
Марсель Искандаров

Гоголевский
Светлана Озерова

Квартира на Ленинском проспекте
Квартира для супружеской пары с маленькими детьми на юго-западе Москвы. . . Заказчики приобрели жилье с нестандартной планировкой — кухня с видом из окна на спальню, большой коридор и отсутствие мест хранения при общей площади 120 кв. метров. Мы вернули кухню на законное место, спроектировали кладовую, построчную, продумали функциональный второй санузел, вместительные зоны хранения и общее пространство кухни-столовой-гостиной. В процессе разработки визуальной части проекта заказчица очень удивилась вкусовым предпочтениям мужа. Как оказалось, он не равнодушен к цвету — ему хотелось наполнить пространство яркими красками! Насыщенная цветовая гамма идеально подошла этой солнечной квартире. Помимо светло-серого и нейтрального серо-бежевого значительную роль в проекте играют акценты — оттенки зеленого, синий, ягодный и горчичный. При этом мы использовали приглушенную палитру, за счет чего в интерьере не возникает дисбаланса. Молдинги для скрытого освещения работают на расширение, визуально вытягивая пространство в высоту. Цвет потолка мы перенесли частично на стену, тем самым стерли границы и сконцентрировали внимание на черной линии.
Анна Зуева

Серпухов
Проект представляет собой гармоничное слияние математической точности и технологичного хаоса, вдохновлённое представленными цифровыми паттернами. . Мы создали среду, где каждый элемент подчиняется скрытому алгоритму, но сохраняет художественную выразительность. . .
Анна Моджаро

La musique... Интерьер квартиры в стиле ар-деко
Анна Колесникова

г. Москва, ЖК LIFE Ботанический Сад 2
Светлана Краснова

Дизайн двухкомнатной квартиры 65кв.м в центе города для молодой девушки.
Виктория Харченко

Дизайн двухкомнатной квартиры 65кв.м в центе города для молодой девушки.
Виктория Харченко

ЖК Vincent реализация
Главной задачей стояло создание комфортного и уютного пространства для жизни, которое бы вселяло чувство спокойствия и умиротворения внутри оживленного и быстро развивающегося квартала, в котором расположена квартира. Стилистика интерьера была продиктована концепцией жилого комплекса, которая построена на основных принципах голландской архитектуры, а именно: функциональность, простые цветовые сочетания и использование натуральных материалов.
Тимур Минюшов

Spalnyavdome
Ирина Швецова




