

Алена Прядко
Дизайнеры интерьера
Отзывы о: Алена Прядко 0
Нет отзывов
Об эксперте
Об опыте
Сегодня Архитектурное бюро Materia 174 - это два современных офиса в Киеве и Харькове, и команда профессионалов, которая успешно проектирует частные и коммерческие объекты – современные апартаменты, лофты, коттеджи, виллы, концептуальные шоу-румы, клубы, отели и рестораны. Бюро успешно справляется с большими заказами благодаря эффективности, которая достигается корпоративной стратегией: создание доверительного контакта с заказчиком (максимальная сосредоточенность на его потребностях, минимальное вовлечение клиента в рабочий процесс), координация всех подразделений бюро в CRM-системе, безусловное выполнение заказа в оговоренные сроки. Принцип Materia 174 прост: хороший дизайн интерьера — это дизайн, проработанный до совершенства. Сущность стиля – это умение мыслить нешаблонно (ведь материя дизайна – это актуальные идеи), соблюдать баланс между функциональностью и эстетикой, смело экспериментировать с материалами, сочетать формы с характерным использованием цвета. Materia 174 пропагандирует интеллектуальный и очень качественный дизайн, предполагающий большую долю уникальности (индивидуальное проектирование мебели, освещения, предметов декора). Materia 174 – одно из востребованных архитектурных бюро. В активе - множество реализованных проектов с впечатляющей географией и удостоенных профессиональных премий. Бюро постоянно участвует в креативных проектах и демонстрирует свои работы на важнейших конкурсах архитектуры и дизайна.
Категории специализации
Архитекторы, Гардеробные и кладовые комнаты, Детские и пеленальные, Дизайнеры интерьера, Мебель и аксессуары, Плотницкие и столярные работы, Предметный дизайн, Проектирование и строительство, Художники и ремесленники
Услуги
Визуализация интерьера
Дизайн интерьера
Мебель на заказ
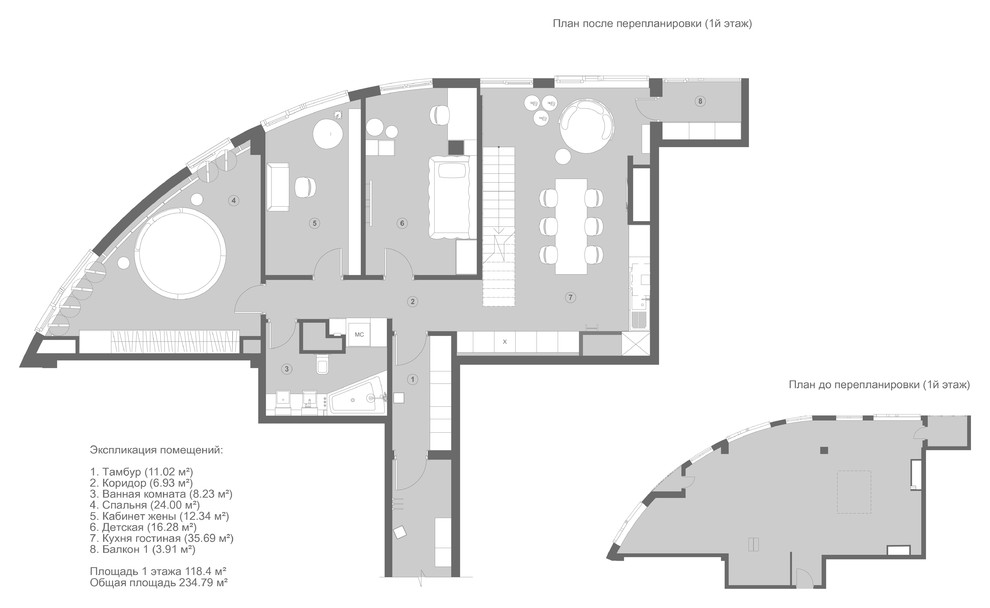
План дома
Планировка пространства
Альбомы идей 1





