
Дизайнеры интерьера
0
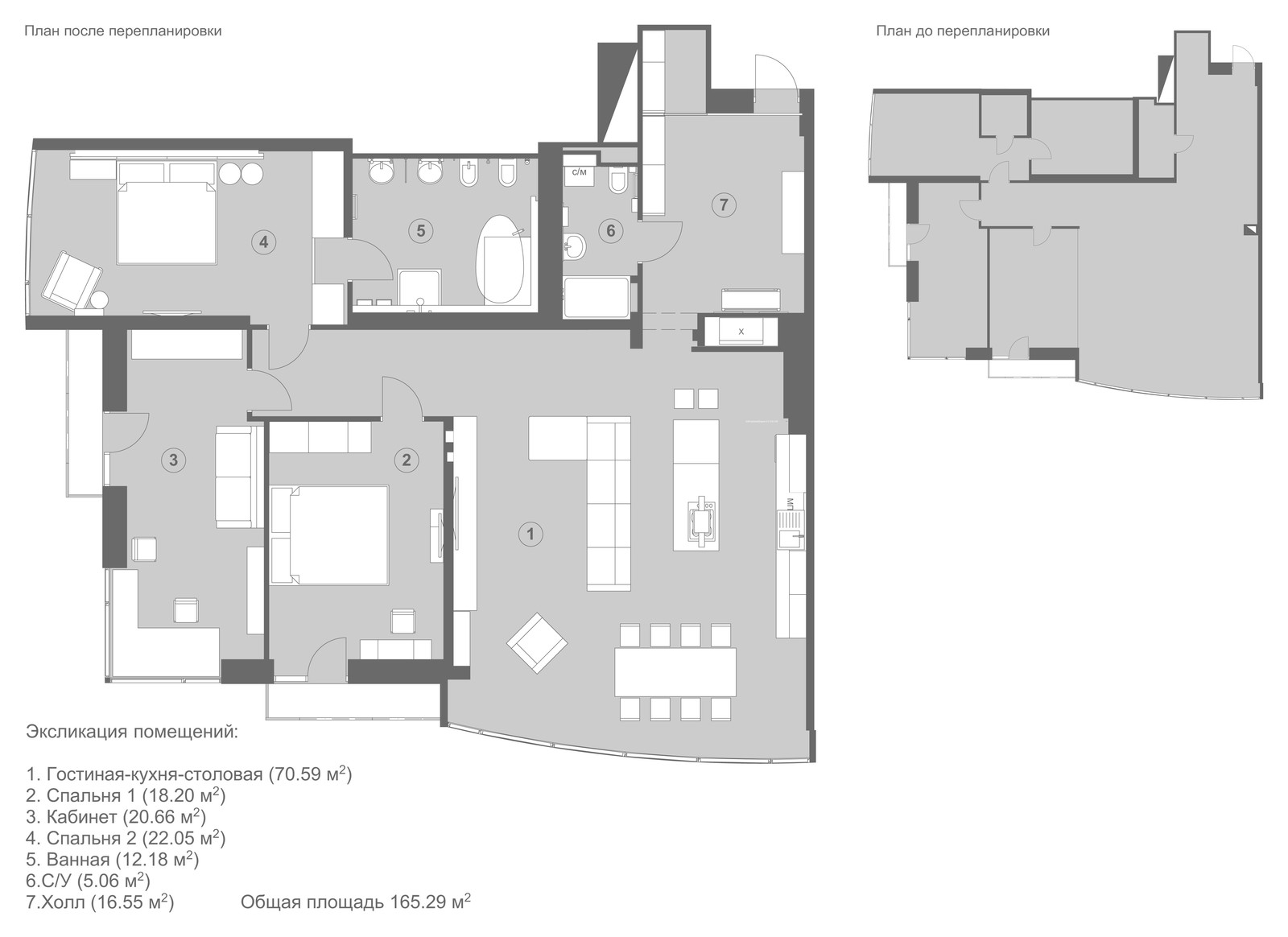
КУТУЗОВСКАЯ РИВЬЕРА
Время начала проектирования апартаментов в Москве пришлось на позднюю осень. Столица встретила меня хмурой погодой. В такое время хочется забраться под одеяло с чашкой теплого какао. А передо мной раскрывается огромное панорамное остекление с видом на парк, вот только холодная серая осень встречает меня черными колючками деревьев. . Заказчик родом с юга — привык к большому количеству солнца. А Москва никак не радует солнечными днями. Хотелось максимально побороть серую московскую погоду, чтобы в квартире всегда было хорошее настроение и хорошая погода. Стилистика — современная, максимально функциональное пространство . Все вещи подобраны с особой тщательностью. Для реализации поставленной задачи использовалась широкая палитра цветов, при этом необходимо было остаться в рамках жилого современного интерьера без перегибов. Все вещи подбирались с особой тщательностью, дабы каждая из них вызывала положительную эмоцию — на момент проектирования квартира являлась собранием лучших образцов новинок современного дизайна. . Душа требует тепла и цвета . Душа требует тепла и цвета, которые согреют жильцов этой квартиры до прихода весны. А там – хозяйка распахнет шторы и занавески и впустит буйство парковой зелени в дом, почти все стены которого выполнены из стекла. .
Другие фотографии в проекте
Вопросы к фото 0
Задайте вопрос
Вам ответят эксперты. Пришлем уведомление, когда вам ответят
Похожие фотографии

Apartments Neva Towers 1
Пример оригинального дизайна: гостиная комната среднего размера в современном стиле с бежевыми стенами, светлым паркетным полом, бежевым полом, многоуровневым потолком, панелями на части стены и акцентной стеной
Вадим Мартынов Екатерина Гатилова

Частная резиденция DRR
Свежая идея для дизайна: идея дизайна в современном стиле - отличное фото интерьера
Portner Architects

Вавилова 4
Стильный дизайн: гостиная комната в стиле неоклассика (современная классика) - последний тренд
Ира Носова

FESTIVAL FLAT
Пример оригинального дизайна: открытая, объединенная гостиная комната среднего размера, в белых тонах с отделкой деревом в современном стиле с белыми стенами, паркетным полом среднего тона, мультимедийным центром и коричневым полом
Екатерина

Гостиная
Пример оригинального дизайна: гостиная комната в современном стиле с коричневым диваном, паркетным полом среднего тона и потолком из вагонки без камина
Александра Протасова

Квартира ул Тверская
На фото: гостиная комната в стиле неоклассика (современная классика) с белыми стенами и многоуровневым потолком с
Олег Михайлов архитектор-дизайнер

Пентхаус в Краснодаре
На фото: идея дизайна в современном стиле с
Денис Мурый

Квартира в Палевском жилмассиве
Идея дизайна: открытая, объединенная гостиная комната среднего размера в скандинавском стиле с белыми стенами, полом из винила, коричневым полом и кирпичными стенами без телевизора
Дмитрий Дубровский

Зал
Источник вдохновения для домашнего уюта: гостиная комната в современном стиле с бежевыми стенами, светлым паркетным полом и бежевым полом
Дмитрий Галаганов

Квартира в ЖК "Василеостровский квартал"
Пример оригинального дизайна: гостиная комната в современном стиле с паркетным полом среднего тона и коричневым полом
Екатерина Савенко

Дом, умный дом(фотографии спальни)
Источник вдохновения для домашнего уюта: идея дизайна в современном стиле
Архитектурная студия Астар проект

Гостиная
Свежая идея для дизайна: маленькая открытая, объединенная гостиная комната в современном стиле с серыми стенами и серым полом без телевизора для на участке и в саду - отличное фото интерьера
Ольга Васильева




