

Anatoly Titov
Архитекторы

Отзывы о: Anatoly Titov 0
Нет отзывов
Об эксперте
Об опыте
Архитектурная студия Анатолия Титова занимается проектированием жилых и общественных зданий, дизайном интерьеров. Мы работаем с 2020 года. За это время было создано десятки проектов, многие из которых осуществлены. Работаем по всей России, есть опыт работы зарубежом, в Аргентине и США.
Категории специализации
Архитекторы, Гардеробные и кладовые комнаты, Декораторы и стилисты интерьера, Детские и пеленальные, Дизайнеры интерьера, Ландшафтные дизайнеры, Проектирование и строительство, Ремонт и отделка квартир и домов
Ценовой сегмент: ₽₽
Услуги
Архитектурное проектирование
Архитектурные чертежи
Архитектурный дизайн
Визуализация интерьера
Дизайн гостиной
Дизайн интерьера
Ландшафтный дизайн
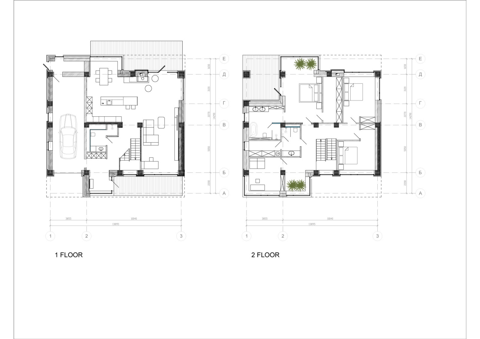
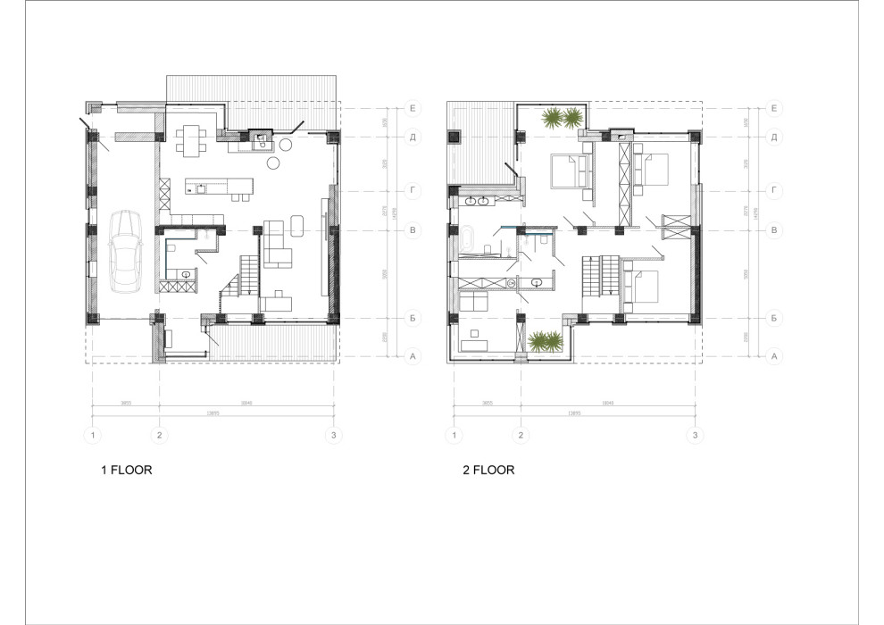
План дома
План этажа
Планировка пространства
Пристройки к дому
Проект дома на заказ
Ремонт квартиры
Реставрация домов и квартир
Строительство дома
Элитный ремонт
Альбомы идей 1
