
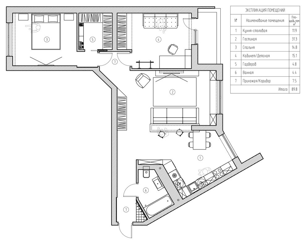
Цена проекта с фото: На что здесь ушло 453 120 ₽
Саша Зайцева
23
8 мая 2018
Обновлено 21 мая 2018
Постоянный автор Houzz, интерьерный журналист




7 л.
7 л.

Цена проекта с фото: На что здесь ушло 453 120 ₽
Саша Зайцева
23
![Обложка статьи: Зачем вам: Встроенная техника на кухне [7 аргументов]](https://static.flatica.ru/simgs/pictures/kitchens/storage-solutions-pull-out-drawer-kitchen-connections-img~69f163ab06d6efd8_9-1745/home-design.jpg)
Зачем вам: Встроенная техника на кухне [7 аргументов]
Houzz Россия
2

Фотоохота: 17 практичных идей для прихожей
Houzz Россия
9

Кухня недели: с зеркальным шкафом вместо фартука
Евгения Назарова
14
![Обложка статьи: Проект недели: Кухня 12 кв. м. с газовой колонкой [найдите ее]](https://static.flatica.ru/simgs/1891a52700377d3e_16-4617/home-design.jpg)
Проект недели: Кухня 12 кв. м. с газовой колонкой [найдите ее]
Houzz Россия
20

Детская недели: Комната мальчика по мотивам русского авангарда
Houzz Россия
16

4 кухни за 300–400 тысяч — Канск, Казань, Ростов-на-Дону и Питер
Саша Зайцева
1

Дизайн-дебаты: Нормально ли делать открытые полки на кухне
Дарья Дроздова
33

Цена спальни с фото: На что здесь ушло 906 900 ₽
Саша Зайцева
7

Вопрос: Стоит ли платить за дорогую кухонную фурнитуру
Ксения Розанцева
32

До и после: 7 санузлов, которые изменились до неузнаваемости
Саша Зайцева
51

Просто фото: Наклонные вытяжки для кухни (18 идей)
Houzz Россия
8

Зачем вам: Кран для налива воды над плитой
Houzz Россия
17

Проект недели: Крошечная кухня-ниша в гостиной
Houzz Россия
29

Проект недели: Спальня с проходной гардеробной и ванной комнатой
Houzz Россия
40

Кухня недели: 10 кв.м — на первом этаже
Houzz Россия
62

Проект недели: Графичная ванная комната для семьи с ребенком
Houzz Россия
3

Делай как дизайнер: Планируем гардеробные и кладовые
Екатерина Кулиничева
7
natalykr
7 л.