logo

Цена проекта с фото: Терраса под Екатеринбургом за 2 808 234 ₽

На застекленной террасе есть отопление и купель — отдыхать здесь можно и осенью. Публикуем подробную смету от дизайнера

Саша Зайцева
Саша Зайцева

22 окт. 2020

Обновлено 10 нояб. 2020

журналист, редактор

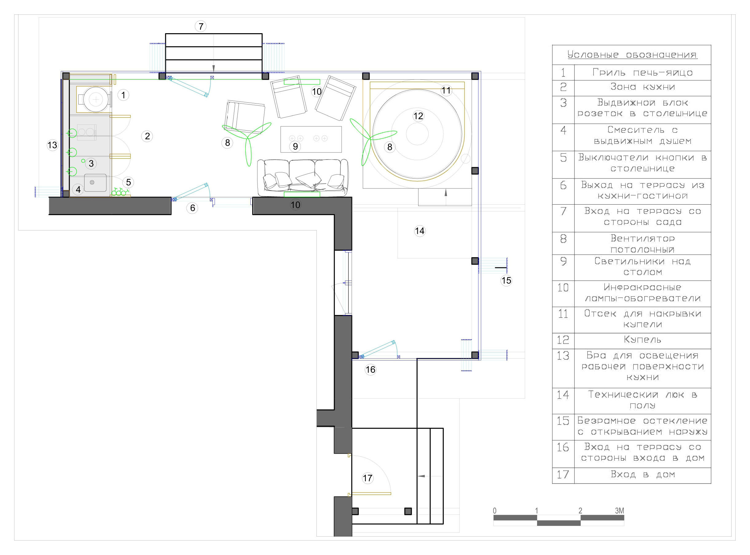
Клиенты екатеринбургского бюро LATOON / «ЛАТУНЬ» поставили дизайнерам задачу — создать комфортное место для отдыха на природе в немягких климатических условиях Урала. Houzz публикует проект недавно законченной остекленной террасы при загородном доме — с круглой купелью, печью, открытой кухней и зоной отдыха. Калькуляция собрана с незначительными округлениями.

РАНЕЕ ПО ТЕМЕ…
Цена проекта с фото: Сад на участке 20 соток за 13 112 836 ₽
Цена проекта с фото: Дача под Челябинском за 3 009 000 ₽
Цена проекта с фото: Терраса под Екатеринбургом за 2 808 234 ₽Елена Кропанева
ПРОЕКТ
Место: пригород Екатеринбурга
Площадь: 36 кв.м
Автор проекта: проектное бюро LATOON / «ЛАТУНЬ»
Съемка: Аскар Кабжан | Askar Kabjan
Год реализации: 2020
Сроки проектирования: февраль-июнь 2019
Сроки реализации (с перерывами из-за погодных условий): июнь 2019-го — май 2020
Цена проекта с фото: Терраса под Екатеринбургом за 2 808 234 ₽Елена Кропанева
Глава семьи увлекается охотой, любит и умеет готовить мясо (прямо с охоты может в гриле приготовить добытое), разбирается в алкоголе и очень гостеприимный хозяин. На этой веранде он реализовал свою давнюю мечту о летней кухне с печью-яйцом.

———————————————
В ВАШЕМ ГОРОДЕ…
Через Houzz можно нанять архитектора в любом городе и стране. Начать поиск специалиста
———————————————
Цена проекта с фото: Терраса под Екатеринбургом за 2 808 234 ₽Елена Кропанева
Освещение, техника и оборудование: 306 454 ₽
Печь-яйцо Monolith — 108 000 ₽.
Вытяжка, изготовлена на заказ — 10 500 ₽.
Бра над кухней, 3 шт., Китай — 4 542 ₽.
Светильники-подвесы над столом, 4 шт., Китай — 5 024 ₽.
Светильники потолочные, 9 шт. — 5 976 ₽.
Потолочные вентиляторы, 2 шт. — 26 000 ₽.
Инфракрасные обогреватели, 2 шт. — 42 000 ₽.
Кронштейны для колонок — 2 800 ₽.
Ленты подсветки, профиль, розетки и выключатели — 53 980 ₽.
Светильники в цоколе, 9 шт. — 3 225 ₽.
Фасадные светильники, на заказ, 7 шт. (проектирование, производство, монтаж) — 27 000 ₽.
Оборудование для трубы вытяжки — 17 407 ₽.
Цена проекта с фото: Терраса под Екатеринбургом за 2 808 234 ₽Елена Кропанева
Мебель и другие позиции: 477 160
Кухня с фурнитурой — 88 000 ₽.
Облицовка купели лиственницей — 65 000 ₽.
Смеситель — 17 660 ₽.
Столешница с раковиной из искусственного камня наружного применения — 121 800 ₽.
Мягкая мебель (диван и три кресла, на заказ) — 116 000 ₽.
Раскладной стол — 18 500 ₽.
Обшивка двери из лиственницы — 18 000 ₽.
Защита для накрывания купели — 32 200 ₽.
Цена проекта с фото: Терраса под Екатеринбургом за 2 808 234 ₽Елена Кропанева
НА ЧЕМ СЭКОНОМИЛИ

На системе остекления. Выбор был между финским, испанским и турецким производителями. Выбрали самый бюджетный вариант на рынке — турецкий (хотя бренд и зарегистрирован в Германии, производится система в Турции). Сэкономить получилось и за счет некоторых технических моментов: например, ролики, по которым перемещаются стекла, здесь пластиковые, а не резиновые. Толщина стекла 8 мм, а не 10 мм, как в финской системе. У террасы относительно небольшая высота остекления (2,7 м), поэтому упрощение технологий не являлось критичным для качества и безопасности. Сэкономили и на технических документах: они были подготовлены проектным бюро LATOON / «ЛАТУНЬ» — не пришлось платить компании-подрядчику. Значимый минус у выбора турецкого производителя был только один: пришлось ждать дольше. Более статусные бренды работают оперативнее.
Цена проекта с фото: Терраса под Екатеринбургом за 2 808 234 ₽Елена Кропанева
На декоративных светильниках (бра, подвесы и свет, встроенный в потолок). Выбирали изначально китайские no name, потому что в проекте светильники сугубо функциональны. Авторы проекта, зная нежелание заказчика тратиться на светильники, постарались сделать их почти незаметными: чтобы функция выполнялась, а сам светильник визуально почти отсутствовал. Использование светильников в жестких условиях — при ветре, разных температурах и не все месяцы в году, — повлияло на нежелание тратиться на бренды. Теперь заказчик спокоен: если такой светильник сломается, его будет просто заменить.
Цена проекта с фото: Терраса под Екатеринбургом за 2 808 234 ₽Елена Кропанева
На кухонных фасадах из сосны. Сосна — мягкий материал без ярко выраженной текстуры, но это в реечном фасаде было не особенно важно, ведь текстура все равно не видна. Зато при механическом повреждении реек их можно будет частично заменить.

На кнопках-выключателях в торце столешницы. Не хотели штробить фасад и несущие конструкции, а столешница по дизайну была достаточно массивной. Поэтому придумали, как решить проблему включения бра, вентиляторов и вытяжки с помощью мебельных выключателей. Их стоимость в 23 раза ниже стоимости обычных.

На выключателях и розетках. Серия Atlas от Schneider Electric — одна из самых бюджетных. Заказчик не хотел покупать премиальные модели электроустановочных изделий, хотя их предполагалось устанавливать на виду. Поэтому авторы проекта решили сделать розетки и выключатели черными — вместе со светильниками и другими техническими деталями (выдвижная розетка, кнопки-выключатели в торце). В итоге они не спрятаны, но их контрастность по отношению к контексту отвлекает внимание. К тому же черный цвет — очень ходовой, поэтому найти недорогие светильники, мебельные кнопки-выключатели и розетки оказалось легко.
Цена проекта с фото: Терраса под Екатеринбургом за 2 808 234 ₽Елена Кропанева
НА ЧТО ПОТРАТИЛИСЬ

На пропитку для дерева (цоколь, колонны, фальшбалки, обшивка, декоративное оформление остекления снаружи).
Использовали многокомпонентную пропитку Sherwin Williams, так как сохранность конструкций в данном случае очень важна, а возможность переделок ограничена (при замене конструктивных деталей пришлось бы затрагивать систему остекления и т.д.).

На светодиодные ленты и блоки для подсветок. Из-за жестких условий — влажность, перепады температур — купили изделия проверенного бренда Arlight с гарантией. Выбрали специальные ленты и блоки с защитой IP 65 для наружного применения, в силиконе, чтобы минимизировать проблемы, связанные с заменой изделий.

На столешницу. Выбрали искусственный камень для наружных работ бренда Hi-macs от LG, чтобы избежать проблем с эксплуатацией в дальнейшем — трещин, усадки и тому подобного.
Цена проекта с фото: Терраса под Екатеринбургом за 2 808 234 ₽Елена Кропанева
На петли для фасадов кухни австрийского бренда Blum. Фасады были спроектированы очень массивные, толщиной 40 мм, для создания эффекта толстых реек. В то же время было важно сохранить минималистичность кухни и комфорт в использовании. Поэтому авторы проекта решили взять австрийские петли бренда Blum, которые открывают фасад (даже такой толстый!) и имеют встроенный доводчик. Разница с обычными петлями — несколько тысяч рублей.

На выдвижную розетку в столешнице. Столешница получилась очень глубокая из-за габаритов печи, поэтому места для такой круглой выдвижной розетки было достаточно. К тому же не хотелось штробить стены фасада и другие конструкции.

На ремни-фиксаторы для открытых створок остекления. Такие идут в комплекте с системой финского производителя, но в турецкой их не было.

«Как раз после того, как завершили реализацию, были дни с ураганным ветром. И супруга заказчика с трудом смогла закрыть все створки при начинающейся грозе. Нас попросили доработать этот вопрос. Решение мы нашли только у финского бренда. Купили отдельно ремни для створок, покрасили их из баллончика в цвет рам и сами вместе с заказчиком смонтировали. После этого опасений, что створки под ветром будут качаться и разобьются, не стало», — рассказывают авторы проекта.
Цена проекта с фото: Терраса под Екатеринбургом за 2 808 234 ₽Елена Кропанева
На магнитные уплотнители между стеклами. В отличие от обычных уплотнителей, магнитные практически не видны, что создает эффект сплошного стекла и кардинально меняет внешний вид при закрытом остеклении. Стоят они на 50 тысяч рублей дороже обычных, которые выглядят как границы между стеклами.

На ткань для обивки мягкой мебели. Она вандалоустойчивая и моющаяся, так как у хозяев есть кот. Кроме того, стоящие на веранде диваны теперь можно просто протирать губкой от грязи и пыли.

На смеситель с выдвижным душем. Это было изначальное пожелание заказчика. Кухня большая, глубокая, а вода иногда может понадобиться на большем расстоянии от мойки, чем обычно. Помимо выдвижного шланга, смеситель оснащен переключателем на два типа струи. В сравнении с обычным смесителем, такой дороже почти в два раза.
Цена проекта с фото: Терраса под Екатеринбургом за 2 808 234 ₽Елена Кропанева
Спроектировать вытяжку и узел гриля печи-яйца. Печь-яйцо — свою мечту — заказчик купил в самом начале проекта, так что вся зона кухни «плясала» вокруг этого гаджета. Никаких высокотехнологичных вариантов заказчик не желал. Ему было нужно просто отверстие, через которое дым от печи будет выходить вверх, для надежности оснащенное вентилятором внутри.

«Была задача вписать высокотехнологичное оборудование и обустроить кухню как можно более “легко” для глаза, чтобы при готовке заказчик мог любоваться природой. В итоге решили сделать вытяжку простой формы, а от стенок и фартуков в кухонной зоне отказаться. Правда, изначально мы рисовали вытяжку более сложной формы, но у потенциальных подрядчиков все красивые аналоги из pinterest и наши чертежи вызывали недоумение, они говорили: “ну, это так не получится, а на фото — фотошоп”. Даже после превращения сложной формы в простой конус никто за реализацию не брался, говорили, что делают только квадратные вытяжки. Но квадратная никак не вписывалась в наш проект! В итоге после долгих поисков мы нашли металлиста-энтузиаста, который смог сделать и покрасить желанный конус. И отдельно купили вентилятор и оборудование для монтажа в кровлю», — рассказывают авторы проекта.
Цена проекта с фото: Терраса под Екатеринбургом за 2 808 234 ₽Елена Кропанева
БОЛЬШЕ ФОТО…
Смотрите подборку из 84 снимков проекта в профиле автора (есть фото процесса строительства)
____________________________

ВАША ОЧЕРЕДЬ…
Среди наших читателей много практикующих архитекторов. Если вы готовы опубликовать подробную смету загородного дома или дачи и ответить на вопросы редакции, — присылайте ссылку на проект на RuEditors@houzz.com

Комментарии 25

@pepper Я тоже с болью смотрю на то, что за забором...но, поделать ничего не могу... . @284520147 Спасибо большое! . @Ольга Ивлева Спасибо большое! Позже повесили деревянные жалюзи, так что всё не так грустно стало) . @yana_chernykh, Не запотевает, т.к. обогрев инфракрасными лампами греет очень адресно, конкретные небольшие места на диване и креслах, а воздух не прогревается настолько, чтобы быть теплым. Т.е. это по сути НЕ теплое помещение, просто именно на сидениях человеку комфортнее находиться непосредственно под обогревателями . . Мария Васильченко, Спасибо! Вы совершенно правы. Самое интересное, что на самое хитрое и самое дешевое по исполнению всегда уходит больше времени и сил как по закону Парето...в каждом проекте находится какая-нибудь каверзная такая задачка, над которой думаешь и бегаешь больше, чем со всем остальным вместе взятым. Но это и интересно одновременно . . Безрамное остекление Согласна. Однако наше дело предоставить информацию, разложить по полочкам плюсы и минусы, а заказчик уже исходя из своих приоритетов и возможностей делает выбор сам. Он осознанно выбрал. В статье написано не совсем точно: другие компании не брали деньги отдельно за проектирование, но цена за работы под ключ была значительно выше. С тем подрядчиком, который делал это остекление, согласование технических деталей происходило "на коленке", что не позволительно для серьезных компаний. Поэтому нам было трудно с этим подрядчиком, т.к. всё, что мы имели на руках, это были наши схемы, которые хоть как-то помогли всё это сделать. Они, конечно же, не являлись техническим проектом, о котором подрядчик писал в договоре и который в итоге так и не был им сделан. . Ольга Novikova мне тоже, наверное, было бы некомфортно на виду купаться...) через месяц после съемки появились деревянные жалюзи . . Alex, да :) На функционал мы не могли влиять . АЛЛА MALIKOVA Спасибо! . 67134639 Спасибо :) . Вадим Богданов, :) и лучше оставаться в бараках . Вероника Полякова Спасибо! Это имитация большой толщины. Она из камня толщиной 12 мм. . @helenadrobotushenko Да, соглашусь про вытяжку. Ограничения технологические сделали её лучше :) Именно эта печь весит 100 кг, если я ничего не путаю. Там есть два размера, и это больший. На надзор ездила женская половина нашего бюро (т.е. я) и часто я на террасе находилась совсем одна, мне точно было сдвинуть нереально. А одному мужчине по весу может и можно было бы, но она такая объемная, что при мне ни один мужчина её тоже не сдвигал. Только наблюдала как вдвоем переносили эту печь. . Natalia Vasilyeva, да, там много всего для такого метража...могло бы быть еще дороже. Я надеюсь, этим будут пользоваться не год и даже не 5 лет, а больше. . Алена Рязанова Вы правы! Спасибо. Потому и интересно реализовывать проекты. Картинка - это как ступень на пути к осязаемой реальности :) . Irina Verkhovsky Спасибо! . Максим Лазовский Спасибо! . Petr Kostenko без купели было никак, это у нас были условия задачи в разделе "Дано" :) . Robin.Electric Вы правы. Хорошая электрика - это всегда приятно. Особенно, если звук щелчка классный и на ощупь комфортно.
Интересно, тандыр в эксплуатации даёт запах или вытяжка справляется?
здравствуйте просто супер проект спасибо вам

Оставьте комментарий

Читать похожие статьи