logo

Поиск планировки: Три плана + финал питерской квартиры с террасой

Квартиру купили из-за вида на Неву и Большеохтинский мост. Но планировка была бестолковой. Что предложил дизайнер?

Саша Зайцева
Саша Зайцева

8 дек. 2020

Обновлено 13 янв. 2021

журналист, редактор

У этой элитной новостройки в Петербурге была приличная площадь — больше 140 «квадратов» + шикарная терраса 52 кв.м, откуда открывается вид на Неву, исторический Большеохтинский мост и Малоохтинскую набережную. Но внутреннее деление пространства было совершенно нелогичным. Заказчики просили снести все перегородки и сделать зонирование с нуля.

РАНЕЕ В ЭТОЙ СЕРИИ…
Поиск планировки: Квартира в подарок родителям [три планировки]
Поиск планировки: Квартира в форме четвертинки пиццы — 3 плана
Поиск планировки: «Однушка» с кухней в коридоре и зоной для йоги
Поиск планировки: Три плана + финал питерской квартиры с террасойКсения Иванова
ПРОЕКТ
Что: квартира в новом элитном доме у Смольного собора
Размер: 142 кв.м + терраса 52 кв.м
Где: Санкт-Петербург
Дизайнер интерьера: Ксения Иванова
Год: 2019
Дано: квартира без отделки, но с возведенными перегородками. Логику организации пространства заказчик не понял: слишком большой холл, странное дополнительное помещение, разделяющее кухню и гостиную. Ванная была размещена в центре квартиры, ее посадка на плане ломала конфигурацию гостиной. При этом размеры помещения не соответствовали функциям гостевого санузла, а хозяйский санузел при спальне предполагался весьма скромной площади. Наконец, застройщик сделал две огромных, по 30 квадратных метров, спальни. Получилась весьма нефункциональная конфигурация квартиры.

Задача дизайнеру: спроектировать гармоничный интерьер для семейной пары. В квартире нужно разместить большую кухню-гостиную, обязательно совмещенную, а при спальне — просторную ванную и гардеробную. Дополнительно предусмотреть место для кабинета с функцией гостевой комнаты. Важно не забыть про гостевой санузел и место для хранения хозяйственного инвентаря. Для коридоров и подсобных помещений выделить минимум площади.
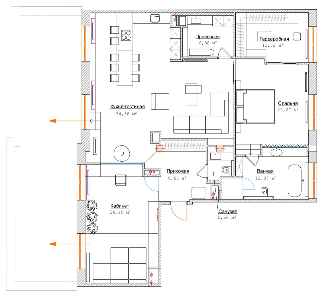
ПЛАНИРОВКА #1
С компактным кабинетом и Т-образной кухней-гостиной.

Что предложила дизайнер

Блок «мастер-спальня + ванная + гардеробная» занимает всю правую сторону квартиры. Спальня отделяется от подсобных помещений раздвижными стеклянными перегородками — чтобы сохранить визуальные преимущества элитной квадратуры.

Прачечная размещается на месте дальнего санузла. Вход в нее — из общей кухни-гостиной.

Кухня-гостиная образована по принципу традиционного американского living room: огромное общее пространство, где проходит большая часть дневной жизни. По форме она напоминает букву Т и логически делится на три зоны: в узкой части — диванчик и биокамин, далее — большой диван и ТВ, а в глубине — кухня с полуостровом и вместительным обеденным столом.

Кабинет компактный и находится на месте бывшей кухни — в уютном уголке, где можно уединиться, чтобы спокойно поработать. При этом от гостиной его отделяет раздвижная стеклянная перегородка — чтобы можно было максимально открыть пространство.

Гостевой санузел — без душевой кабины, вход — из прихожей: удобно сразу помыть руки.
Поиск планировки: Три плана + финал питерской квартиры с террасойКсения Иванова
Почему отказались от планировки #1
  • Не понравился тесный кабинет — хозяева хотели видеть в нем отдельную полнофункциональную комнату, где при необходимости могли с комфортом разместиться гости.
  • Попросили уменьшить зону биокамина — слишком большая кухня-гостиная была не нужна. «При этом в целом заказчикам понравилась предложенная логика размещения функциональных частей квартиры — дальше уже не было принципиальных переносов комнат, но нам пришлось еще много поработать над улучшением проекта», — говорит архитектор Ксения Иванова.
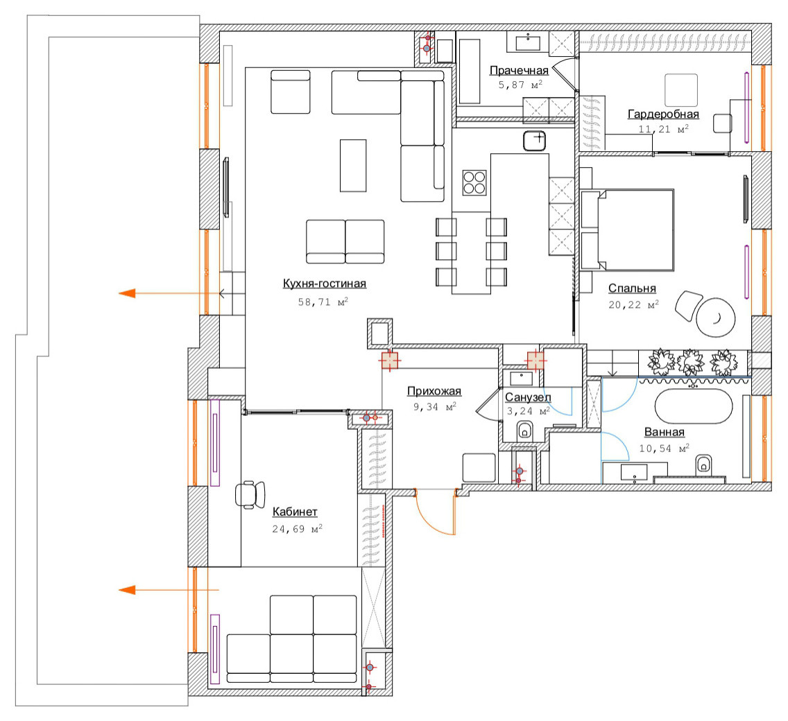
ПЛАНИРОВКА #2
С кабинетом на два окна и обеденным столом с видом на террасу.

Что предложила дизайнер

Кабинет
продлить до следующего окна, сократив площадь гостиной. Теперь в комнате поместятся и рабочий стол, и место для отдыха.

В кухне-гостиной изменить расстановку мебели. ТВ-зона станет более уютной и приватной, а обеденная — более открытой. В теплое время года можно устраивать вечеринки, задействовав пространство террасы и кухни-гостиной.

Вход в спальню передвинуть: двери в прачечную и гардеробную станут ближе друг к другу.

Чашу ванной в хозяйском санузле развернуть к окну, чтобы, лежа в ней, можно было любоваться видом на Петербург.
Поиск планировки: Три плана + финал питерской квартиры с террасойКсения Иванова
Почему отказались от планировки #2
  • Не понравилось расположение главного дивана: хозяин хотел сидеть на нем и смотреть на Неву.
  • В гостевом санузле попросили добавить душ. Хотя заказчики живут вдвоем, они поняли, что дополнительное место для гигиенических процедур необходимо, если у них будут останавливаться гости.
  • Попросили спрятать вход в прачечную — не хотели, чтобы он был виден гостям.
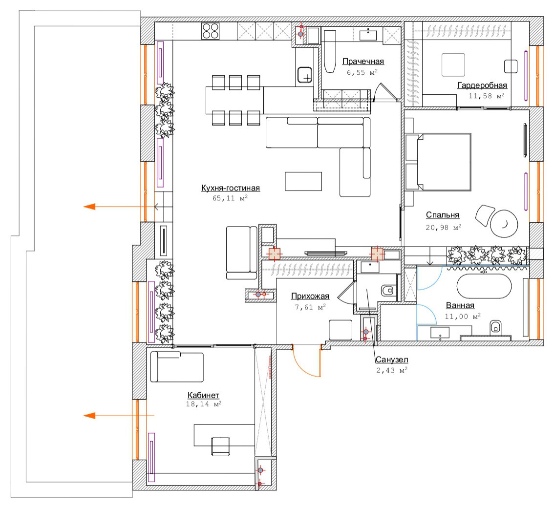
ПЛАНИРОВКА #3
С «секретной» прачечной и кухонной зоной П-образной формы.

Что предложила дизайнер

Вход в прачечную
сделать из гардеробной. Таким образом, вся приватная жизнь локализуется в правой части квартиры.

ТВ-зону с диваном вынести ближе к террасе.

Кухню с обеденным столом выстроить в виде буквы П в глубине общего пространства, ближе ко входу в спальню.

Кабинет разделить раздвижными перегородками на две части — рабочую зону и зону отдыха.

Гостевой санузел сделать более сложной конфигурации, чтобы поместился душ.
Поиск планировки: Три плана + финал питерской квартиры с террасойКсения Иванова
Почему отказались от планировки #3
  • Поняли, что прачечная со входом из гардеробной — не лучшая идея: персоналу клининговой компании надо будет каждый раз проходить за хозинвентарем через спальню.
  • Одновременно хозяева осознали, что готовы отказаться от отдельной прачечной в пользу второй полноценной ванной комнаты — для гостей.
  • Решили, что дополнительная перегородка в кабинете не нужна.
  • Попросили также продумать планировку зоны отдыха на террасе и сделать кухню максимально лёгкой, незаметной.
ПЛАНИРОВКА #4, ФИНАЛЬНАЯ

КУХНЯ-СТОЛОВАЯ

Располагается в глубине квартиры, захватывая территорию прежней прачечной. Кухонные шкафы выстроены углом. Чтобы не перегружать пространство, было решено отказаться от острова и установить большой обеденный стол на шесть персон.
Поиск планировки: Три плана + финал питерской квартиры с террасойКсения Иванова
ГОСТИНАЯ
Большой угловой диван насыщенного голубого цвета стоит напротив террасы. Кухня в серо-белых тонах почти не заметна на его фоне. Телевизор расположен в простенке между панорамными окнами.
Поиск планировки: Три плана + финал питерской квартиры с террасойКсения Иванова
СПАЛЬНЯ
Оформлена в серо-бежевых тонах, в качестве акцента — дизайнерское розовое кресло. Хозяйская ванная комната и гардеробная располагаются по бокам от спальни, за тонированными стеклянными перегородками.
Поиск планировки: Три плана + финал питерской квартиры с террасойКсения Иванова
МАСТЕР-ВАННАЯ
Оформлена в белых тонах. Чаша ванной расположена у панорамного окна, которое задернуто легким тюлем. В санузле есть также отдельный душ.
Поиск планировки: Три плана + финал питерской квартиры с террасойКсения Иванова
КАБИНЕТ
Большой, без разделяющих перегородок. Отделка деревом добавляет в обстановку и деловой настрой, и уют — идеальный баланс для комнаты, которую будут использовать и в качестве гостевой.

«Прихожую на финальном плане мы увеличили, но шкаф в ней стал меньше. Зато мы добавили дополнительные места для хранения в кабинете, чтобы гости могли поставить там чемодан и разместиться с комфортом», — рассказывает Ксения Иванова.
Поиск планировки: Три плана + финал питерской квартиры с террасойКсения Иванова
ГОСТЕВАЯ ВАННАЯ
Стала очень просторной — 9 кв.м. Душ разместили у панорамного окна — можно любоваться видом на Неву. Хозяйственный инвентарь, стиральная и сушильная машины прячутся в высоких шкафах за белыми реечными фасадами (на фото — справа).

«Это решение чрезвычайно понравилось заказчикам — шкаф не смотрится массивным, при этом все необходимые хозяйственные функции прачечной он выполняет», — отмечает автор проекта.
ТЕРРАСА
С помощью невысоких подиумов ее разделили на две зоны: место для уединенного отдыха, куда можно попасть из кабинета, и чилаут-зону с большим диваном. Также на террасе разместили растения в кадках и уличные обогреватели. На зиму терраса накрывается тентом, который защищает мебель от снега и влаги.

БОЛЬШЕ ФОТО…
Смотрите съемку этой квартиры с других ракурсов в профиле автора
_________________________

ВАША ОЧЕРЕДЬ…
Среди наших читателей много практикующих дизайнеров. Если вы готовы показать поиск планировки на примере своего проекта, пишите в редакцию на editorial@flatica.ru

Комментарии 14

Счастливые люди все-таки в Питере живут). Купили однушку за 200 млн., а вы к ним с согласованием перепланировок пристаете)
И планировка и реализация - неоднозначные. Но здесь, как говорится, главное, чтобы хозяевам нравилось. Больше всего меня смутил момент, что пол трассы выше пола гостиной, а туда ещё и диван поставили. В итоге, создаётся ощущение, что квартира не высоко а наоборот в полуподвале: смотришь в шикарное панорамное окно на уровне колен того, кто на трассе... . Может просто ракурс фото неудачный
Мне больше всего понравилась планировка 2 , и мебель можно было бы подобрать с прицелом что рядом с окном шикарное кресло поставить , раз уж хозяин хочет на кусочек Невы и Выборгскую сторону смотреть , кстати не самые красивые виды Петербурга .И я бы сауну расположила в большом санузле , это придало бы шика и в СПб она к месту. Смутило тонированное окно из спальни в ванную и wc - показалось что все просматривается .Если так то может зеркальная поверхность стены было бы лучше . А в целом все достойно смотрится , все шикарно и монохромный интерьер и кабинет с деревянными рейками , хорошая работа .

Оставьте комментарий

Читать похожие статьи