logo

Планировка и дизайн: Однокомнатная квартира 35 кв.м — что делать

5 реализованных проектов в разных домах: в хрущевке, «сталинке» и новостройке

Houzz Россия
Houzz Россия

13 нояб. 2017

Обновлено 2 дек. 2017

Квартира 35 кв.м предполагает выбор более богатый, чем однушка метражом 30 квадратов. Здесь почти всегда есть возможность разделить спальную и гостиную зоны, найти достаточно места под шкафы или гардеробную. Как показывает опыт пяти российских проектов, на таком метраже это может быть как классическая однокомнатная, так и квартира-студия 35 кв.м. Дизайн, фото и описания смотрите ниже.
Планировка и дизайн: Однокомнатная квартира 35 кв.м — что делатьОльга Шангина
1. Квартира с альковом

Место:
Москва, Ленинградский проспект
Авторы проекта: Антон Корнеев, Екатерина Блохина,
Korneev Design Workshop

Квартира-студия 35 кв.м задумывалась как пристанище для временных визитов хозяйки, живущей в Подмосковье. Впрочем, на дизайне и планировке данное обстоятельство не сказалось: это полноценное жилье, а не «гостиничный номер».

Планировка
Однокомнатная квартира с маленькой кухней в результате перепланировки стала студией. Между комнатой и кухней убрали перегородку. Кроме того, кухню-гостиную увеличили за счет присоединенной лоджии. Так в квартире появилось панорамное окно. Для кровати в гостиной выделили альков. Справа от входной зоны — отдельная гардеробная.
План квартиры-студии площадью 35 кв.м после ремонта

Спальня
Несмотря на то что жилье по сути гостевое, здесь поставили нормальную кровать. Она собрана из металлического основания, подъемного механизма и матраса. Спальное место огорожено с трех сторон. Входной проем открыт, но туда всегда можно добавить занавес на карнизе. Для друзей в гостиной стоит диван.

Хранение
После ремонта на 35 «квадратах» появилась гардеробная. Благодаря ей в квартире обошлись без отдельно стоящих шкафов — хозяйке так удобнее. Чтобы сэкономить место, гардеробную сделали без дверей. Еще один большой отсек для вещей сделан под кроватью в спальне — его маскирует лист ДСП. Ящики для хранения есть и в санузле.
Планировка и дизайн: Однокомнатная квартира 35 кв.м — что делатьОльга Шангина
Кухня
В зоне кухни была ниша. В нее четко вписали холодильник и недорогую кухню ИКЕА. Узнать ее непросто: фасады перекрашены в черный цвет, как и столешница обеденного стола.
Планировка и дизайн: Однокомнатная квартира 35 кв.м — что делатьОльга Шангина
Ванная
В маленьком санузле обошлись без ванны. Душевая кабина отделена от основного пространства шторкой — стеклянные дверцы съели бы драгоценное пространство. Благодаря этим решениям в ванной поместились стиральная машина и ящики для хранения.

Дизайнерские приемы
  • Низкие потолки (255 см) кажутся выше, потому что выкрашены в один цвет со стенами — белый. Акценты расставлены с помощью мебели и техники: желтый комод, синий холодильник, зеленый диван.
  • Резное зеркало в ванной и обеденный стол на кухне куплены на «Авито». Стол перекрашен, а зеркало подрезано под нужные размеры.
  • Кирпичная стена «сделана» из старого распиленного кирпича. Его привезли из Петербурга.
  • Изголовье кровати украшено паркетной доской. Материал остался от ремонта на предыдущем объекте хозяев.
О ПРОЕКТЕ…
Houzz тур: 35 метров — студия с ремонтом за два месяца
Планировка и дизайн: Однокомнатная квартира 35 кв.м — что делатьЮрий Гришко
2. Многофункциональная однушка в новом доме

Место: Люберцы, Московская область
Автор проекта: Екатерина Проскурина,
Draw-kat Architecture & Design

Для однокомнатного жилища квартира 34,5 кв.м вариант, приемлемый по площади. Тут вполне комфортно может жить один человек или семейная пара. Планировка однушки в Люберцах, сделанная архитектором Екатериной Проскуриной для себя, так понравилась соседям, семье из четырех человек, что они сделали такую же. И это при том что 4 метра из 35 это лоджия.

Планировка
Квартира в новостройке изначально имела изолированные комнату и кухню. Все внутренние перегородки, за исключением стен санузла, были демонтированы, а новые возведены по дизайн-проекту Екатерины. Архитектор хотела создать отдельную спальню и свободное пространство с перетекающими зонами кухни-столовой-гостиной так, чтобы можно было в любой момент добавить или поменять мебель в интерьере.
Однокомнатная квартира 35 кв.м, планировка

Кухня
Гарнитур (на фото выше) из ИКЕА, в нем использованы три разных фасада, в том числе из нержавеющей стали. Кухонные шкафы в верхней линии сознательно сделаны не под потолок — архитектор пожертвовала объемом шкафов ради общего объема кухни. Вентиляционная шахта находится за холодильником, между кухней и ванной, поэтому трубу от вытяжки пришлось вести по двум стенам. Подоконник и столешница сделаны одной высоты. Изначально архитектор хотела сделать единую столешницу, но победили шторы.

Хранение
Спальню от прихожей отделяет перегородка из двух ниш, в каждой из которых встроен шкаф с антресолью. Первый, для верхней одежды и обуви, находится в прихожей, второй платяной в спальне. Книги хранятся в стеллаже между диваном и обеденным столом. Часть мебели в проекте двойного назначения. Например, под подушками дивана есть ящик для постельного белья. Под кроватью с подъемным механизмом хранятся картины хозяйки и коробки с красками. Для пылесоса и швабр есть шкаф на балконе.
На фото: дизайн однокомнатной квартиры, спальня в алькове

Спальня
Для кровати в студии сделали альков. Чтобы визуально раздвинуть его границы, архитектор нарисовала акриловым маркером на стене улицу, уходящую в перспективу. Рисунок покрыли лаком. Роль прикроватной тумбочки играет дополнительный табурет. Другой такой же служит подставкой для цветка в гостиной.

Ванная
В санузле площадью около 5 кв.м хозяйка разместила полноценную ванну. Чтобы эргономично расположить купель, стиральную машину и сантехнику, пришлось перенести дверной проем. За хранение в санузле отвечают тумба под раковиной и ниша под ванной. Под тумбой оставлено место для корзины с грязным бельем.
Дизайнерские приемы
  • Кухню-столовую и гостиную делит горшок с традесканцией на монтажном крючке под потолком. Столовую и гостиную объединяет система светильников, собранная из металлических труб, тройников и фитингов, купленных в строительном гипермаркете. Металл покрашен сначала в черный, а потом в золотой — так черный выглядит глубже.
  • Один из самых интересных элементов декора в квартире — расписанный хозяйкой радиатор на кухне. Рисунок создан с помощью скотча, использовались акриловые краски черного и золотого цвета.
  • В квартире нет телевизора, но под него выведена розетка — ее скрывает большая картина в гостиной.
О ПРОЕКТЕ…
В гостях: Крошка-квартира архитектора на 34,5 метрах
Планировка и дизайн: Однокомнатная квартира 35 кв.м — что делатьВалентина Савескул
3. Мобильная библиотека в хрущевке

Место:
Москва, Марьина роща
Автор проекта:
Валентина Савескул

Хозяйка этой квартиры молодая женщина, ученый-богослов. Будущая студия до ремонта была обычной однушкой в хрущевке, наполовину занятой книгами. Перед дизайнером Валентиной Савескул стояла задача эргономично разместить на 35 метрах огромную библиотеку, сделать удобные рабочее и спальное места, зону для приема гостей и функциональную кухню.

Планировка
Широкий проем между кухней и комнатой существовал еще до ремонта, но по-настоящему не делил и не объединял. Поэтому его сместили к стене, разом получив кухню-гостиную и нишу для кухонной мебели. От коридора, который вел на кухню, избавились там поставили угловой шкаф. Жилое пространство «разгрузили»: огромный шкаф-купе вдоль стены делал комнату визуально уже, а стеллаж посреди комнаты теснее. С ними попрощались.
Планировка и дизайн: Однокомнатная квартира 35 кв.м — что делатьВалентина Савескул
Квартира 35 кв.м; план после перепланировки

Хранение
Трехрядная библиотека-трансформер из МДФ ноу-хау этого проекта. Дальний ряд глубиной 50 см сделан стационарным, там хранятся книги. Стеллажи в других двух рядах можно двигать, открывая доступ к нужной секции. По бокам два шкафа глубиной 40 см, для хранения альбомов и сувениров. Все стеллажи, кроме заднего ряда, закрыты стеклянными фасадами. Библиотека занимает 3,5 кв.м, но благодаря объемной архитектуре не особо «сжимает» пространство.

Вещи хранятся в белом шкафу, прикрывающем угол кухни. Чтобы этот угол не торчал, выбрали скругленную модель. Со стороны прихожей шкаф имеет глубину 60 см, со стороны комнаты — 40 см.

Ванная
Площадь санузла — 2,6 кв.м, так что здесь ванне предпочли угловую душевую кабину.
Планировка и дизайн: Однокомнатная квартира 35 кв.м — что делатьВалентина Савескул
Спальня
Поскольку приличную часть однокомнатного жилища 35 кв.м заняла библиотека, гостиную и спальную зону пришлось объединить. Диван выбрали с ортопедическим матрасом, подъемным механизмом и ящиком для белья.
Планировка и дизайн: Однокомнатная квартира 35 кв.м — что делатьВалентина Савескул
Кухня
Кухня и обеденная зона отделены от спальни-гостиной с помощью напольного покрытия здесь положили яркую итальянскую плитку в виде сот. Все пять «квадратов» кухни использованы по максимуму. Мебель расположена углом, с одной стороны линия наполовину состоит из колонн со шкафами и встроенной техникой. Тут разместили и стиральную машину. Встроенную вытяжку пришлось делать по спецзаказу, так как стандартной мешала газовая труба.

Дизайнерские приемы
  • П-образный стол у окна сделан путем горячей формовки листового стекла. Благодаря своей прозрачности он практически незаметен в пространстве. Этот же фокус можно увидеть в ванной — там использованы прозрачные карнизы из плексигласа.
  • Мало того что квартира — 35 кв.м, так еще и потолок тут в максимальной точке всего 2,48 м, а в минимальной — 2,40 м. Но благодаря выведенной плоскости, единому цвету стен и потолка это незаметно.
О ПРОЕКТЕ…
Houzz тур: Крошечная студия ученого-богослова в Марьиной роще
Планировка и дизайн: Однокомнатная квартира 35 кв.м — что делатьAlireza Nemati
4. Спальня на высоте в новостройке

Место:
Москва
Автор проекта: Алиреза Немати,
Studio Bazi

Еще одна однокомнатная квартира 35 кв.м, дизайн которой автор проекта делал для своей семьи. Образовавшуюся студию после ремонта можно считать пособием по тому, как выжать из маленького пространства максимум мест хранения без ущерба для эстетики и инсоляции.
Планировка и дизайн: Однокомнатная квартира 35 кв.м — что делатьAlireza Nemati
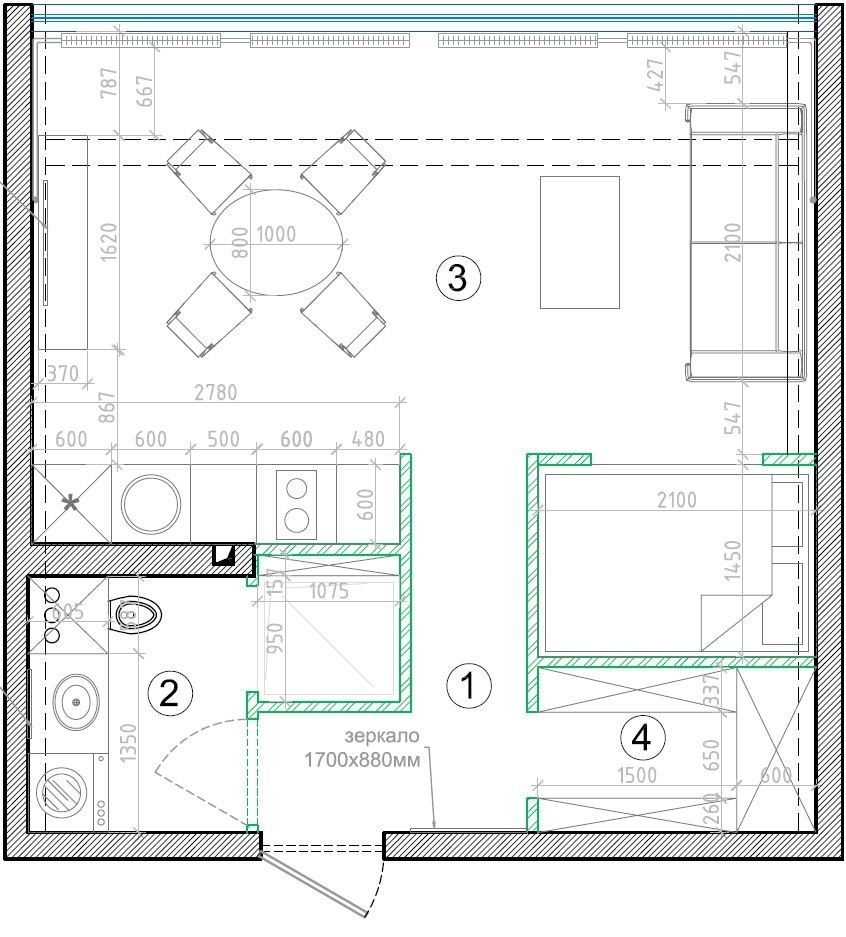
Квартира-студия 35 кв.м; план после ремонта

Планировка
Квартира до ремонта выглядела, как квадратный бетонный блок с кухней и гостиной, разделенными сплошной перегородкой от самой прихожей. Справа от входа — ванная, слева — кладовая. В ходе перепланировки дизайнер убрал все внутренние перегородки, а санузел немного расширил за счет прихожей. В противоположном от входа углу квартиры появился слипбокс — отсек для сна. Входную зону отделили шторой. Стенку санузла немного продолжили в сторону кухни, чтобы закрыть торцы гарнитура.
Планировка и дизайн: Однокомнатная квартира 35 кв.м — что делатьAlireza Nemati
Хранение
Главное, ради чего было затеяно строительство слипбокса — встроенные под кроватью системы хранения. Это три больших выдвижных шкафа для крупных вещей. Во входной зоне также есть гардероб для верхней одежды с антресолями. Один из верхних шкафов служит и внутренней полкой слипбокса. По другую сторону кровати сделаны полки для книг. Но это не все. Ступени, ведущие в спальню, скрывают ящики для вещей помельче. Вокруг телевизора в гостиной — тоже системы хранения глубиной 40 см, закрытые белыми фасадами.

Спальня
Слипбокс сделан по эскизам дизайнера. Металлический каркас высотой 2,85 м обшит сосновыми щитами. Снаружи они покрыты коричневым воском, внутри — бесцветным. Двуспальный матрас шириной 1,75 м освещается внутренней системой подсветки.
Планировка и дизайн: Однокомнатная квартира 35 кв.м — что делатьAlireza Nemati
Кухня и гостиная
Гостиную от столовой отделяет диван, но эта точка условная — мебель можно перемещать, обеденный стол раздвигать. В нише между кухней и стеной у окна устроено рабочее место и полки для документов.

Ванная
После расширения в санузел поместились не только полноценная ванна, но и стиральная машина. Она спрятана под раковиной, за фасадами шкафа.

Дизайнерский прием
Студия после ремонта выглядит просторной еще и потому, что здесь практически нет деталей, нарушающих визуальную чистоту: фасады без ручек, отделка — в белых и древесных тонах, на стенах — аккуратная графика.

О ПРОЕКТЕ…
Houzz тур: 35 метров с деревянным слипбоксом
Планировка и дизайн: Однокомнатная квартира 35 кв.м — что делатьАлександра Останкова
5. Отдельная спальня с гардеробной в «сталинке»

Место: Москва, Смоленская набережная
Автор проекта:
Александра Останкова

Однокомнатные квартиры площадью 35 кв.м встречаются и в новостройках, и в хрущевках, и в «сталинках» как в этом случае. Метраж 34,87 кв.м, но при этом вытянутая форма, три окна, толстые кирпичные стены. Совсем другие условия, чем в примерах выше. Молодая хозяйка хотела получить светлое свободное пространство с отдельной спальней.
Планировка и дизайн: Однокомнатная квартира 35 кв.м — что делатьАлександра Останкова
Однокомнатная квартира 35 кв.м; планировка

Планировка
Расположение окон предопределило расположение спальни, гостиной и кухни. Старые перегородки снесли кухня, гостиная и прихожая оказались в едином пространстве. Зоны обозначены с помощью мебели. Например, телевизионный модуль (см. предыдущее фото) проводит границу между гостиной и прихожей, к тому же одновременно служит скамьей. Стойка с винным баром отделяет кухню от гостиной.

Хранение
Большая часть одежды помещается в гардеробной площадью 3,2 кв.м, совмещенной со спальней. Там же выдвижные ящики для белья. Кроме того, в прихожей есть встроенный шкаф для верхней одежды, сделанный на заказ.
Планировка и дизайн: Однокомнатная квартира 35 кв.м — что делатьАлександра Останкова
Спальня
Спальное место по просьбе хозяйки изолировали, но благодаря широким раздвижным дверям его тоже можно «объединять» с остальным пространством.

Ванная
В санузле метражом 3,7 кв.м помимо душевой кабины расположили стиральную машину и бойлер (в доме нет горячего водоснабжения).
Планировка и дизайн: Однокомнатная квартира 35 кв.м — что делатьАлександра Останкова
Кухня
Угловая кухня сделана на заказ, а амбарную доску для фартука привезли из Вышнего Волочка. Хозяйка готовит нечасто, поэтому дерево не стали закрывать стеклом. Подоконник по проекту планировали на одном уровне со столешницей, но прораб упустил этот момент из внимания при установке окон.

Дизайнерские приемы
  • Дизайн этой квартиры построен на сочетании индустриальных и классических элементов, причем классика в проекте появилась именно для того, чтобы смягчить брутальность «лофта».
  • Короба, в которых спрятана система кондиционирования, обыграны при помощи лепнины — выглядит так, словно кессоны в спальне и гостиной задумывались изначально (см. предыдущее фото).
О ПРОЕКТЕ…
Houzz тур: Кирпич и амбарная доска в сталинской пятиэтажке

ЧИТАЙТЕ ТАКЖЕ…

ВАША ОЧЕРЕДЬ…
Какая планировка однокомнатной квартиры 35 кв.м понравилась вам больше всего? Предложите свой вариант!

Комментарии 14

Где заказать такой книжный шкаф?
Если нужно кухню разместить в основной комнате, то можно приподнять ее на подиуме, чтобы визуально сформировать отдельное пространство. .
Наталия Т, а что случается, когда санузел через стену с комнатой?

Оставьте комментарий

Читать похожие статьи