logo

Houzz тур: Трехэтажная квартира с террасой на крыше

Металлическое кружево на каждом этаже, ванна у окна, а любимое место отдыха — на крыше

Houzz Россия
Houzz Россия

26 мар. 2019

Обновлено 14 мая 2019

Houzz тур: Трехэтажная квартира с террасой на крышеEvgeniya Beschastnykh
О проекте Место: пентхауз в центре Москвы с видом на Яузу Размер: 320 кв.м Кто здесь живет: молодая семейная пара Автор проекта: студия дизайна интерьеров «Арх.Предмет», руководитель проекта — Олеся Ситникова, дизайнер — Татьяна Минина Фото: Михаил Лоскутов Молодая семья купила квартиру вместе с верхним нежилым уровнем на последнем этаже новостройки — с чудесными видами на центр Москвы. Архитекторы студии «Арх.Предмет» спроектировали пространство на трех уровнях, каждый из них открыв к городу.
Houzz тур: Трехэтажная квартира с террасой на крышеEvgeniya Beschastnykh
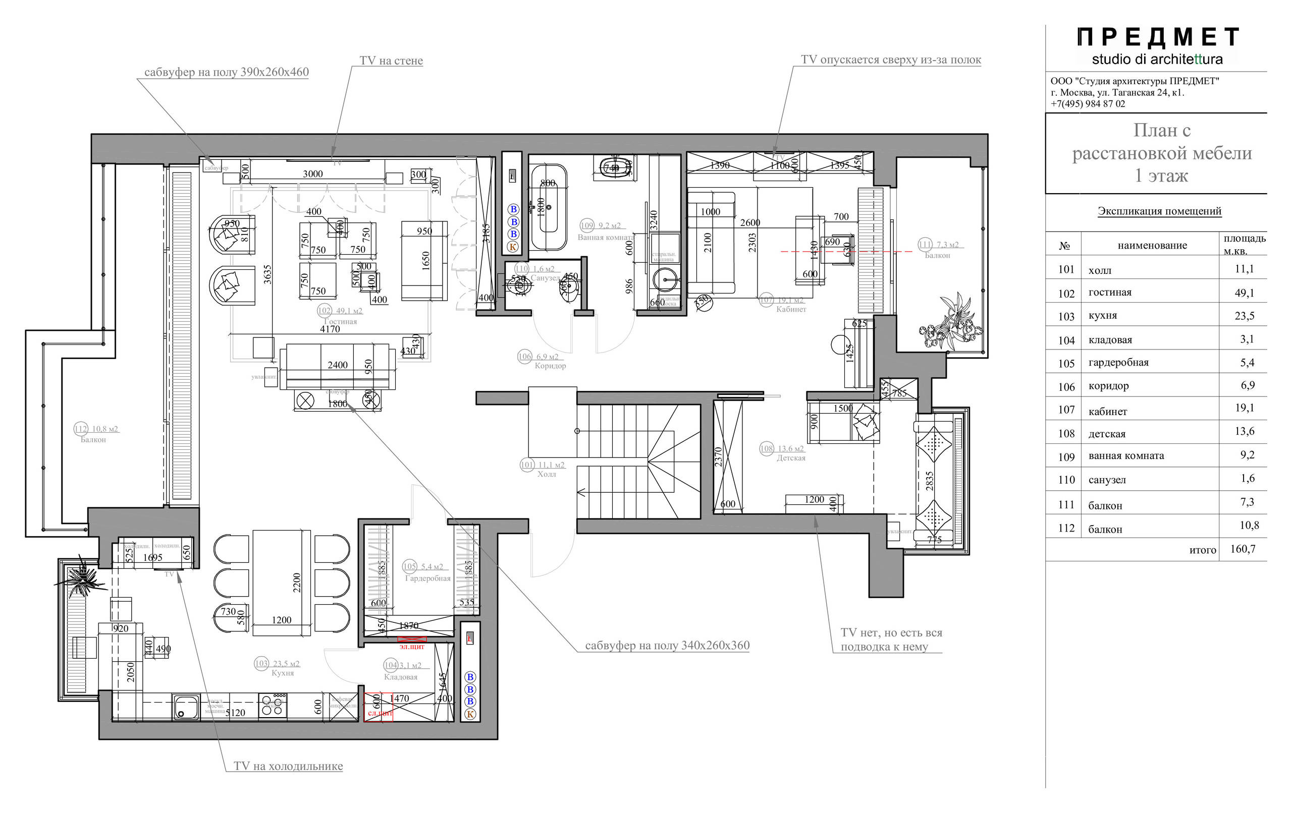
Планировка первого этажа На первом уровне, помимо гостиной-кухни-столовой, есть кабинет, детская, гардеробная, санузел, ванная комната и два больших балкона с панорамным видом на город. Слева от холла расположена лестница, ведущая на другие уровни.
Houzz тур: Трехэтажная квартира с террасой на крышеEvgeniya Beschastnykh
Люстра изготовлена по эскизам архитекторов ГОСТИНАЯ У каждого уровня свое назначение, настроение и колористика. Первый этаж — гостевой, а потому максимально парадный и контрастный. Стены с панелями из материала алькантара и декоративным покрытием, шторы и мебель в мягких велюровых обивках создают спокойный фон из припыленных серо-бежевых оттенков. Контрастом к ним уложен паркет цвета ореха, а парадность отражена в модулях его раскладки.
Houzz тур: Трехэтажная квартира с террасой на крышеEvgeniya Beschastnykh
Мягкая мебель Meridian; панели из материала алькантара, Аlcantara SpA Активный по цвету ковер дизайнера Яна Ката напоминает полотна художника Герхарда Рихтера. Акцентный цвет — припыленный зеленый (на самом деле более насыщенный, чем на фотографиях) — можно заметить на подушках, вазах и ковре. Окно гостиной, у которого изначально был небольшой подоконник, опустили до пола. В доме стало светлее, а взгляду открылись крыши соседних домов. Портал вокруг окна сформировали откосами из ореховых панелей — архитекторы посчитали, что здесь не хватало акцента.
Houzz тур: Трехэтажная квартира с террасой на крышеEvgeniya Beschastnykh
На фото: фигуркам, привезенным хозяевами с Бали, нашлось место на стене гостиной Интерьер в некотором смысле стал сотворчеством и благодаря заказчице наполнился произведениями искусства.
Houzz тур: Трехэтажная квартира с террасой на крышеEvgeniya Beschastnykh
Встроенную мебель, включая шкаф с открытыми полками в гостиной, спроектировали по эскизам архитекторов. Причем в проекте участвовали несколько столярных производств.
Houzz тур: Трехэтажная квартира с террасой на крышеEvgeniya Beschastnykh
КУХНЯ-СТОЛОВАЯ Кухню сделали нейтральной, она служит фоном для темной обеденной группы. Фасады кухни в светлом глянцевом лаке растворяются на фоне акцентной стены, оформленной слэбами итальянского мрамора.
Houzz тур: Трехэтажная квартира с террасой на крышеEvgeniya Beschastnykh
Слэбы расположили по диагонали, под углом 45 градусов. Мрамор собрал цвета всего, что его окружает: мягкой мебели, обеденной группы, стен и паркета.
Houzz тур: Трехэтажная квартира с террасой на крышеEvgeniya Beschastnykh
Барная стойка сделана как продолжение кухни и расположена напротив окна. Здесь приятно любоваться панорамой города. Столешница выполнена из дерева сикомора, напоминающего цветом и текстурой мрамор.
Houzz тур: Трехэтажная квартира с террасой на крышеEvgeniya Beschastnykh
Чтобы связать разные по колориту уровни, Олеся Ситникова придумала необычный декор — геометрический орнамент в этническом стиле. И на каждом этаже квартиры повторила его в разном масштабе в металлической ажурной решетке. «Получилась эклектика, где в минималистичную архитектуру вплетаются этнические акценты. Этника здесь — собирательный образ на тему восточного орнамента», — рассказывает архитектор. На первом этаже металлическое кружево появилось на деревянном панно на стене в коридоре. Панно дает многослойность и акцент, видимый со всех точек при входе в квартиру. Раскладка паркета геометрически перекликается с орнаментом на стене.
Houzz тур: Трехэтажная квартира с террасой на крышеEvgeniya Beschastnykh
На фото: дверь в санузел « растворяется » на фоне декоративного панно Внутри панно спрятаны двери в гостевой санузел и ванную комнату. Двери сделаны по эскизам архитекторов компанией Cesare Ferrari Group, которая обычно помогает студии « Арх.Предмет » исполнить самые сложные элементы.
САНУЗЕЛ НА ПЕРВОМ ЭТАЖЕ Санузел и ванную комнату разделяет стеклянная стена. В ней отражаются веточки, выглядывающие из поставленных в ряд ваз.
Houzz тур: Трехэтажная квартира с террасой на крышеEvgeniya Beschastnykh
ВАННАЯ КОМНАТА НА ПЕРВОМ ЭТАЖЕ На полу в ванной комнате лежит гранит, его обработали щетками, чтобы получить фактуру « под кожу » . Зеркало в деревянной раме и пуфик поддерживают этническую тему.
Houzz тур: Трехэтажная квартира с террасой на крышеEvgeniya Beschastnykh
Стена за ванной отделана ониксом, разложенным в красивый рисунок.
Houzz тур: Трехэтажная квартира с террасой на крышеEvgeniya Beschastnykh
Лестница с деревянными ступенями связывает три этажа квартиры. Первой ступенью стал постамент из мрамора, также напоминающий фактурой кожу. Перила лестницы — максимально нейтральные, стеклянные. Пространство под лестницей украшает изумрудно-синяя ваза ломаной формы. В первом лестничном пролете висит картина, собравшая оттенки металла и акцентных деталей интерьера.
Houzz тур: Трехэтажная квартира с террасой на крышеEvgeniya Beschastnykh
Лестница выполнена по эскизам архитекторов фабрикой Marretti В следующем пролете появляется композиция из металлических световых чешуек, часть которых подсвечивается. Этот художественный свет работает как ночник, а технический свет, проходя по низу стены вдоль всей лестницы, освещает ступени.
Houzz тур: Трехэтажная квартира с террасой на крышеEvgeniya Beschastnykh
ПЛАН ВТОРОГО ЭТАЖА Второй уровень отвели под спальный блок хозяев. Вдоль панорамных окон последовательно расположились спальня, гардеробная и просторный санузел с душевой и отдельно стоящей ванной. Помещения соединяются между собой с помощью раздвижных дверей.
Houzz тур: Трехэтажная квартира с террасой на крышеEvgeniya Beschastnykh
СПАЛЬНЯ Пространство второго этажа — теплое и мягкое, а темный орех сменяется светло-золотистым дубом. Стены покрашены в теплый оттенок серого. Дверь в спальню сделали двусторонней: с внешней стороны — в таком же, как лестница, орехе, со стороны спальни — в золотистом шпоне дуба.
Houzz тур: Трехэтажная квартира с террасой на крышеEvgeniya Beschastnykh
На втором этаже металлическое кружево появляется на оконных ставнях, причем в более крупном формате, чем на стене в прихожей.
Houzz тур: Трехэтажная квартира с террасой на крышеEvgeniya Beschastnykh
Комод Stripes, Emmemobili по дизайну Ферруччо Лавиани Комод в шпоне дуба хорошо вписался в пространство спальни. «Я очень люблю использовать в проектах мебель этой фабрики», — отмечает Олеся Ситникова. Деревянные бороздки и раскладка модулей на комоде поддерживают геометричный характер орнамента на окнах. Сложный по фактуре, нейтральный по цвету, обволакивающий и природный по ощущениям ковер от Яна Ката, нежные бра и вазочки смягчают эту геометрию.
Houzz тур: Трехэтажная квартира с террасой на крышеEvgeniya Beschastnykh
Картина над комодом: работа художника Виктора Седова, галерея « Агентство. Art Ru » Олеся часто использует в своих проектах и живописные работы Виктора Седова, отражающие переживание и философское прочтение автором явлений природы. Весенний лес, изображенный на картине, вместе со светильниками, напоминающими заглянувшую в окно луну, создают весеннее настроение.
Houzz тур: Трехэтажная квартира с террасой на крышеEvgeniya Beschastnykh
Изголовье-ширму сделали на заказ Изголовье кровати, выполненное в виде ширмы, выглядит масштабным. Для создания уютного замкнутого пространства боковые части ширмы выдвинули вперед. Округлые формы тумбочек и настольных ламп уравновешивают геометрию комода и орнаментов на окне.
Houzz тур: Трехэтажная квартира с террасой на крышеEvgeniya Beschastnykh
Вдоль линии окон через спальню, гардеробную и ванную комнату протянулась анфилада с выходом на огромную лоджию. Эта светлая стеклянная галерея с ажурными ставнями завершается отдельно стоящей ванной.
Houzz тур: Трехэтажная квартира с террасой на крышеEvgeniya Beschastnykh
ВАННАЯ КОМНАТА Ванну поставили у окна, чтобы наслаждаться панорамой города. Ставни на окнах работают по принципу раздвижной двери. Их створки можно двигать в разных направлениях. Когда необходимо максимально открыть окно, створки собирают в одну.
Houzz тур: Трехэтажная квартира с террасой на крышеEvgeniya Beschastnykh
На стены ванной комнаты нанесено декоративное покрытие для влажных зон. В просторном помещении нашлось место для длинной столешницы с двумя раковинами. В большом зеркале отражается слэб мрамора Palissandro Bronzo. Это не только декоративный элемент — за панелью прячется душевая. В душевой на полу лежит камень. В самой дальней части комнаты, с противоположной от окна стороны, находится туалет.
Houzz тур: Трехэтажная квартира с террасой на крышеEvgeniya Beschastnykh
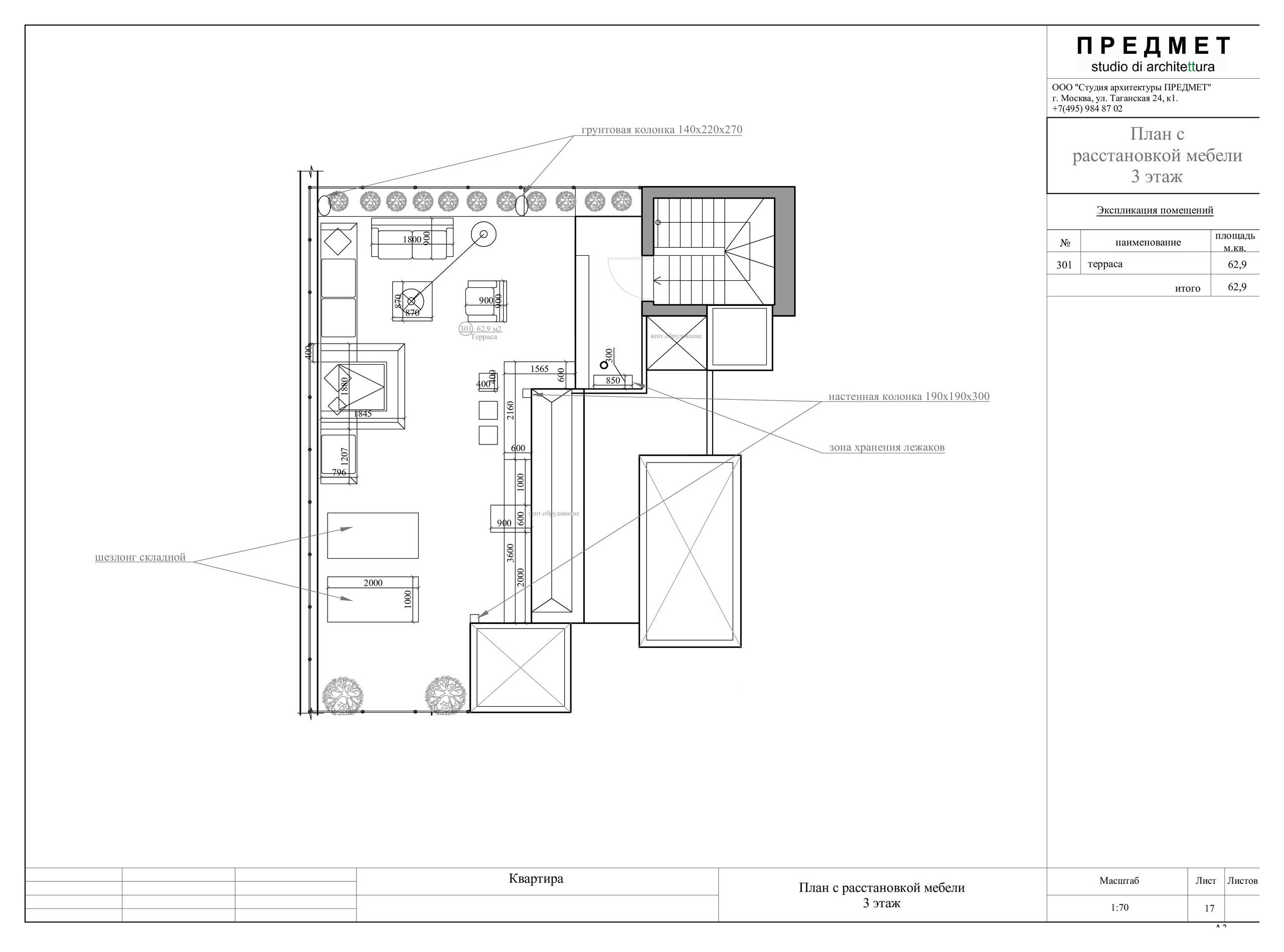
ПЛАН ТРЕТЬЕГО УРОВНЯ На открытой террасе сделали лаунж-зону с видом на город.
Здесь металлическое кружево — декоративный элемент, создающий настроение на крыше. Оно повторилось в более мелком, чем на втором уровне, масштабе и подсвечивается изнутри с помощью спрятанной за ним световой панели. Другое назначение ажурной решетки — закрывать воздуховоды. ОБ АВТОРАХ ПРОЕКТА… Перейдите на страниц у с тудии дизайна интерьеров «Арх.Предмет» , чтобы изучить другие работы из портфолио архитекторов __________________ В ВАШЕМ ГОРОДЕ… Найдите архитектора на Houzz в вашем городе — закажите собственный проект У ВАС ЕСТЬ ДЛЯ НАС ПРОЕКТ… Загрузите съёмку в свой профиль на Houzz, отправьте ссылку с кратким описанием на editorial@flatica.ru Для справки: Какие объекты мы публикуем

Комментарии 40

Скучно, неодушевленно, а лестница просто для желающих получить несколько травм сразу: ободраться об отделку с подсветкой, разрезаться о стеклянные перила и свернуть шею из-за крутого спуска. Непонятно, куда дели 300 кв.м. Номер в дорогом отеле для краткосрочных командировок.
терраса!!!!!!!
Потрясающая квартира, выдержана по цветам, много индивидуальных предметов, материалы отделки натуральные.. удовольствие по текстуре и с шикарной террасой.

Оставьте комментарий

Читать похожие статьи