logo

Houzz тур: Интерьер для заказчиков, которые устали от классики

Свежая гамма, кухонный остров по диагонали, авторская отделка и ставни — владельцы были открыты к любым новым решениям

Евгения Назарова
Евгения Назарова

11 февр. 2021

Обновлено 22 мар. 2021

Постоянный автор Houzz, интерьерный журналист

Студию AR-1 заказчику порекомендовал брат, поэтому с самого старта проекта владельцы относились к дизайнерам с большим доверием: почти не вмешивались в процесс и только утверждали предложенные решения. Интерьер с настроением лёгкого морского бриза и освежающей палитрой в синих тонах родился в атмосфере полной свободы к радости заказчиков, открытых ко всему новому.
Houzz тур: Интерьер для заказчиков, которые устали от классикиАлексей Голуб
О проекте Место: Санкт-Петербург, Крестовский остров, ЖК Привилегия Размер: 130 кв. м Кто здесь живёт: пара, в гости часто приезжает маленькая внучка Дизайнеры проекта: Алексей Голуб и Юлия Штейванд, студия AR-1 Architecture & Design Фото: Сергей Красюк , стилисты Анжела Вечко, Алексей Чмиль
Houzz тур: Интерьер для заказчиков, которые устали от классикиАлексей Голуб
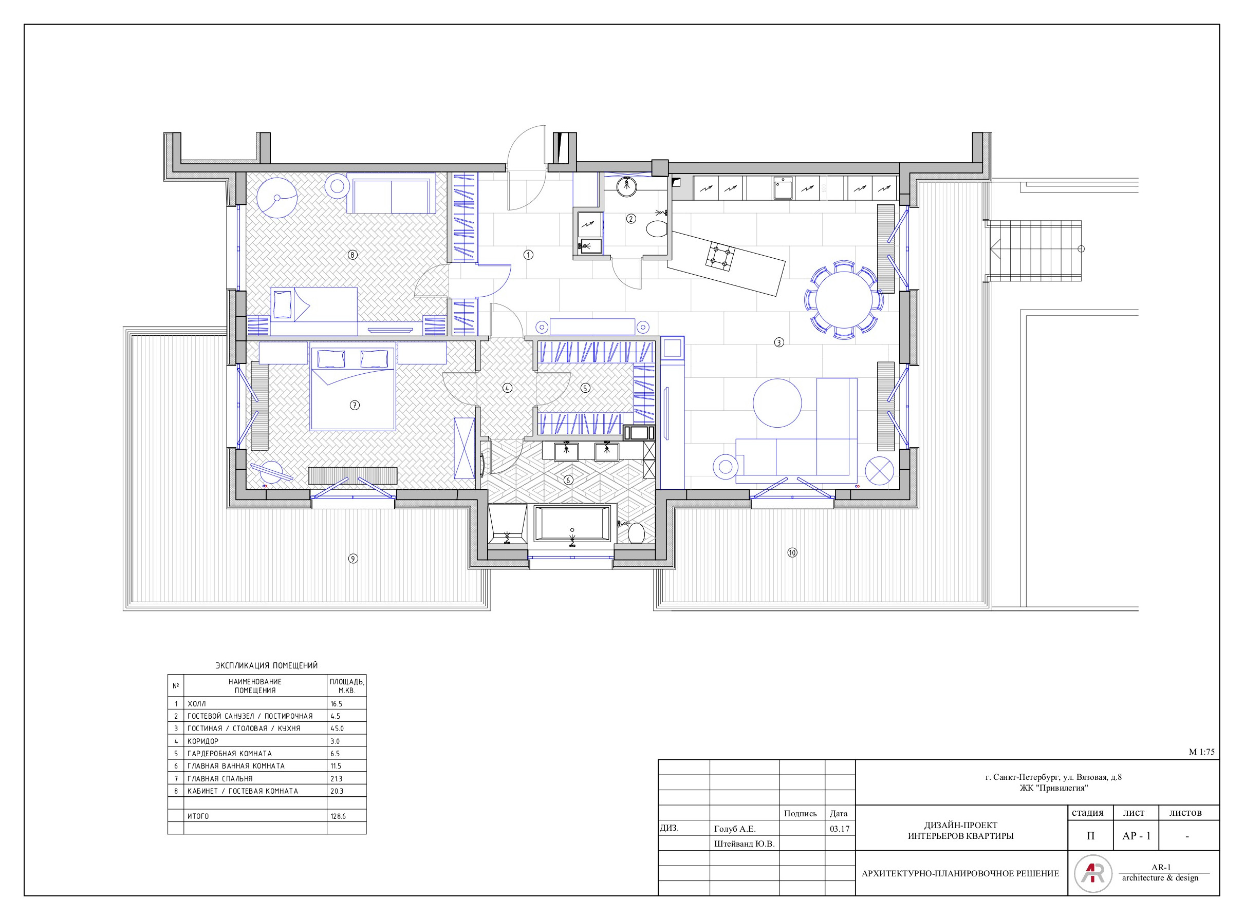
Дизайнеров пригласили ещё на этапе выбора объекта. Из нескольких предложенных вариантов Алексей Голуб и Юлия Штейванд увидели наибольший потенциал у 130-метровой трёхкомнатной квартиры. Главными преимуществами стали выход на зелёную террасу, большие окна и возможность перепланировки. Последний аргумент оказался кстати: расположение функциональных зон пришлось изменить.
Планировка квартиры В исходной планировке холл занимал почти треть площади квартиры, его уменьшили, чтобы распорядиться пространством более рационально и добавить гардеробную. Гостиную объединили с кухней — в проекте застройщика она была изолированной и слишком узкой. ———————– СПРОСИТЕ У ДИЗАЙНЕРА НАПРЯМУЮ ►Есть уточняющие вопросы? Хотите заказать свой проект дизайнеру этого интерьера? — Свяжитесь с автором этого проекта в один клик ———————–
Houzz тур: Интерьер для заказчиков, которые устали от классикиАлексей Голуб
Светильники Vibia; банкетка сделана на заказ; ткань на стеновых панелях и мебели Kobe ПРИХОЖАЯ Входная зона встречает нейтральной гаммой и масштабными встроенными системами хранения (эта особенность проекта хорошо видна на плане). По противоположной стене, при входе, предусмотрели банкетку с зеркалом, таким образом обыграли нишу, обусловленную воздуховодом.
Houzz тур: Интерьер для заказчиков, которые устали от классикиАлексей Голуб
Диван Meridiani; торшер Eichholtz; журнальный столик Vanguard; шторы из ткани Mark Alexander ГОСТИНАЯ Заказчики провели большую часть жизни в традиционных, классических интерьерах, но от этого проекта ждали « свежего воздуха » — непривычных решений по стилю и палитре. Основная гамма интерьера — синие и бирюзовые оттенки: они появились во всех помещениях, от гостиной до ванной комнаты. Гостиную и кухню-столовую превратили в единое пространство: огромный угловой диван, ориентированный на ТВ-зону, располагает к долгим расслабленным вечерам.
Houzz тур: Интерьер для заказчиков, которые устали от классикиАлексей Голуб
Идея и решение: П олы в гостиной — из массива ясеня. По замыслу дизайнера элементы покрытия тонировали в три разных оттенка. Затем перебрали вручную, чтобы создать эффект лёгкой пестроты.
Houzz тур: Интерьер для заказчиков, которые устали от классикиАлексей Голуб
КУХНЯ Одна из главных особенностей новой планировки — развернутый по диагонали кухонный остров, который придаёт динамизм всему помещению. При традиционной параллельной расстановке чем-то пришлось бы жертвовать: либо смириться с узким проходом между основной и островной частью кухни, либо заузить входной проём в гостиную (и тем самым отказаться от красивой перспективы). Расстановка под углом решила обе проблемы, а чтобы остров смотрелся более эффектно, его и прилегающую стену облицевали керамогранитом с диагональным рисунком мраморных прожилок.
Houzz тур: Интерьер для заказчиков, которые устали от классикиАлексей Голуб
Кухонный гарнитур Leicht; остров изготовили на заказ в Санкт-Петербурге; стулья Hickory Chair; стол сделан на заказ; светильники Vistosi Дополнительным бонусом диагонального расположения острова стало достаточное количество места для большого обеденного стола. В стандартном режиме он рассчитан на четверых, но может вместить и компанию из шести человек: стулья-компаньоны в таких случаях приносят из жилых комнат.
Houzz тур: Интерьер для заказчиков, которые устали от классикиАлексей Голуб
СПАЛЬНЯ ВЛАДЕЛЬЦЕВ В спальне дизайнеры предложили заменить традиционные шторы ставнями: этот приём привносит ощущение большей приватности и вместе с тем теплоты — за счёт деревянной отделки. Ставни не обязательно открывать вручную: для них разработали моторизированный механизм на базе похожего привода штор.
Houzz тур: Интерьер для заказчиков, которые устали от классикиАлексей Голуб
Подвесные светильники у кровати Glassburg; прикроватные тумбы и кровать сделаны на заказ
Houzz тур: Интерьер для заказчиков, которые устали от классикиАлексей Голуб
Диван La Forma; придиванный стол Zara Home ДЕТСКАЯ В этой комнате остаётся погостить внучка заказчиков, и гамма несколько отличается о остальных помещений в квартире. Интерьер стремились сделать более нежным, хотя и не нарочито детским. Пастельные оттенки мяты и пудры, солнечные акценты за счёт блеска металла — добиться этого ощущения удалось за счёт подобранной палитры.
ВАННАЯ КОМНАТА В оформлении ванной комнаты сочетали несколько материалов — от раскладки керамогранита « ёлочкой » до покраски. Для стен душевой специально разработали влагозащитное декоративное покрытие с серебряной поталью. ——————————————— В ВАШЕМ ГОРОДЕ… ► Через Houzz можно нанять дизайнера или архитектора в любом городе и стране. Начать поиск специалиста ——————————————— У ВАС ЕСТЬ ДЛЯ НАС ПРОЕКТ… Загрузите съёмку в свой профиль на Houzz, отправьте ссылку с кратким описанием на editorial@flatica.ru Для справки: Какие объекты мы публикуем

Комментарии 17

О, ужас... Ванная точно как была у сестры в питерской коммуналке - та же ядовито-синяя краска на стенах и медные краны, торчащие из стены... Тазов на гвоздиках только не хватает для полного счастья и белья на веревке.
Ala S Ala

4 г.

Больше всего понравилась спальня, особенно оформление окон. А вот ванная комната все-таки холодная, что-то не то со цветовой гаммой. Тепла бы добавить. Не совсем понятно зачем был нужен остров, который надо было еще и думать, как разместить в зоне кухни. Почему бы кухню не расположить буквой Г. Семья небольшая, рабочей поверхности хватило бы. Очень понравились все светильники. Вот именно кухонные светильники могли бы быть зонирующим элементом, который ненавязчиво разделяет кухню от гостиной, при этом не отнимая пространство.
Опять же, очередная мертвая «Потемкинская деревня». Убраны все признаки жизнедеятельности обитателей, как-то, например, рулон туалетной бумаги, полотенце, памятные вещички, приобретенные, подаренные, унаследованные, халат и пара сменной обуви, чайник, кофеварка, тостер и подобное, цветы в горшке(живые) и лейка и т.п. Кажется, что обитатели сего интерьера вышли ниоткуда и не живут никак. Плохо это, не правильно так создавать интерьер, чисто для фотосессии и так, что любая лишняя деталь делает его неопрятным и никчемным. Учитесь у дизайнеров Икеа.

Оставьте комментарий

Читать похожие статьи