logo

Houzz тур: Экологичная квартира у ботанического сада

Интерьер в природной гамме — с натуральными красками и ресурсосберегающими технологиями

Евгения Назарова
Евгения Назарова

7 апр. 2021

Обновлено 14 июня 2021

Постоянный автор Houzz, интерьерный журналист

В интерьерной среде много говорят об экологии, но каждый специалист понимает под этим определением что-то своё. Для кого-то экологичность исчерпывается использованием материалов с древесной фактурой; другие готовы всерьёз проверять каждый отделочный материал и технологию.

Для Олеси Федоренко, создательницы студии HomeNature, экологическая составляющая один из приоритетов в создании любого проекта: прежде чем начать ремонт, на объекте проводят полноценную экспертизу. Квартира возле ботанического сада стала в практике дизайнера первым объектом, который прошёл экспертизу без единого отклонения.
Houzz тур: Экологичная квартира у ботанического садаOlesya Fedorenko
О проекте
Место:
Москва, ЖК Green Park недалеко от Главного ботанического сада РАН
Размер: 115 кв.м
Кто здесь живёт: семья из четырёх человек родители и две дочери
Дизайнер проекта: Олеся Федоренко, студия HomeNature
Фото: Сергей Ананьев, стилист Наталья Онуфрейчук
———————–
СПРОСИТЕ У ДИЗАЙНЕРА НАПРЯМУЮ
Есть уточняющие вопросы? Хотите заказать свой проект дизайнеру этого интерьера? Свяжитесь с автором проекта в один клик
———————–
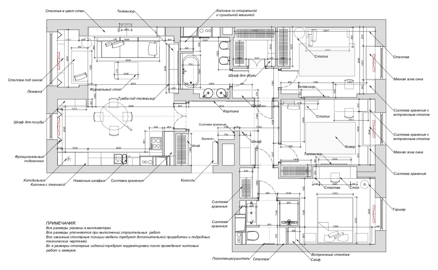
Планировка квартиры

По проекту от застройщика в квартире была небольшая кухня и изолированная гостиная, площадь которой составляла всего 11 кв.м. После перепланировки кухню и гостиную объединили.

Планировка квартиры предусматривает разделение квартиры на приватную и общую зоны, которые находятся в отдалении друг от друга. Кроме кухни-гостиной, на площади 115 кв.м разместили просторные детские комнаты, спальню хозяев, два санузла и гардеробную.
Houzz тур: Экологичная квартира у ботанического садаOlesya Fedorenko
ГОСТИНАЯ
Заказчики с интересом участвовали в процессе создания проекта и предложили в качестве основной идеи средиземноморские мотивы. Прямых ассоциаций (морских пейзажей или гальки) в проекте не проводили, но идею передали в нюансах в первую очередь, в палитре основных пространств.

За основу взяли мятный оттенок, в который выкрасили стены, встроенную мебель и часть кухни. В мятной обивке подобрали даже диван в гостиную. Благодаря такой работе с цветом интерьер кажется более просторным, открытым и чистым. Средиземноморскую тематику поддержали и с помощью материалов: дерева, цементной плитки, терраццо, ротанга.
Houzz тур: Экологичная квартира у ботанического садаOlesya Fedorenko
Главным критерием выбора мебели и отделки была экологичность. Предпочтение отдавали поставщикам, имеющим экологические сертификаты на свою продукцию. Деревянные материалы от паркета до встроенной мебели изготовлены из сырья, сертифицированного по FSC-стандарту: это значит, что продукция произведена из леса, в котором ведётся экологически и социально ответственное хозяйство.

Весь текстиль имеет сертификат Naturtextil: у таких тканей проверили не только состав, но и процесс производства и утилизации. Краски водорастворимые, на основе подсолнечного масла. В интерьерах использованы и инновационные глиняные покрытия.
Houzz тур: Экологичная квартира у ботанического садаOlesya Fedorenko
Вся мягкая мебель изготовлена в мастерской DNK Interior

В гостиной разместили стеллаж для книг, коллекции фотоаппаратов и ракушек, большой диван и отдельную лежанку для чтения. Вместо телевизора организовали домашний кинотеатр со встроенным в потолок выдвижным экраном и проектором. Традиционные портьеры заменили деревянными ставнями, которые поддерживают концепцию проекта. На подоконнике можно устроиться с книгой или чашкой чая, чтобы любоваться пейзажем.
Houzz тур: Экологичная квартира у ботанического садаOlesya Fedorenko
Раздвижной стол изготовлен по эскизам дизайнера в мастерской Алексея Тискина; люстра над столом Arteriors Home; стулья Roche Bobois; гипсовая панель изготовлена в мастерской «Дикарт»

Зону столовой формируют круглый стол, стулья с ротанговым плетением и люстра из состаренного дерева, выловленного в океане. Фигурное декоративное панно из гипса стало акцентом и связующим звеном всех элементов белого цвета в этом помещении.
Houzz тур: Экологичная квартира у ботанического садаOlesya Fedorenko
Терраццо Grandinetti, столешница изготовлена в мастерской «Л-Камень»

Благодаря перепланировке кухня получилась достаточно большой, со множеством систем хранения и просторными рабочими поверхностями. Здесь разместили всю необходимую бытовую технику, включая винный шкаф.

Проблема и решение: материал терраццо заказывали в Италии, но когда его доставили, оказалось, что никто из производителей не готов взяться за создание столешницы. Согласился единственный партнёр, который качественно и за адекватную стоимость изготовил эту столешницу.
Houzz тур: Экологичная квартира у ботанического садаOlesya Fedorenko
Кровать изготовлена в мастерской DNK Interior

СПАЛЬНЯ
В отличие от мятной гостиной, для спальни выбрали более насыщенные оттенки зелёного. Общую эконаправленность сохранили: это касается и выбора материалов, и декоративного сценария. Например, рисунок линий на панно в изголовье напоминает лес. При создании рабочей зоны использовали шпон натурального дуба.
Houzz тур: Экологичная квартира у ботанического садаOlesya Fedorenko
Обои с облаками Sanderson; люстра изготовлена по эскизам в мастерской Handle Studio

ДЕТСКИЕ
В квартире две детские комнаты. Их хозяйки, девочки 11 лет, творческие натуры: одна профессионально занимается художественной гимнастикой, другая рисует. Интерьеры похожи между собой, но у каждой комнаты собственный характер: одному помещению достались обои с парящими облаками, другому сиреневые оттенки, графичные канты и ласточки в оформлении акцентной стены.
Houzz тур: Экологичная квартира у ботанического садаOlesya Fedorenko
«Детские комнаты проработаны до мелочей, здесь потребовались сложные конструкторские решения. Мы разместили встроенные и открытые системы хранения, рабочие зоны и зоны для творчества, предусмотрели функциональное решение окон на каждом есть мягкая зона», рассказывает Олеся Федоренко.
Houzz тур: Экологичная квартира у ботанического садаOlesya Fedorenko
Полотна с ласточками из мастерской Fresq

Идея и решение: две детские объединили между собой окном, которое закрывается ставнями. Девочки постоянно общаются и сами предложили это решение. Полотна с ласточками, которые просматриваются через внутреннее окно, нарисовали вручную.
Ванна и раковины Laufen; цементная плитка Luxemix; смесители c аэраторами Grohe

ВАННАЯ КОМНАТА
Экологическую составляющую учли при выборе водо- и энергосберегающих технологий. Смесители с картриджами Ecototal и аэраторами позволяют сократить потребление воды и электричества, а санфаянс оснащён опцией регулировки объёма сливаемой воды. Светодиодные системы экономят электроэнергию, не содержат ртуть и не требуют особых условий утилизации.

———————————————
В ВАШЕМ ГОРОДЕ…
Через Houzz можно нанять дизайнера или архитектора в любом городе и стране. Начать поиск специалиста
———————————————

У ВАС ЕСТЬ ДЛЯ НАС ПРОЕКТ…
Загрузите съёмку в свой профиль на Houzz, отправьте ссылку с кратким описанием на editorial@flatica.ru

Для справки: Какие объекты мы публикуем

Комментарии 11

Подскажите, пожалуйста, цвет стен (мятный) в гостиной. Очень надо)))
Хм, я тоже не вполне поняла, откуда планируется смотреть телевизор (проектор), а также на какой такой пейзаж дизайнер предложила хозяевам любоваться с подоконника в гостиной)))) колористическое решение приятное
У нас действительно нет общего понятия что значит экологичный. А поэтому к любому предмету или явлению с этим прилагательным будут вопросы. Насколько экологична доставка столешницы из Италии? Экологично ли использовать деревянные ставни как замена штор (дерево ведь растёт много дольше)? И как утилизируется строительный мусор? Хорошо, конечно что у нас тоже стали появляться дизайнеры, которые об этом задумываются. А проект хороший.

Оставьте комментарий

Читать похожие статьи