logo

Houzz тур: Преображение однокомнатной квартиры для семьи с двумя детьми

Как здесь появилось две спальных зоны, гостиная, кухня, раздельный санузел и даже постирочная с гардеробом

Екатерина Перминова
Екатерина Перминова

20 дек. 2015

Обновлено 22 янв. 2016

Постоянный автор HouzzRu, журналист

Превратить типовую однокомнатную квартиру в комфортное жилье для семьи с двумя детьми можно, если довериться профессионалу. Именно грамотная планировка, разработанная дизайнером Ольгой Подольской, стала решающей в проектировании новой квартиры для большой и дружной семьи мамы с папой и двоих детей (двух и трех с половиной лет).

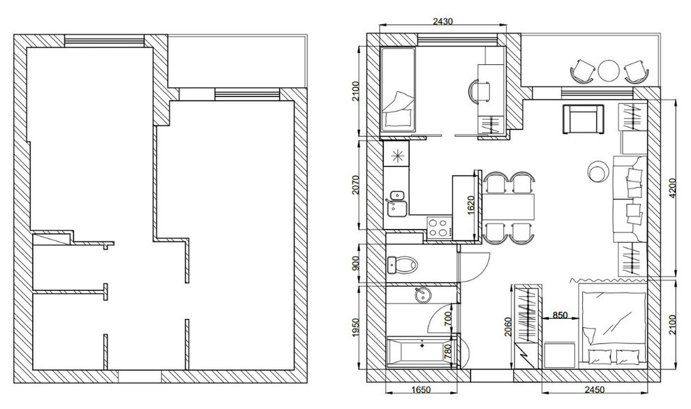
«Большую часть времени в квартире проводит мама с малышами, поэтому я ориентировалась, главным образом, на их интересы, режим дня, занятия, и многое в новом интерьере создавалось для них, рассказывает Ольга. Мы слегка изменили планировку квартиры, добавив нишу для кровати взрослых и уменьшив кухню в пользу детской».
Houzz тур: Преображение однокомнатной квартиры для семьи с двумя детьми
О проекте
Место: Санкт-Петербург
Размер: 41 кв.м; высота потолков: 3 м
Кто здесь живет: семья из четырех человек
Автор проекта: Ольга Подольская
Фото: Иван Сорокин

Деликатную цветовую гамму (цвета полыни, чайной и белой розы и бордо), как и классическую стилистику, выбрали по просьбе хозяйки. Интересно, что основой дизайн-проекта стали детали и предметы декора, и, отталкиваясь от них, дизайнер комплектовала общую концепцию. Так, к финальным вариантам плитки в ванной подбирались цвета фасадов шкафов, а патину фисташкового оттенка выбирали под обои на кухне.
Houzz тур: Преображение однокомнатной квартиры для семьи с двумя детьми
Houzz тур: Преображение однокомнатной квартиры для семьи с двумя детьми
Шкафы с зеркальными дверцами, кстати, вовсе не буфетные, как может показаться на первый взгляд. Они представляют из себя полноценный гардероб, из-за размеров пространства поделенный на два шкафа 60х60 см, куда легко входит одежда и домашний текстиль.

Остальные вещи, а также стиральная машинка переехали в шкаф, который стоит в коридоре. Для этого пространство последнего пришлось слегка расширить.
Houzz тур: Преображение однокомнатной квартиры для семьи с двумя детьми
Houzz тур: Преображение однокомнатной квартиры для семьи с двумя детьми
Все столярные изделия выполнены по авторским эскизам дизайнера в той же мастерской, что и другие работы Ольги проверенное временем качество, которого можно достичь в короткие сроки, а это в процессе ремонта важно, как никогда. Диван же купили в интернет-магазине.
Houzz тур: Преображение однокомнатной квартиры для семьи с двумя детьми
Так как потолки в квартире высокие, а площадь гостиной визуально сократилась за счет зоны «родительской спальни», обои решили клеить не по всей высоте стены, тем самым как бы расширив геометрию помещения.

Большую роль в «воздушности» квартиры сыграли высокие французские окна они пропускают много солнечного света и воздуха, а летящие занавески подчеркивают и дополняют легкость пространства. А если распахнуть эти красивые окна, можно выйти на небольшой открытый балкон, вдохновиться природой и с маленькой террасы любоваться чудесным видом на озеро.
Houzz тур: Преображение однокомнатной квартиры для семьи с двумя детьми
Малышей в семье двое оба мальчишки. Лучшие качества, такие как самостоятельность и умение делиться, родители решили воспитывать в них с детства у мальчиков есть своя, пусть небольшая, но отдельная детская комната на двоих, куда поставили двухъярусную кровать с выдвижными ящиками и оборудовали небольшое личное пространство для каждого. Шкафы и стол для детских занятий потребовали новых квадратных метров, которые дизайнер «выкроила» из кухонного метража.
Houzz тур: Преображение однокомнатной квартиры для семьи с двумя детьми
Пришла очередь кухни, которая к этому этапу перепланировки значительно уменьшилась. Чтобы не дробить помещение разноплановыми деталями, притягивающими внимание, кухонный фартук сделали стеклянным, поставив экраны поверх выбранных обоев.
Другой оригинальный дизайн-прием шкафы разной глубины.

«Верхние ящики проектировались с учетом вентиляционной шахты, рассказывает автор. Пришлось в некоторых местах обходить неровности стен и часть ящиков сделать меньше по глубине. Так получилась полноценно оборудованная кухня с необходимой техникой». Вытяжка тоже закрыта дверцами шкафа с этой задачей отлично справился фальш-фасад.
Houzz тур: Преображение однокомнатной квартиры для семьи с двумя детьми
«Подвинуться» пришлось и санузлу. Ольга перенесла стену, разделяющую ванную и туалет на 25 см вглубь территории последнего. Благодаря этому в ванной появилась длинная столешница, которая визуально вытянула пространство. Сверху установили накладную раковину, она завершила проект композиционно.

При точном расчете в маленькое пространство вошла и настоящая ванная длиной 1,6 м. А штору для душа выбрали необычную практически бархатную: на полиэтиленовую основу нанесен внешний декоративный слой, имитирующий текстиль, но при этом сохраняющий свойства водонепроницаемости.

«Стены мы оклеили виниловыми обоями, а в “мокрой” зоне положили плитку. Это позволит изменить сценарий и настроение помещения через пару лет, когда захочется освежить ремонт и впечатления. Достаточно будет переклеить обои», делится Ольга.
Houzz тур: Преображение однокомнатной квартиры для семьи с двумя детьми
Бордовый — столь любимый хозяйкой цвет решили использовать для оформления ванной комнаты, придав интерьеру роскоши. Санузел же кардинально другой для визуального увеличения маленькой площади (всего 2 кв.м) дизайнер предложила составить палитру из двух светлых тонов, использовав для этого обои цвета чайной розы (то, что просила хозяйка) и золотистую плитку.

Уюта добавляет и теплый свет, и картинка в позолоченной раме. Надо сказать, что картина выполняет еще одну важную функцию — закрывает коллекторный люк.
Houzz тур: Преображение однокомнатной квартиры для семьи с двумя детьми
С помощью всех этих приемов Ольге удалось реализовать на маленькой площади две самодостаточных спальных зоны, гостиную, отдельную ванную и кухню, и даже задействовать коридор в качестве гардеробной. Так родилось многофункциональное пространство для большой семьи в маленькой квартире.

И теперь, когда в доме собирается вся семья, никому не тесно наоборот, все стараются с удовольствием проводить время вместе, наслаждаться красотой, уютом и радостью домашнего общения.
Houzz тур: Преображение однокомнатной квартиры для семьи с двумя детьми
Планы квартиры до перепланировки и после

ПРЕДЛОЖИТЕ СВОЙ ПРОЕКТ ДЛЯ ПУБЛИКАЦИИ…
Загрузите фотосъемку в свой профиль на Houzz.ru, отправьте ссылку и краткое описание проекта наeditorial@flatica.ru

Мы обязательно свяжемся с вами, если примем решение о публикации!

Комментарии 137

tavar65

1 г.

Слишком много потрачена нерационально . Семья, как ютилась в маленьком помещении, так и продолжит ютиться. Жить скученно- это очень тяжело. Мест для хранения в квартире вообще нет. Все будет навалено. Быт будет тяжелый. Даже сушки для белья нет места А при продаже этот ремонт не будет учитываться в стоимости.
Alya

5 л.

по комментариям сразу видно отношение к женщине в нашем обществе. Именно потребности женщины должны быть важнейшими в принятии решений по обустройству домашнего пространства. ибо на ней все и держится (как раз в нашем обществе). Муж, мальчики - их потребности хорошо учитывать когда площадь квартиры позволяет учитывать все! а когда у тебя 40 квадратов на четверых, то извините. Здесь рулят потребности женщины хозяйки дома
Юля К

5 л.

Проект, конечно, очень красивый. Но возникает вопрос, а как вся семья собирается на улицу? Где хранится обувь и одежда? Дети маленькие, их одеть можно только сидя? . Коридор узкий не увидела там место для обувницы и одежды (кроме как в шкафу?) . . Где размещать сушилку для постиранной одежды? Опять же дети маленькие стирка часто и много? . Двухярусная кровать для довольно маленького ребёнка выглядит опасной. . Где вообще хранятся вещи семьи? Совершенно нет мест хранения. Эти витрины в гостиной больше для красоты. Плюс стеклянная мебель при наличии таких маленьких детей тоже довольно опасная, затея . По сути на семью из четырёх человек шкаф для одежды, два комода и ящики в детской кровати. 😱 Этого очень мало . . .

Оставьте комментарий

Читать похожие статьи