logo

Houzz тур: Маленькая квартира в Волгограде с двухэтажной лоджией

Скромная перепланировка превратила типовую квартиру в студию, а ее расположение позволило обустроить двухуровневый чилл-аут на лоджии

Евгения Назарова
Евгения Назарова

17 мар. 2016

Обновлено 27 мар. 2016

Постоянный автор Houzz, интерьерный журналист

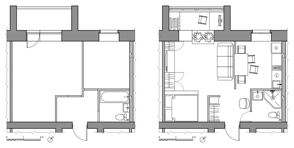
Уютный минимализм с элементами скандинавского дизайна именно так можно охарактеризовать этот светлый интерьер небольшой квартиры, в которой поселилась молодая пара. Дизайнеры студии Archcore превратили малогабаритную однушку типовой серии в стильную студию, разграничив пространство на четыре зоны: на 36 квадратных метрах разместились кухня, спальня, гостиная и двухэтажная лоджия с зоной отдыха — чилл-аутом. Все, что для этого потребовалось минимальная перепланировка, нестандартный подход и четкое понимание интерьерных «можно» и «нельзя» для небольшой площади.

О проекте
Место:
Волгоград
Размер: 36 кв.м
Кто здесь живет: Молодая пара
Авторы проекта: Артем Чумаченко и Яна Недоступова, Archcore
Houzz тур: Маленькая квартира в Волгограде с двухэтажной лоджиейЧумаченко Артём
Небольшая площадь квартиры это не только потенциальные проблемы, но и преимущества: при правильной планировке все оказывается под рукой. При этом стены не давят на владельцев и не создают ощущения коробки.

В этой типовой квартире, построенной в начале 2000-х, авторы проекта сразу предложили избавиться от дверного проема между комнатой и кухней таким образом пространство превратилось в современную студию с большим количеством воздуха и света. На месте двери появилось большое внутреннее окно.
Houzz тур: Маленькая квартира в Волгограде с двухэтажной лоджиейЧумаченко Артём
Пространство небольшой прихожей решили не перегружать объемными системами хранения: для молодой пары вполне достаточно открытой стойки, чтобы повесить верхнюю одежду.

Благодаря светлым краскам небольшая прихожая не кажется тесной, а отсутствие двери между входной зоной и основным жилым пространством работает на визуальное и стилистическое единство интерьера. В общую концепцию вписан даже дизайн входной двери: белое покрытие с легким глянцевым эффектом хорошо отражает свет.
Houzz тур: Маленькая квартира в Волгограде с двухэтажной лоджиейЧумаченко Артём
Внутреннее окно объединяет зону гостиной и кухни: находясь в разных частях квартиры, ее владельцы могут общаться, не повышая голоса. При этом простенки решают задачу зонирования, четко обозначая границу между жилым и кухонным пространством.

Идейным центром зоны гостиной стал кожаный диван классической формы. Со стороны кухни к нему примыкает обеденный стол ни один квадратный сантиметр небольшой площади не выпадает из системы рационального использования.


ЧИТАЙТЕ ТАКЖЕ…
Раздаточное окно: Атавизм или новая тенденция?
Houzz тур: Маленькая квартира в Волгограде с двухэтажной лоджиейЧумаченко Артём
На фоне характерной для скандинавского дизайна белой отделки выделяются яркие бирюзовые акценты и декоративные обои с интересным орнаментом. Их создал дизайнер Ларс Контцен совместно с A.S. Création: рисунки, в которых графический узор переплетается с растительным орнаментом, добавляют динамику в интерьер маленькой квартиры.
Houzz тур: Маленькая квартира в Волгограде с двухэтажной лоджиейЧумаченко Артём
Зону спальни вписали в большую нишу, образованную перегородкой между комнатой и прихожей и внешней стеной. Яркая акцентная стена добавила пространству глубины, а внутренние ящики решили проблему хранения спальных принадлежностей.

От зоны гостиной спальню отделяет невысокая перегородка-стеллаж с выдвижным ящиком таким образом, места для хранения аксессуаров оказывается более чем достаточно для пары.
Houzz тур: Маленькая квартира в Волгограде с двухэтажной лоджиейЧумаченко Артём
В гостиной дизайнеры применили традиционный прием: установили обычную мебельную стенку с проемом, предназначенным для монтажа телевизора. Всю мебель для проекта разработали по авторским чертежам.
Houzz тур: Маленькая квартира в Волгограде с двухэтажной лоджиейЧумаченко Артём
Кухня с верхними подвесными шкафами, сплошными фасадами и пластиковой столешницей, имитирующей текстуру дерева, навевает ассоциации со стилистикой 1960-х. За белыми фасадами спрятана вся бытовая техника, включая компактную посудомоечную машину, а стеклянный фартук дублирует по цвету основные акценты, использованные в жилой комнате.
Houzz тур: Маленькая квартира в Волгограде с двухэтажной лоджиейЧумаченко Артём
«Благодаря демонтажу балконной пары нам удалось увеличить объем гостиной зоны: этот прием помог впустить естественный свет в помещение», рассказали авторы проекта. Площадь остекления максимально расширили после основательного утепления лоджии: комфортная температура стоит здесь даже в холодные зимние месяцы.

Поскольку квартира расположена на последнем жилом этаже и над ней находится чердак, дизайнеры продлили боковые стены лоджии наверх. Благодаря этому нетривиальному шагу в квартире появилась двухуровневая лоджия.
Houzz тур: Маленькая квартира в Волгограде с двухэтажной лоджиейЧумаченко Артём
Изюминка проекта чилл-аут на втором «этаже». Он помог решить проблему приватного пространства в небольшой квартире: в любой момент владельцы могут уединиться здесь, чтобы почитать, побыть наедине с собой или просто расслабиться, наблюдая за жизнью города.
Планировка квартиры-студии

ПРЕДЛОЖИТЕ СВОЙ ПРОЕКТ ДЛЯ ПУБЛИКАЦИИ…
Загрузите фотосъемку в свой профиль на Houzz, отправьте ссылку и краткое описание проекта на editorial@flatica.ru. Мы обязательно свяжемся с вами, если примем решение о публикации.

ФОТО ПО ТЕМЕ…

Интерьерные съемки из спецпроекта «Houzz в гостях»

Комментарии 12

A P

7 л.

Плохо, если честно.
Все очень понравилось. Хотелось бы увидеть балкон с фасада дома, нет ли возмущенных соседей после присоединения?) А вообще идея с увеличением пространства вверх потрясающая!
никакого впечатления...

Оставьте комментарий

Читать похожие статьи