logo

Houzz тур: Квартира в синих тонах в центре Москвы

Изюминкой интерьера стали классические мотивы и окна — в ванной, душевой и даже в прихожей

Евгения Назарова
Евгения Назарова

22 февр. 2022

Обновлено 24 апр. 2022

Постоянный автор Houzz, интерьерный журналист

Владельцы квартиры на Плющихе хотели создать интерьер, в котором отразился бы дух старой Москвы. “Мы стремились к ощущению, будто семья живёт здесь уже давно, а интерьер стал частью семейной истории. В этом помогли приёмы классического стиля и винтажные предметы”, рассказывает дизайнер Наталья Истомина.
Houzz тур: Квартира в синих тонах в центре МосквыНаталья Истомина (Волкова)
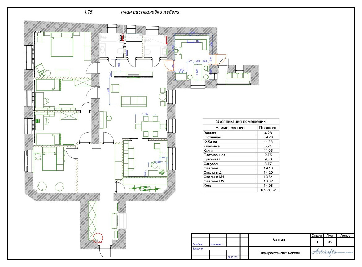
О проекте Место: Москва, Плющиха Размер: 162,8 кв. м Кто здесь живёт: семья с тремя детьми Дизайнер проекта: Наталья Истомина История: дом построен в 1886 году. Из исторических элементов в интерьере — кирпичная кладку, которую обнажили в гостиной Фото: Юрий Гришко ——————————————— В ВАШЕМ ГОРОДЕ… ► Через Houzz можно нанять дизайнера или архитектора в любом городе и стране — начать поиск специалиста ———————————————
Планировка квартиры Наталья Истомина стала не первым специалистом, которого заказчики пригласили к сотрудничеству. В квартире уже начался черновой ремонт, но у владельцев было много вопросов и к инженерии, и к эстетике проекта. Планировка была согласована, вносить изменения хозяева не хотели. Поэтому работа над проектом началась с решения инженерных задач и проработки визуальной части будущего интерьера.
Houzz тур: Квартира в синих тонах в центре МосквыНаталья Истомина (Волкова)
Плитка Cesi Ceramica; трюмо и зеркало — cтудия Zerkalaaa; подвесные светильники Ideal Lux; кушетка — магазин «Этажерка»; ваза на подоконнике Teak House ПРИХОЖАЯ И ХОЛЛ Интересная особенность исходной планировки — окно в прихожей, благодаря которому пространство заливает естественный свет. Геометрию окна подчёркивают вертикальные линии в интерьере — высокие зеркала и двери, светильники-подвесы. Плитка, имитирующая метлахскую, продолжает материал, использованный в подъезде и на лестничных клетках, таким образом интерьер связывается с экстерьером.
Houzz тур: Квартира в синих тонах в центре МосквыНаталья Истомина (Волкова)
Двери Belorawood; консоль ArteFacto; настенный светильник Visual Comfort Gallery Межкомнатные двери с белыми наличниками, кессоны на потолке и гравюры с видами старой Москвы добавляют интерьеру торжественности, а инженерная доска тёмного древесного оттенка — теплоты: этот материал использовали для оформления пола во всех жилых пространствах.
Houzz тур: Квартира в синих тонах в центре МосквыНаталья Истомина (Волкова)
ГОСТИНАЯ Главными цветами проекта стали синие и голубые оттенки: они появились в каждом помещении, но в разной роли. В гостиной, как и в прихожей, голубой использовали как основной цвет стен: покрасили, в том числе и кирпичную кладку на фасадной стене. На таком фоне хорошо смотрятся предметы искусства.
Houzz тур: Квартира в синих тонах в центре МосквыНаталья Истомина (Волкова)
Столярная конструкция, на которой разместили телевизор, отделила зону коридора, в которой расположены целых пять межкомнатных дверей.
Houzz тур: Квартира в синих тонах в центре МосквыНаталья Истомина (Волкова)
В гостиной: диван, кресло Andrew Martin; люстра Gramercy Home; журнальный столик La Redoute; картина художницы Анны Владимировой-Лавровой; текстильное оформление — Антон и Елена Любаревы
Houzz тур: Квартира в синих тонах в центре МосквыНаталья Истомина (Волкова)
КУХНЯ В каждом помещении к синему и голубому подбирали оттенки-компаньоны. Для кухни, которая хорошо просматривается из гостиной, заказали жёлтые фасады: цвет даёт и яркие эмоции, и ощущение света. Акцентную деталь — крупный короб вытяжки — изготовили из латуни специально для этого проекта.
Houzz тур: Квартира в синих тонах в центре МосквыНаталья Истомина (Волкова)
На кухне: мозаика на фартуке NovaBell; к ухонный гарнитур Skvami; декор на столешнице La Redoute; стулья — винтаж; кувшин на столе для завтраков работы Анны Панченко
Houzz тур: Квартира в синих тонах в центре МосквыНаталья Истомина (Волкова)
КАБИНЕТ В зоне окна спроектировали рабочее место на двоих — большой угловой стол, где двое взрослых не будут мешать друг другу. Керамическое кашпо для растения сделали на заказ: оказалось трудно найти вариант такого размера, которое сочеталось бы с оттенками интерьера. Мастер-керамист декорировал кашпо, ориентируясь на диванную подушку с обивкой в эстетике ар-деко.
Houzz тур: Квартира в синих тонах в центре МосквыНаталья Истомина (Волкова)
Диван Nextform; настольная лампа La Redoute; зеркало — студия Zerkalaaa; столы и стеллаж созданы на заказ по эскизам дизайнера; картина «Венеция» Александра Павлова Кроме кабинета, эта комната играет роль гостевой, поэтому диван заказали с раскладным механизмом. Не обошлось и без синих акцентов: диван обрамили стеллажом с открытыми полками насыщенного оттенка.
Houzz тур: Квартира в синих тонах в центре МосквыНаталья Истомина (Волкова)
Кресло — мастерская Антона и Елены Любаревых; журнальный столик La Redoute СПАЛЬНЯ Интерьер спальни сложился вокруг комода — он и задал основной тон интерьеру. Для стен подобрали нежный розовый оттенок, а бирюзовый цвет комода продолжили и растворили в текстиле.
Houzz тур: Квартира в синих тонах в центре МосквыНаталья Истомина (Волкова)
Прикроватные тумбы Dantone Home; свет Gramercy Home Стены декорировали молдингами, а чтобы впустить больше света, дополнили некоторые из них зеркалами. Зеркальные полотна напротив кровати — состаренные, они не дают прямого отражения, лишь лёгкую дымку.
Houzz тур: Квартира в синих тонах в центре МосквыНаталья Истомина (Волкова)
Обои York; стул — винтаж; кровать и перегородка изготовлены на заказ по эскизам дизайнера; картина «Верба» Ксении Ремарчук ДЕТСКАЯ Комната предназначена для мальчика. При выборе материалов Наталья Истомина предложила сделать ставку на орнаменты с чёткой структурой: собственный ритм есть и у обоев, и у декоративной перегородки.
Houzz тур: Квартира в синих тонах в центре МосквыНаталья Истомина (Волкова)
Плитка Cifre; тумба Caprigo; смесители Cezaris; бра Arte Lamp САНУЗЛЫ В отделке душевой сочетали прямоугольную плитку и покраску благородного серого оттенка, а границу между материалами декорировали молдингами.
Houzz тур: Квартира в синих тонах в центре МосквыНаталья Истомина (Волкова)
Плитка на полу Vives Ceramica; плитка на стенf[ Alchimia; бра Lussole; смесители Lemark; тумба Caprigo В светлой ванной комнате акценты задали за счёт тёмно-синей плитки и оригинальной душевой стойки в стиле ретро. ——————————————— ХОТИТЕ ЗАКАЗАТЬ ДИЗАЙНЕРУ СВОЙ ПРОЕКТ… ► Напишите сообщение Нате Волковой в один клик ———————————————

Комментарии 14

Захотелось больше никогда не посещать HOUZZ , нет надежды увидеть здесь приятную сердцу обстановку, милое обаяние , присущее женщине , уютную постель ...здесь всё не в масть, всё на выброс.
6 11

3 г.

планировка детской в левом нижнем углу очень неоднозначна, странное решение. Возле дивана в гостиной интересный ковер в форме квадратного бублика, расшифруйте идею пжлст. В ванной бра с текстильным плафоном достаточно близко к лейке душа, да и манипулировать шторой оно мешает. Присоединюсь к вопросу о двери из кухни в никуда)
Шикарно. Браво дизайнеру.

Оставьте комментарий

Читать похожие статьи