
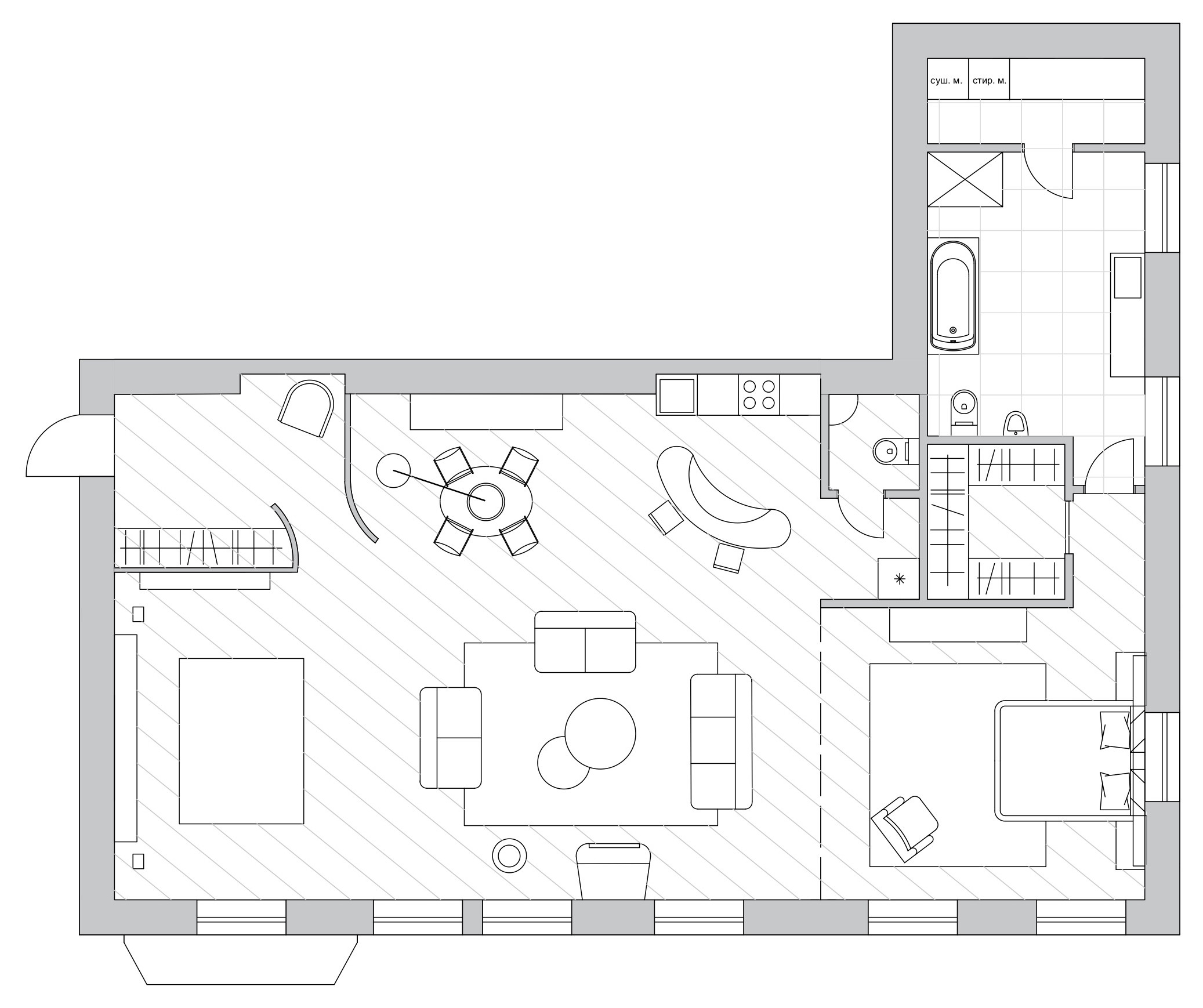
Houzz тур: 64 кв.м — квартира в цветах блога хозяйки
Houzz Россия
15
22 сент. 2020
Обновлено 9 нояб. 2020
Постоянный автор Houzz, интерьерный журналист
5 л.
5 л.

Houzz тур: 64 кв.м — квартира в цветах блога хозяйки
Houzz Россия
15

Houzz тур: Квартира с настроением юга Франции
Евгения Назарова
11

Houzz тур: Квартира как дорогой отель
Houzz Россия
9

Houzz тур: 49 кв.м — квартира, наполненная цветом
Houzz Россия
18

Houzz тур: Интерьер, напоминающий о лете и морских путешествиях
Houzz Россия
8

Houzz тур: Восточный минимализм в центре Москвы
Евгения Назарова
20

Houzz тур: Квартира по образу марокканской медины
Евгения Назарова
13

Houzz тур: Квартира с тотальной звукоизоляцией
Евгения Назарова
18

Houzz тур: Одна квартира из двух — интерьер в тёплых серых тонах
Евгения Назарова
10

Houzz тур: Квартира-убежище в оттенках океана
Евгения Назарова
23

Houzz тур: 26 кв.м — квартира для кинодраматурга
Houzz Россия
30

Houzz тур: Джунгли в Екатеринбурге — квартира 51 кв.м
Евгения Назарова
10

Houzz тур: Интерьер с концепцией Red go, где важен красный цвет
Houzz Россия
9

Houzz тур: 44 кв.м — экостудия для мамы дизайнера
Евгения Назарова
30

Houzz тур: Яркая квартира в Санкт-Петербурге
Евгения Назарова
19

Houzz тур: Экологичная квартира у ботанического сада
Евгения Назарова
11

Houzz тур: Интерьер для заказчиков, которые устали от классики
Евгения Назарова
16

Houzz тур: Ретро-сталинка на Октябрьском поле
Евгения Назарова
24
Ольга Арисеп
4 г.