logo

Houzz тур: Квартира, где хобби хозяйки — флористика

Кровати нет. Но есть огромная комната для работы с растениями

Наталия Тверитинова
Наталия Тверитинова

21 дек. 2017

Обновлено 27 дек. 2017

Постоянный автор Houzz, интерьерный и архитектурный журналист.

О проекте
Место: Москва, ул. Малая Филевская
Год: 2017
Размер: 106 кв.м
Кто здесь живет: заказчики, увлекающиеся флористикой
Автор проекта: дизайнер Татьяна Аленина
Фото: Михаил Степанов
Houzz тур: Квартира, где хобби хозяйки —  флористикаТатьяна Аленина
Хозяйке нужна была не просто квартира, а фон для растений, листьев, веток, нежных бутонов — цветочных композиций, составлением которых она постоянно занимается. Чтобы растения любого тона смотрелись в интерьере естественно, дизайнер сделала ставку на серо-бежевую гамму: к молочному, разбавленному черному, землистому и цвету бетона добавила каплю бирюзы. Деревья, заглядывающие в большие окна, будто подыгрывают истории.

«Я всегда очень внимательно подбираю материалы, много раз складываю их вместе и просматриваю с заказчиком, с каждым новым элементом собираю все заново — чтобы не появилось ничего чужеродного»,рассказывает Татьяна.
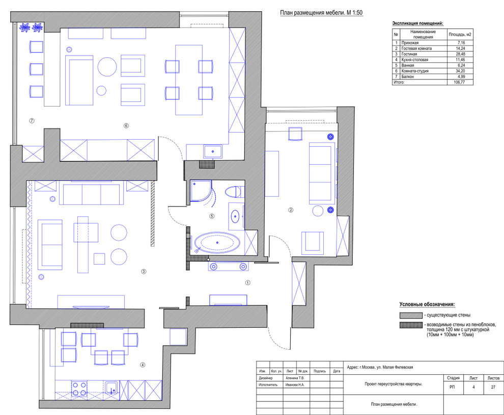
План квартиры

Эта квартира давно принадлежит заказчикам, и расставаться с ней они не хотели. Дизайнер создала новую планировку, чтобы выделить огромную студию-комнату для хобби хозяйки. Задача осложнялась тем, что для занятий флористикой требуется вода, потому расположение и размер комнат диктовали «мокрые» зоны.
Houzz тур: Квартира, где хобби хозяйки —  флористикаТатьяна Аленина
На фото: шкафы и перегородка выполнены на заказ по эскизам дизайнера в столярной компании «Квинтон»

Чтобы отгородить гостиную от санузла и прохода в студию, не стали выстраивать сплошную стену. Татьяна придумала легкую конструкцию стену из развернутых под углом вертикальных планок: они пропускают свет в коридор и скрывают происходящее в гостиной.
Houzz тур: Квартира, где хобби хозяйки —  флористикаТатьяна Аленина
На фото: краска для стен Argile

Во всей квартире, кроме студии, стены покрашены французской краской. Палитру этих красок, воссоздающих оттенки природы — коры, листьев, мха, почвы, песка, камней — для производителя разработал известный декоратор Пьер Бонфий. Для пола выбрали брашированную доску из массива дуба.
Houzz тур: Квартира, где хобби хозяйки —  флористикаТатьяна Аленина
Над диваном в гостиной — работа художницы Евгении Буравлевой, собравшая основные оттенки интерьера.

Композиция из журнальных столиков — пары бетонных и одного, сделанного из ствола обожженной пихты (черного, сильно брашированного, потрескавшегося, со впадинами и выбоинами) — «привносит в интерьер брутальную красоту», — отмечает дизайнер.

Обратите внимание на ковер — он мягко добавляет в колористику гостиной бирюзовые оттенки, заявленные картиной и подушками дивана.
Houzz тур: Квартира, где хобби хозяйки —  флористикаТатьяна Аленина
На фото: диван в центре Poltrona Frau, журнальный стол Jenga, Baxter, диван у окна (предыдущее фото) Minotti , все салон Krassky; потолочный светильник Mimosa, Areti; ковер из шерсти и шелка, диз. Ян Кат, Koverburo
Houzz тур: Квартира, где хобби хозяйки —  флористикаТатьяна Аленина
Комната для занятий флористикой — самое большое помещение в квартире. Татьяна Аленина продумала все возможные сценарии, связанные с увлечением хозяйки.

Сидя на удобной кушетке или в креслах можно обсуждать флористические идеи, конструкции, детали. Или читать книги, взяв их со стоящих рядом стеллажей.
Houzz тур: Квартира, где хобби хозяйки —  флористикаТатьяна Аленина
Лоджию присоединили к комнате, поменяв окна на раздвижные. При открытых окнах в дом заглядывают ветки растущей рядом сирени, и сразу возникает ощущение террасы в загородном доме.
Houzz тур: Квартира, где хобби хозяйки —  флористикаТатьяна Аленина
Еще одно место отдыха — барная стойка из спила дуба.За ней удобно пить кофе, листать книжки. Или развернуться и смотреть на деревья за окном. Глубокие подоконники сделаны из кварца с неровной фактурой: он выдерживает натиск воды, агрегатов, удобрений для ухода за растениями. Важно, что материалы других поверхностей в квартире тоже рассчитаны на активное использование.

Если со временем у хозяев возникнет желание обновить интерьер, достаточно будет поменять абажур, подушки и обивку кресел. «Эти акценты мимолетные, не давящие. Они позволяют двигаться в любом направлении», — объясняет дизайнер.
Houzz тур: Квартира, где хобби хозяйки —  флористикаТатьяна Аленина
На фото: барные стулья Potocco; настольная лампа Small Meteor Lamp, Porta Romana
Houzz тур: Квартира, где хобби хозяйки —  флористикаТатьяна Аленина
Стены студии покрыты серой декоративной штукатуркой, напоминающей бетон. Это антивандальное семислойное покрытие разработала и выполнила художница Алена Вилюкова.
Houzz тур: Квартира, где хобби хозяйки —  флористикаТатьяна Аленина
На фото: кушетка Minotti; кресла Fritz Hansen; люстра Roll&Hill; столики со столешницей из натурального камня Black Tie, все — салон Krassky; стеллажи сделаны на заказ по эскизам дизайнера
Houzz тур: Квартира, где хобби хозяйки —  флористикаТатьяна Аленина
За большим рабочим столом из толстой дубовой доски удобно заниматься растениями, создавать композиции, проводить мастер-классы. Вокруг стола достаточно места для стульев. Есть раковина для чистки цветов. Во вместительных шкафах можно хранить все необходимые для флористики материалы и предметы.
Houzz тур: Квартира, где хобби хозяйки —  флористикаТатьяна Аленина
На сером нейтральном фоне и на фоне дубовой столешницы гармонично смотрятся необычные цветы и ветки в красивых вазах. Сюда идеально подошел длинный светильник, вытянувшийся над поверхностью стола.

«Флористика — не только про букеты, это краткосрочное искусство, в основе которого лежит мысль о скоротечности и хрупкости бытия. Любая композиция живет недолго, и это может заставить эмоционально сильно вибрировать чувства», — считает дизайнер.
Houzz тур: Квартира, где хобби хозяйки —  флористикаТатьяна Аленина
На фото: потолочный светильник Roll&Hill; вазы салон Predmety
Houzz тур: Квартира, где хобби хозяйки —  флористикаТатьяна Аленина
На фото: аксессуары Crate and Barrel; сантехника Victoria & Albert;

Атмосфера ванной напоминает СПА: в нише на полках лежат мягкие махровые полотенца и аксессуары.
Houzz тур: Квартира, где хобби хозяйки —  флористикаТатьяна Аленина
На фото: кухня Leicht Moscow, Buhanov Group
Немецкую кухню выбрали с лаковыми и серыми фасадами под бетон. Как и в студии, у окна расположилась барная стойка из спила дуба. «Мы придумали эту стойку только для того, чтобы пить травяной чай и мечтать, глядя в окно», — делится Татьяна.

СМОТРИТЕ ТАКЖЕ…
Другие проекты того же автора — в портфолио Татьяны Алениной

У ВАС ЕСТЬ ДЛЯ НАС ПРОЕКТ…

Загрузите съёмку в свой профиль на Houzz, отправьте ссылку с кратким описанием на editorial@flatica.ru

Для справки: Какие объекты мы публикуем

Комментарии 29

Интерьер очень понравился! Легко, качественно, нейтрально! Когда читала заголовок, как и многие другие комментировавшие, ожидала увидеть массу цветов вокруг, но... порадовалась тому, что их практически нет :))) Про то, что не понравилось: 1. Как и slylena, удивлена неудобной барной стойке в комнате для флористики. Совершенно иная, красивая и удачная барная стойка в кухне. 2. Ковёр в гостиной выглядит так, как будто он с пятнами и очень-очень давно не пылесосился. Может быть, просто фотографии так передают, не знаю наверняка. В остальном - выше всяких похвал! Дизайнер - молодец!
интересно эко стиль
Приятный нейтральный интерьер, но мрачновато (хоть я и люблю темные тона, но здесь их сочетание выглядит несколько уныло, а может, качество съёмки такое). Картина потрясающая.

Оставьте комментарий

Читать похожие статьи