
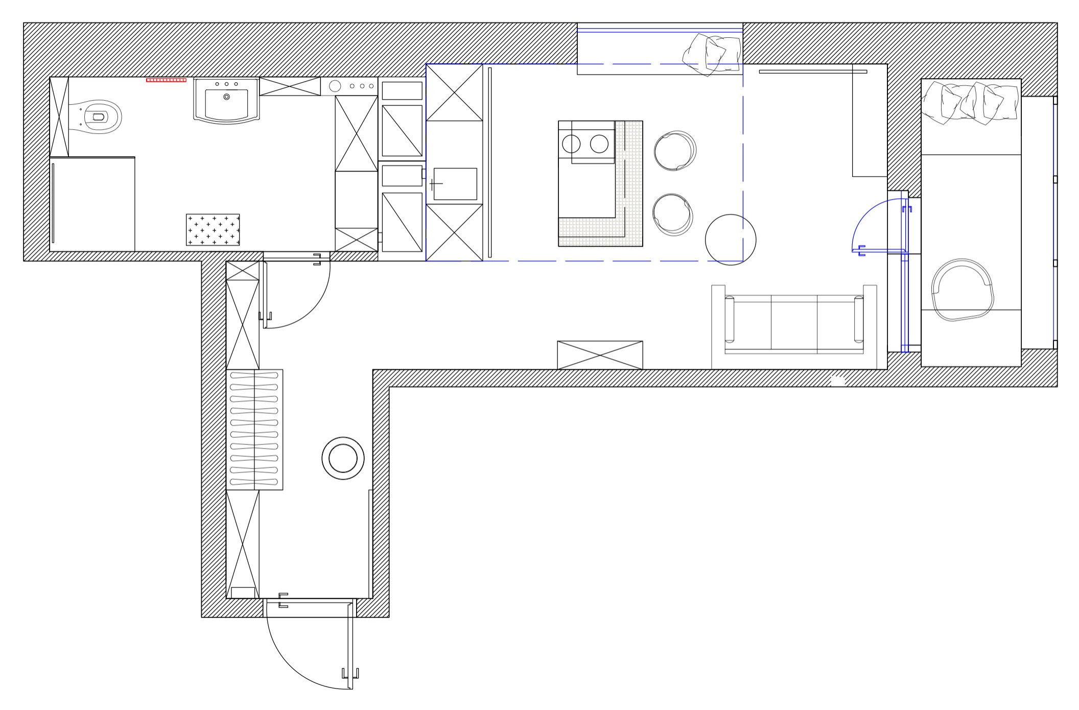
До и после: 35 кв.м — квартира для «мамы с характером»
Houzz Россия
67

22 февр. 2022
Обновлено 25 июля 2022
3 г.
3 г.

До и после: 35 кв.м — квартира для «мамы с характером»
Houzz Россия
67

Houzz тур: П-44Т — квартира 38 кв.м. для отдыха и уединения
Houzz Россия
15

Houzz тур: 35 кв.м — квартира-трансформер с потайной гардеробной
Houzz Россия
28

Houzz тур: 26 кв.м — квартира для кинодраматурга
Houzz Россия
30

Houzz тур: 30 кв.м — квартира с необычным оттенком штукатурки
Houzz Россия
13

До и после: Квартира для молодой пары — площадью всего 28 кв. м
Евгения Назарова
101

Houzz тур: 35 кв.м — квартира в Казани с винтажным интерьером
Houzz Россия
27

Houzz тур: 36 кв.м — Марокко и Бали в московской «однушке»
Евгения Назарова
18

Houzz тур: 30 кв.м — студия в Петербурге, вдохновленная Парижем
Houzz Россия
34

Houzz тур: Маленькая квартира цвета бумаги
Houzz Россия
28

Houzz тур: 35 кв. м с французскими и португальскими мотивами
Евгения Назарова
13

Houzz тур: Однушка с графичным интерьером
Евгения Назарова
25

Houzz тур: 35 кв.м с панорамным окном из спальни в гостиную
Евгения Назарова
23

До и после: Московская квартира, где балкон продали соседу
Houzz Россия
45

Houzz тур: 33 кв.м — студия из комнаты в коммуналке
Houzz Россия
65

Houzz тур: Мини-лофт, вдохновленный парком Хай-Лайн
Houzz Россия
34

Houzz тур: Крошечная студия с кухней в коридоре
Наталья Мурадова
32

Houzz тур: Квартира в доме-коммуне на Гоголевском бульваре
Евгения Назарова
49
Яна Янова
2 г.