logo

Houzz тур: Апартаменты на Арбате для деловой женщины

Перегородка-кокон, шпон эвкалипта и очень яркие акценты в респектабельном интерьере

Евгения Назарова
Евгения Назарова

20 июля 2020

Обновлено 28 окт. 2020

Постоянный автор Houzz, интерьерный журналист

Houzz тур: Апартаменты на Арбате для деловой женщиныОльга Суркова
Цветовую гамму проекта подсказал ковёр, с которым хозяйка уже много лет переезжает с места на место. Архитекторы Ольга Суркова и Екатерина Федотова придумали для пёстрого арт-объекта насыщенный серый фон, а затем уговорили хозяйку на необычную перегородку-кокон, которая отделила спальню от гостиной.
Houzz тур: Апартаменты на Арбате для деловой женщиныОльга Суркова
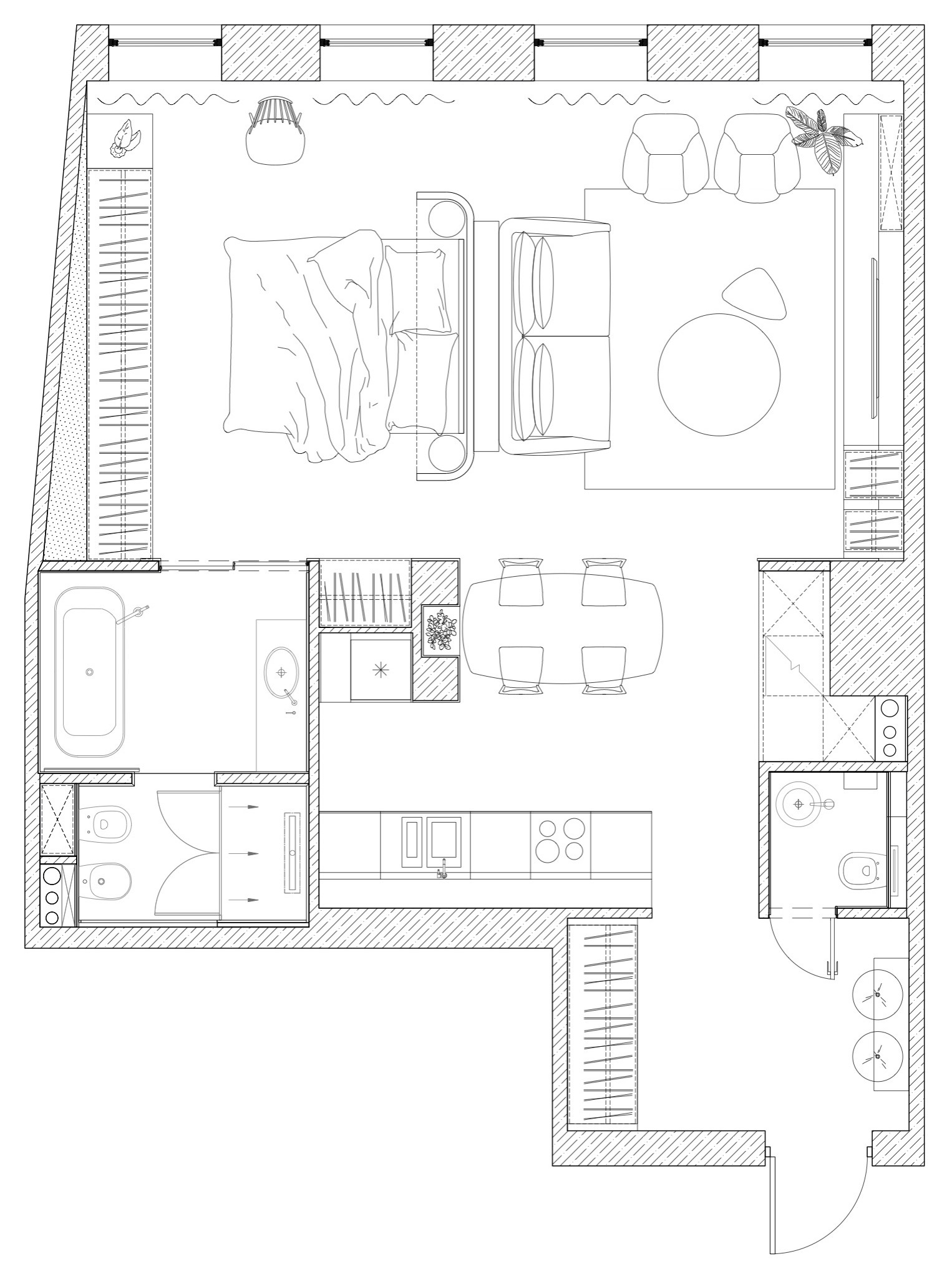
О проекте Место: Москва, Староконюшенный переулок Размер: 74 кв. м; высота потолков 3,2 м Кто здесь живёт: деловая женщина Архитекторы проекта: Ольга Суркова и Екатерина Федотова, Moon Studio Фото: Сергей Красюк ; стиль проекта Moon-stores ————————————— В ВАШЕМ ГОРОДЕ… ► Через Houzz можно нанять дизайнера или архитектора в любом городе и стране. Начать поиск специалиста —————————————
Планировка квартиры Апартаменты находятся в историческом здании, где несколько лет назад провели полную реконструкцию. До нынешней владелицы здесь успели пожить другие люди, они сделали ремонт в классическом стиле. Однако новой хозяйке в таком окружении было некомфортно. Ольгу Суркову и Екатерину Федотову попросили создать роскошный современный интерьер — в духе апартаментов в Лондоне, где любит бывать заказчица. Проект начали с перепланировки. Квартиру решили не резать на небольшие комнаты, а сохранить ощущение единого пространства. Чтобы визуально разделить гостиную и спальню, дизайнеры придумали перегородку-кокон. Благодаря этому решению кровать не видна от входа, при этом в квартире нет ощущения жесткого зонирования и монолитных перегородок.
Houzz тур: Апартаменты на Арбате для деловой женщиныОльга Суркова
ПРИХОЖАЯ Чтобы реализовать запрос на просторную прихожую, одну из стен целиком декорировали зеркалом. Ближе к концу ремонта появилась идея повторить зеркальные вставки на потолке, чтобы увеличить и высоту. Консоль навесили поверх зеркальной стены, чтобы усилить ощущение лёгкого, парящего интерьера. Эффекта обволакивающего серого пространства добились за счёт отделки — натурального камня на полу и шпона эвкалипта в облицовке фасадов шкафа.
Houzz тур: Апартаменты на Арбате для деловой женщиныОльга Суркова
КУХНЯ-ГОСТИНАЯ Хозяйка никогда не готовит дома и даже хотела отказаться от кухни. Авторы проекта с трудом, но уговорили её на « невидимую » модель гарнитура с глухими фасадами, которые скрывают всю техническую и утилитарную начинку. Чтобы ещё надежнее замаскировать кухню, стены выкрасили в цвет мебели. Зеркальный шкаф прячет вход в гостевой санузел и кладовую. Нишу в зоне обеденного стола также выделили состаренным зеркалом, но в золотистой тонировке.
Houzz тур: Апартаменты на Арбате для деловой женщиныОльга Суркова
Кухня Valcucine; стол и стулья Baxter; зеркальные фасады изготовлены в мастерской Papa Carlo; паркет « АртМебельОтель » Заказчица любит известные бренды и не хотела экономить на мебели. Перед архитекторами не ставили стилистических и финансовых ограничений: обстановку собирали, в основном, у итальянских марок.
Houzz тур: Апартаменты на Арбате для деловой женщиныОльга Суркова
Конструкцию, зонирующую спальню, сознательно не доводили до потолка, чтобы сохранить воздух. Латунные крепления перегородки расположили хаотично; они имеют разный диаметр и перекликаются с дизайном светильника в зоне столовой, хозяйка привезла его из Лондона.
Houzz тур: Апартаменты на Арбате для деловой женщиныОльга Суркова
Цвет стен подбирали под яркий ковёр — единственный предмет из прошлого, который заказчица попросила вписать в новый интерьер. « На ярком фоне ковер бы “потерялся”, поэтому мы выбрали серую отделку и добавили цвет через мебель и акценты. Картину специально для нашего проекта написала художниц а Лейла Кравцова » , — рассказывают архитекторы.
Houzz тур: Апартаменты на Арбате для деловой женщиныОльга Суркова
В гостиной: мебель из салона KRASSKY . Д иван Black Tie; крес­ла Minotti; пуф и сто­­лики Baxter; светильни­ки Giopato & Coombes; система хранения сделана на заказ в мастерской Mrs Ruby; ковёр Jan Kath; аксессуары Moon-stores и L’appartement Стену напротив дивана облицевали шпоном эвкалипта, тонированным в серый цвет, — это один из главных материалов всего проекта.
Houzz тур: Апартаменты на Арбате для деловой женщиныОльга Суркова
СПАЛЬНЯ Дизайн перегородки стал главным вызовом проекта. По согласованию с заказчицей решили обойтись без единого прямого или острого угла — такие детали геометрии разрушили бы ощущение обнимающей перегородки. Шкаф во всю стену дополнили створками конфигурации книжка. Они позволяют одним движением целиком открыть шкаф, чтобы хозяйка видела весь гардероб.
Houzz тур: Апартаменты на Арбате для деловой женщиныОльга Суркова
Шторы из ткани Armani Casa; кровать и комод Poltrona Frau; створки шкафа Mrs Ruby; перегородка между спальней и ванной и начинка гардероба от Rimadesio; постельное белье Atelier Tati
Houzz тур: Апартаменты на Арбате для деловой женщиныОльга Суркова
Сатехника из салона «Бельведер»; зеркальная перегородка UNION; деревян­­ные панели и тумба под раковину Mrs Ruby; раковина Glass Design; люстра CTO Lighting ГЛАВНАЯ ВАННАЯ Санузел при спальне поделили на две зоны. Во входной, за прозрачной перегородкой, расположили отдельно стоящую ванну и раковину. В более удаленной, за раздвижной зеркальной дверью — унитаз и душевую. Одну из стен выделили голубым агатом, его оттенок сочетается с аксессуарами в спальне.
Мозаика De Castelli ГОСТЕВОЙ САНУЗЕЛ Пол облицевали натуральным камнем, таким же, как и в прихожей. Для оформления стен использовали шпон эвкалипта в сочетании с металлической мозаикой. ——————————————– ОБ АВТОРАХ ПРОЕКТА… Перейдите на страницу Moon Studio , чтобы изучить другие работы из портфолио архитекторов. У ВАС ЕСТЬ ДЛЯ НАС ПРОЕКТ… Загрузите съемку в свой профиль на Houzz, отправьте ссылку с кратким описанием на editorial@flatica.ru Для справки: Какие объекты мы публикуем

Комментарии 29

Проект изумительный! Смотрю его уже с самого начала публикации несколько раз.
Глядя на сей интерьер вспоминается песня из 90-х про разноцветные польские колготки : дольчики, ах эти дольчики чертовски хороши. Особенно с черной мини, типа деловой юбкой секретарши.
Интересно кто хозяйка и чем она занимается)

Оставьте комментарий

Читать похожие статьи