logo

Houzz Испания: 40 кв.м для влюбленных — у самого синего моря

Старинная квартира с аутентичными элементами в рыбацком квартале Барселоны

Houzz Россия
Houzz Россия

11 апр. 2017

Обновлено 8 мая 2017

Эта история — о любви с первого взгляда: сначала двое парижан влюбились друг в друга, а затем в Барселону, где провели первый совместный отпуск и решили купить совместное жилье. «Раньше квартира принадлежала пожилой семейной паре, рассказывает Гайя Тротта, архитектор студии Egue y Seta. — Ее площадь составляет всего 40 кв.м, и до ремонта она была поделена на крошечные комнатки». После того, как демонтировали стены, избавились от прихожей и коридоров, в квартире удалось организовать три функциональные зоны независимые, и в то же время связанные друг с другом благодаря материалам и мебели.
О проекте Место: Барселона, Испания Размер: 40 кв.м Кто здесь живет: Молодая пара Авторы проекта: Студия Egue y Seta Фото: Vicugo Foto Заказчики сразу оценили преимущества города на побережье, поэтому сосредоточили поиски на квартале Барселонета. « Они нашли идеальное место, правда, квартира была в очень плохом состоянии, — рассказывает архитектор Гайя Тротта. — Мы разобрали потолки и в некоторых местах обнаружили оригинальную отделку с глиняными балками, которые решили сохранить » . Удалось восстановить и стены из кирпича, которые определили характер будущего интерьера.
Кухонный гарнитур: Kvik; стулья: Kartell; люстра: Normann Copenhagen Оригинальная планировка квартиры включала прихожую, три комнатки, кухню и ванную. Пространство пришлось целиком изменить, сделать более современным. Центром новой планировки стала гостиная, совмещенная с кухней. Именно сюда владельцы попадают прямиком от входной двери. « Заказчиков не смущало, что первым делом они будут видеть кухню, они любят готовить, — поясняет Гайя Тротта. — Нам хотелось, чтобы кухня производила теплое, уютное впечатление, и владельцы предложили использовать дерево ».
Благодаря двум французским балконам гостиную заливает солнечный свет. Чтобы к хозяевам могли приезжать гости, здесь поставили диван-кровать Brooke от Maison de Monde. У того же производителя заказали журнальные столики разного размера.
Приватное пространство отделили от гостиной с помощью системы хранения с декоративной перегородкой из стекла и металла (на фото — н а заднем плане). В правой части перегородки находится дверь в спальню. Единство материалов — прием, который помог связать дизайн разных помещений в единую концепцию. Пол во всех комнатах выложили дубовым паркетом; на кухне и в ванной использовали одну и ту же цементную плитку от Neocerámica. «З аказчики хотели сохранить в квартире дух старой Барселоны, — поясняет Гайя Тротта, — а цементная плитка повсеместно встречается в домах района Эшампле и не теряет актуальности » .
Со стороны спальни кухонную систему хранения дублирует шкаф для одежды. Чтобы выиграть место, его смонтировали со сдвижными дверцами.
Благодаря остекленной перегородке спальня и салон связаны между собой , и свет беспрепятственно заполняет оба помещения. А если владельцы захотят создать приватную обстановку, то могут опустить и закрыть деревянные жалюзи.
Кухонная столешница, отделенная стеклянной перегородкой, будто продолжается в спальне — в форме изголовья кровати. В изголовье встроены и прикроватные тумбочки.
Кровать и комод: IKEA; люстра: VITA copenhagen
Оформляя ванную, авторы проекты руководствовались теми же принципами единства материалов и прозрачности. Приватность обеспечивают лаконичные жалюзи.
Светильники-подвесы: Anglepoise ; сантехника: Hansgrohe и Roca Meridian Ванная комната теперь находится на месте бывшей кухни. Для облицовки стен здесь использовали плитку размером 20х5 см; пол оформили цементной плиткой — такой же, как в кухне-гостиной.
Цвет играет в этом проекте одну из ключевых ролей — создает особую средиземноморскую атмосферу, характерную для домов на побережье. « Сначала владельцы ориентировались на более строгую стилистику — монохромный минимализм. Мы же предложили ввести цвет. А вдруг заказчикам это понравится? Результат превзошел ожидания: они остались в полном восторге » , — рассказывает Гайя Тротта.
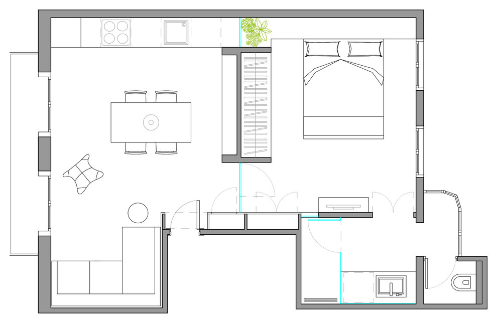
На плане: квартира площадью 40 кв.м поделена на три зоны: гостиную, спальню и ванную РАССКАЖИТЕ НАМ… Понравилась ли вам эта квартира у моря? Как вы относитесь к разделению пространства стеклянными перегородками? Поделитесь своим мнением в разделе комментариев.

Комментарии 37

У меня вопрос: а куда же будут ходить в туалет приезжающие гости? И где принимать душ? В прозрачной ванной хозяев? Боюсь, не все так раскрепощены...
fedorka63

7 л.

профессиональный дизайн
хорошо что много окон

Оставьте комментарий

Читать похожие статьи