logo

До и после: «Сталинка» в Новосибирске с «бабушкиным» ремонтом

За три месяца с бюджетом чуть больше миллиона рублей

Евгения Назарова
Евгения Назарова

2 нояб. 2018

Обновлено 1 янв. 2019

Постоянный автор Houzz, интерьерный журналист

До и после: «Сталинка» в Новосибирске с «бабушкиным» ремонтомДЕКАБРЬ | Дизайн интерьера
О проекте
Место: Новосибирск, ул. Богдана Хмельницкого
Размер: 55 кв.м
Кто здесь живёт: дизайнер Елена Антоненко с мужем Дмитрием и дочерью Евгенией, 6 лет
Автор проекта: хозяйка квартиры

Елена давно присматривалась к этому району: улица Богдана Хмельницкого нравилась дизайнеру зелеными дворами и сталинской архитектурой. Кроме того, рядом есть хорошая школа и ледовый дворец (это уже в интересах мужа, болельщика хоккейного клуба «Сибирь»). А когда на нужной улице нашлась двухкомнатная квартира в старом доме с кирпичной кладкой, стало понятно: надо брать.
До и после: «Сталинка» в Новосибирске с «бабушкиным» ремонтомДЕКАБРЬ | Дизайн интерьера

До

Квартира находится в «сталинке» 1956 года постройки. Если с тех пор её и ремонтировали, то очень давно, так что новых владельцев встретил «бабушкин» ремонт с линолеумом на деревянном полу, побелкой и ветхими трубами. В ходе ремонта из квартиры вынесли всё: демонтировали покрытия потолков, пола и стен полностью, поменяли трубы и остекление. «Пока возводили перегородки в санузле, нас очень вовремя затопил сосед сверху. Так что мы поменяли трубы и у себя, и у него», добавляет Елена.
До и после: «Сталинка» в Новосибирске с «бабушкиным» ремонтомДЕКАБРЬ | Дизайн интерьера

До

Квартира до перепланировки
До и после: «Сталинка» в Новосибирске с «бабушкиным» ремонтомДЕКАБРЬ | Дизайн интерьера
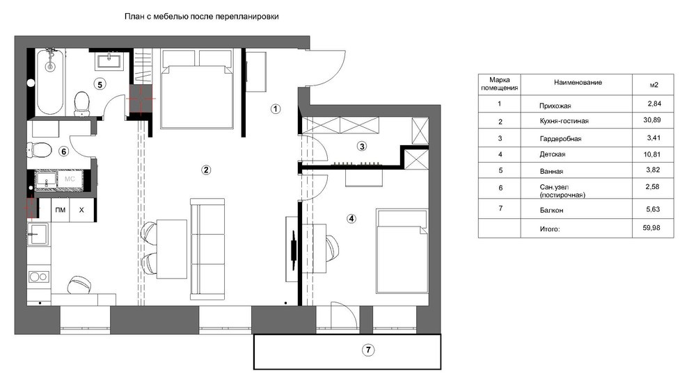
Квартира после перепланировки

Все перегородки в квартире, кроме колонны и двух балок, были ненесущими: это давало возможность сделать перепланировку. Семиметровую кухню присоединили к гостиной; неподалеку в нише организовали родительскую спальню. Так удалось избавиться от длинного коридора.
До и после: «Сталинка» в Новосибирске с «бабушкиным» ремонтомДЕКАБРЬ | Дизайн интерьера
ГОСТИНАЯ
Ремонт получилось сделать с небольшим бюджетом и за три месяца: супруги спешили, ведь в это время им приходилось снимать другое жильё. Уложились в 1,2 млн рублей с учетом сантехники и укомплектованной техникой кухни. Треть бюджета ушла на демонтаж, гипсокартон и ремонт пола: всё снимали до лаг. Некоторые лаги меняли, потом прокладывали шумоизоляцию и сверху листы фанеры. Стены, граничащие с соседями, проложили шумоизоляцией и зашили гипсокартоном.

Проблема и решение: В доме деревянные перекрытия, и стены немного гуляют. Из-за этого пришлось монтировать натяжные потолки. Единственное исключение кухня, там оставили родной потолок и просто его покрасили.
До и после: «Сталинка» в Новосибирске с «бабушкиным» ремонтомДЕКАБРЬ | Дизайн интерьера

До

На фото: фрагмент гостиной до ремонта

До ремонта в гостиной был уложен старый линолеум. Для нового интерьера Елена выбрала плитку ПВХ — она похожа на паркет, но может использоваться и в мокрых зонах. Плитку уложили во всей квартире, чтобы не дробить небольшое помещение стыками и порожками.
До и после: «Сталинка» в Новосибирске с «бабушкиным» ремонтомДЕКАБРЬ | Дизайн интерьера
«В предыдущей квартире у нас был темный пол цвета венге, его приходилось постоянно мыть. Для нового интерьера выбрали материал под тёплое дерево», рассказывает Елена.

Прихожая стала частью гостиной за счёт единых материалов и цвета. Акцентный тёмно-синий выбрал Дмитрий: эта краска хорошо сочетается с оттенком старого кирпича. Синим выделили не только прихожую, но и целую стену в гостиной, включая двери, чтобы сделать полотна менее заметными.
До и после: «Сталинка» в Новосибирске с «бабушкиным» ремонтомДЕКАБРЬ | Дизайн интерьера
Люстра Arte Lamp Teatro

На чём сэкономили: В проекте использовали сосновые двери для бань, стоимость комплекта (полотна, коробки и наличников) четыре тысячи рублей. Двери покрыли грунтовкой и покрасили. Правда, первые несколько недель приходилось подкрашивать зазоры, так как натуральная древесина живет своей жизнью. Бетонную балку на кухне также почистили и покрыли лаком.
До и после: «Сталинка» в Новосибирске с «бабушкиным» ремонтомДЕКАБРЬ | Дизайн интерьера

До

На фото: демонтаж старых покрытий обнажил кирпичную кладку

Основная проблема, с которой пришлось столкнуться при ремонте обработка кирпичной кладки. На кирпичи был приклеен советский гипсокартон; остатки клея снимались вместе с кусками кирпичей, раствор между швов вываливался и сыпался. Бригада, которая начинала делать ремонт, отказалась обрабатывать кирпич: рабочие сослались на недостаток опыта. Тогда Елена нашла специалиста, который удалил старый раствор, расчистил и отшлифовал кирпичи, а затем заново замазал швы буквально пальцами. Сверху кирпичи покрыли матовым лаком для камня.
До и после: «Сталинка» в Новосибирске с «бабушкиным» ремонтомДЕКАБРЬ | Дизайн интерьера
СПАЛЬНЯ
Многие предметы мебели перевезли из прошлой квартиры. Например, обеденный стол и диван (его лишь переобили по случаю переезда). Есть в интерьере и винтажные предметы: бабушкины стулья, которые Елена перекрасила сама, и комод в прихожей, в прошлом покрытый рыжим лаком.

Вместо кровати на пол уложили обычный ортопедический матрас. Фото над кроватью пейзаж из Мьянмы, автор Александр Карелин из Санкт-Петербурга.
До и после: «Сталинка» в Новосибирске с «бабушкиным» ремонтомДЕКАБРЬ | Дизайн интерьера
По словам Елены, ей хотелось соединить элементы индустриального стиля с ретровещами из 1950-х. Поэтому к мебели добавили винтаж: бабушкину швейную машинку, крынку, зеркало.
До и после: «Сталинка» в Новосибирске с «бабушкиным» ремонтомДЕКАБРЬ | Дизайн интерьера
КУХНЯ
Дмитрий занимается производством мебели и торгового оборудования: он сам сделал каркас кухни, а фасады заказали у знакомых. Поэтому кухня получилась очень бюджетной.

На краске для кухни решили не экономить, причём использовали её и на фартуке. «Брызги с плиты без проблем удаляются влажной тряпкой: можно обходиться без стекла и плитки, главное, купить качественную краску», — советует Елена.
До и после: «Сталинка» в Новосибирске с «бабушкиным» ремонтомДЕКАБРЬ | Дизайн интерьера

До

На фото: вид кухни до ремонта
До и после: «Сталинка» в Новосибирске с «бабушкиным» ремонтомДЕКАБРЬ | Дизайн интерьера
Подоконники и столешница сделаны из термически обезвоженной березы, покрашены и покрыты матовым лаком. Дерево, обработанное таким способом, не подвержено перепадам температур и влажности.
До и после: «Сталинка» в Новосибирске с «бабушкиным» ремонтомДЕКАБРЬ | Дизайн интерьера

До

На фото: фрагмент детской с выходом на балкон до ремонта
До и после: «Сталинка» в Новосибирске с «бабушкиным» ремонтомДЕКАБРЬ | Дизайн интерьера
Краска Tikkurila; обои BorasTapeter; мебель ИКЕА

ДЕТСКАЯ
Детскую оформили в серых тонах. Потолочный плинтус выкрасили в цвет стен, чтобы подчеркнуть высоту помещения.
До и после: «Сталинка» в Новосибирске с «бабушкиным» ремонтомДЕКАБРЬ | Дизайн интерьера
Керамогранит в ванной Italon; в санузле фартук Mainzu Livorno

САНУЗЛЫ
Раздельные ванная и туалет изменили форму и конфигурацию за счёт присоединения кладовой. Теперь в квартире два санузла: один с унитазом, умывальником, стиральной машиной и настенной сушилкой; второй с унитазом, умывальником и ванной.

Для столешницы в санузле использовали тот же термолес, что и на кухне, а главным акцентом стала плитка со зверями.
На фото: санузел до ремонта

ОБ АВТОРЕ ИНТЕРЬЕРА…
Перейдите на личную страницу Елены Антоненко, чтобы изучить другие работы из портфолио дизайнера или заказать ей собственный проект.
___________________________

В ВАШЕМ ГОРОДЕ…
Найдите дизайнера на Houzz в вашем городе — закажите собственный проект

У ВАС ЕСТЬ ДЛЯ НАС ПРОЕКТ…
Загрузите съёмку в свой профиль на Houzz, отправьте ссылку с кратким описанием на editorial@flatica.ru

Для справки: Какие объекты мы публикуем

Комментарии 132

Ala S Ala

5 л.

Уже два года прошло, интересно, как живется в этой квартире. Было ли еще что-то сделано. Скорее всего все минусы уже вылезли и были исправлены. И неужели мокрая одежда и обувь все-таки вешается в гардеробную? Мне понравилась кухня и цвет стен в прихожей. А вот "евроремонтные" белые рамы окна явно диссонируют с кирпичной кладкой.Удивило наличие двух санузлов на трех человек в такой небольшой квартире.Но главное, чтобы хозяевам это все нравилось.
Alya

5 л.

Мне понравилась кухня. Не нарочитая, "домашняя" и уютная, плюс сделанная своими руками. Не люблю кирпичи и не понимаю такие усилия по их сохранению во чтобы то ни стало, но смотрится здесь хорошо (с синим цветом в прихожей). Для особо одаренных комментаторов автору стоит, наверное, пояснить - видно же , что матрас временное решение ! У многих свежепереехавших, особенно после ипотеки и кап ремонтов , именно такая "кровать" на время:) и приватность нужна не всем.
Alya

5 л.

комменты здесь трэшток! Экологичные материалы в дом к себе - это очень, конечно, "ответственное" отношение к исчерпаемым природным ресурсам и к природе вообще. Противники ламинатов и натяжных потолков ничем не отличаются от противников пуховиков и любителей меховых изделий. А что , это тоже "экологично":)

Оставьте комментарий

Читать похожие статьи