
Дизайнеры интерьера
5
·
10 отзывов
Ремонт в сталинке: до и после
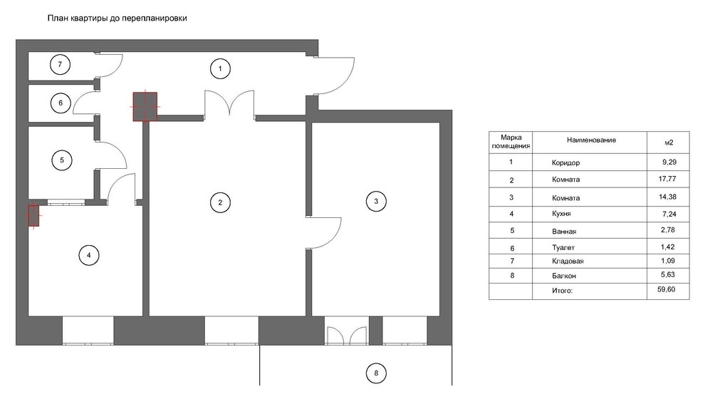
Двухкомнатная квартира в доме сталинской постройки 1956 года по ул. Богдана Хмельницкого в г. Новосибирске. Требовалась полная перепланировка пространства квартиры, необходимо было выделить детскую, гардеробную, два сан.узла, кухню-гостиную, а также организовать полноценное спальное место для взрослых.
Другие фотографии в проекте
29 раз сохранено в статьи и альбомы идей:
Добавил(-а) в альбом: Идеи пользователя Марина
Добавил(-а) в альбом: Идеи пользователя Алексей
Добавил(-а) в альбом: Идеи пользователя Екатерина
Вопросы к фото 0
Задайте вопрос
Вам ответят эксперты. Пришлем уведомление, когда вам ответят




