logo

До и после: Квартира в «сталинке» 1957-го года

После того, как родители уехали жить за город, дочь сделала в квартире ремонт на свой вкус

Евгения Назарова
Евгения Назарова

6 окт. 2021

Обновлено 24 янв. 2022

Постоянный автор Houzz, интерьерный журналист

Двухкомнатная квартира в «сталинке» досталась нынешней хозяйке от родителей, которые переехали за город. Первым делом девушка затеяла в ней ремонт, а создание проекта доверила архитекторам студии AR-KA. В интерьерах заказчице нравились все актуальные течения сразу от лофта до бохо. Так в одном эклектичном пространстве подружились предметы с разным стилистическим бэкграундом от имитации кирпичной кладки до килимов ручной работы.
До и после: Квартира в «сталинке» 1957-го годаИлона Болейшиц
О проекте Место: Москва, район Сокол, квартира находится в доме 1957 года постройки Размер: 66 кв. м Кто здесь живёт: молодая девушка Архитекторы: Илона Болейшиц, Игорь Орлов, архитектурная студия AR-KA Фото: Ольга Мелекесцева ——————————————— В ВАШЕМ ГОРОДЕ… ► Через Houzz можно нанять дизайнера или архитектора в любом городе и стране — начать поиск специалиста ———————————————
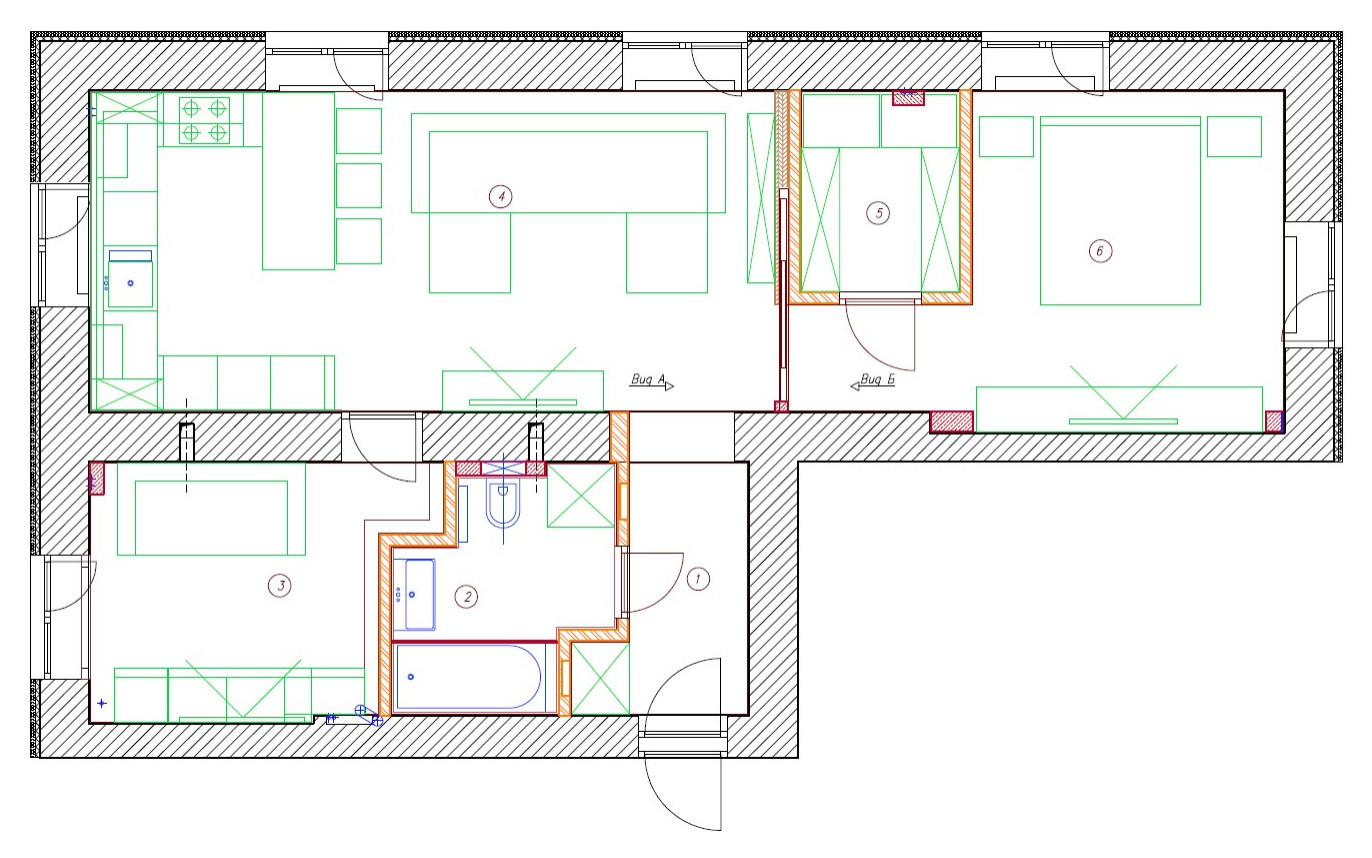
Планировка проекта Квартира находится на первом этаже, поэтому архитекторы были относительно свободны в создании новой планировки. Кухню удалось перенести в гостиную, для этого в квартире обрезали газовые коммуникации. На месте бывшей кухни организовали кабинет. Гостиную сделали проходной, а коридор присоединили к ванной. При спальне добавили гардеробную.
До и после: Квартира в «сталинке» 1957-го годаИлона Болейшиц

До

На фото: фрагмент интерьера до ремонта
До и после: Квартира в «сталинке» 1957-го годаИлона Болейшиц
Обои Elitis ПРИХОЖАЯ Входную зону оформили в тёмных тонах, чтобы визуально отделить от гостиной, где главную роль сыграл белый цвет. Это проверенный временем оптический эффект: после тёмной прихожей открытое пространство гостиной кажется ещё просторнее и светлее.
До и после: Квартира в «сталинке» 1957-го годаИлона Болейшиц

До

На фото: так выглядел коридор в ходе демонтажа
До и после: Квартира в «сталинке» 1957-го годаИлона Болейшиц
ГОСТИНАЯ В портфолио студии этот проект получил название «Линия горизонта» благодаря планировке: все основные помещения расположены анфиладой, по одной оси, и хорошо просматриваются, поэтому их оформили едиными материалами. Например, обои с крупным рисунком бамбука объединяют гостиную и спальню.
До и после: Квартира в «сталинке» 1957-го годаИлона Болейшиц
В гостиной: декоративный кирпич White Hills; обои Carl Robinson; консоль под ТВ ИКЕА; стеллаж Intelligent Design; диван Marac Ещё один фактурный материал в интерьере — плитка, имитирующая кирпич. Её завели на стены по периметру гостиной. « Сначала мы хотели оставить аутентичный кирпич, из которого построены стены дома, но материал оказался непригоден для декоративного оформления » , — вспоминает Илона Болейшиц.
До и после: Квартира в «сталинке» 1957-го годаИлона Болейшиц

До

На фото: так выглядела кирпичная кладка, которую расчистили в ходе демонтажа. Для интерьера она не годилась, поэтому стены выложили искусственным кирпичом
До и после: Квартира в «сталинке» 1957-го годаИлона Болейшиц
Кухонный гарнитур Hanak ; напольная плитка Apavisa КУХНЯ Кухню отделили от общего пространства переходом напольного покрытия от инженерной доски к плитке и барной стойкой. Все столешницы вывели в уровень подоконника.
До и после: Квартира в «сталинке» 1957-го годаИлона Болейшиц
Хозяйка много готовит, поэтому гарнитур сделали П-образным, с большим количеством систем хранения и обширной рабочей поверхностью. Торец кухни, который выходит к гостиной, оформили полками — на них можно выставлять красивую посуду. В нижней части торца есть небольшой секрет — короб для установки электрики глубиной 10 см. Он и обусловил появление полок, которые помогли его декоративно обыграть.
До и после: Квартира в «сталинке» 1957-го годаИлона Болейшиц

До

На фото: так выглядела кухня в ходе демонтажа, теперь на её месте расположен кабинет; чтобы сделать такую перепланировку, пришлось обрезать газовые коммуникации
До и после: Квартира в «сталинке» 1957-го годаИлона Болейшиц
Комод и прикроватный столик ИКЕА; кровать Estetica СПАЛЬНЯ В угловой спальне два окна, поэтому изголовье кровати ориентировали к одному из них. Тропический рисунок поддержали фоновыми обоями очень светлого зелёного цвета, а в качестве акцентов добавили горчичные шторы и текстиль. Декоративное панно из бетона изготовили специально для этого проекта в студии AR-KA.
До и после: Квартира в «сталинке» 1957-го годаИлона Болейшиц
В кабинете: обои Cole & Son; диван Pohjanmaan; тумба ИКЕА; стол и стул — винтажные, достались хозяйке от бабушки КАБИНЕТ Вторая изолированная комната сейчас служит кабинетом, но в будущем может поменять назначение, например, превратиться в детскую.
До и после: Квартира в «сталинке» 1957-го годаИлона Болейшиц
Проблема и решение : чёрный короб играет в проекте важную практическую роль — скрывает канализацию, идущую от расположенной рядом ванной. И заодно служит подставкой д ля хозяйской коллекции картин.
Плитка IL Cavallino ВАННАЯ КОМНАТА В оформлении ванной сочетали два вида плитки — фоновую на основных стенах и акцентную в зоне ванной. В шкаф встроили стиральную машину и полки для полотенец. ——————————————— ХОТИТЕ ЗАКАЗАТЬ ИНТЕРЬЕР АРХИТЕКТОРАМ ЭТОГО ПРОЕКТА… ► Свяжитесь с его авторами в один клик ——————————————— У ВАС ЕСТЬ ДЛЯ НАС ПРОЕКТ… Загрузите съёмку в свой профиль на Houzz, отправьте ссылку с кратким описанием на editorial@flatica.ru Для справки: Какие объекты мы публикуем

Комментарии 38

Ну и жаль, что нет изначального плана с коммуникациями. Тогда бы меньше вопросо по проводке труб возникало
Перепланировка вполне удачная, если исходить из современных веяний. Правда кажется, что уступа в кабинете можно было избежать, сделав СУ чуть меньше. Др дело, что для меня изолированная кухня всегда лучше нежели отгороженая от гостиной. Но для одиночки - норм. Зачем при таком количестве нижних кухонных шкафов еще и верхние - для меня загадка. Очень утяжеляет это пространство. Ну и оформление через чур эклектичное. Как то руки дизайнера совершенно не видно.
Все понравилось. Интересная идея перепланировки. Единственно не ясно со сливом, как он перенесен в гостинную? Обычно если кухня и ванная рядом, то труба слива одна, а от нее уже соединяют с кухней и ванной. Как здесь все сделали?

Оставьте комментарий

Читать похожие статьи