ЖК "ТИМИРЯЗЕВСКИЙ"
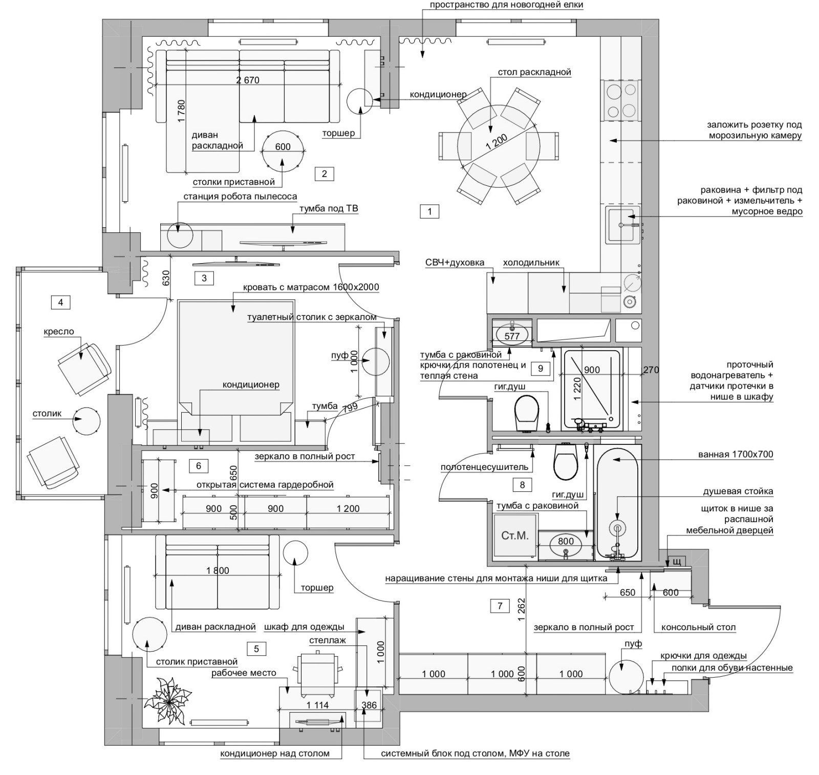
Данная квартира проектировалась для проживания семейной пары. Заказчица работает из дома и занимается йогой, а ее супруг работает в офисе. Они любят принимать гостей дома, в том числе и с ночевкой. . . Обязательным требованием заказчиков было выделение отдельной гардеробной при спальне, а также рабочего кабинета с гостевым спальным местом. . Переносом межкомнатной перегородки между кабинетом и спальней, мы чуть уменьшили зону кабинета, тем самым в заимствованном пространстве образовалась приватная гардеробная комната. . . Кабинет при этом получился небольшой - 11м2, но функциональный, в нем есть полноценный рабочий стол, много места для хранения в шкафу и стеллаже, а также раскладной диван. В комнате 2 окна и за счет большого количества света небольшое помещение визуально не давит и ощущается просторным. . . Также мы объединили кухню с соседней жилой комнатой и получили большое пространство кухни-гостиной с трехместным диваном, ТВ зоной, зоной готовки и обеденным столом на 6 персон, с возможностью увеличения посадочных мест до 10. . . У заказчиков также было желание разместить два полноценных санузла в мокрой зоне. За счет выверенной работы с планировочным решением получилось выделить небольшой санузел со своей душевой кабиной, инсталляцией и раковиной, а также ванную комнату с инсталляцией, раковиной, ванной, стиральной и сушильной машиной. . . Стилистическое решение в данном проекте выдержанно с акцентом на современный минимализм и природные оттенки. Приглушенные тона голубого с зеленым, а также базовые бежевые и серые цвета воспринимаются умиротворяюще, в таком интерьере заказчикам будет приятно находится как длительное время, так и возвращаться после насыщенного рабочего дня. . . Также на руку сыграло большое количество окон, используемые в проекте высокие двери и вертикальные линии в отделке. Все это в сочетании с современной стилистикой и спокойной цветовой палитрой делает пространство выше и шире визуально, добавляя ощущение простора.
29 фотографий




























