ЖК "ДОМ НА НАБЕРЕЖНОЙ"
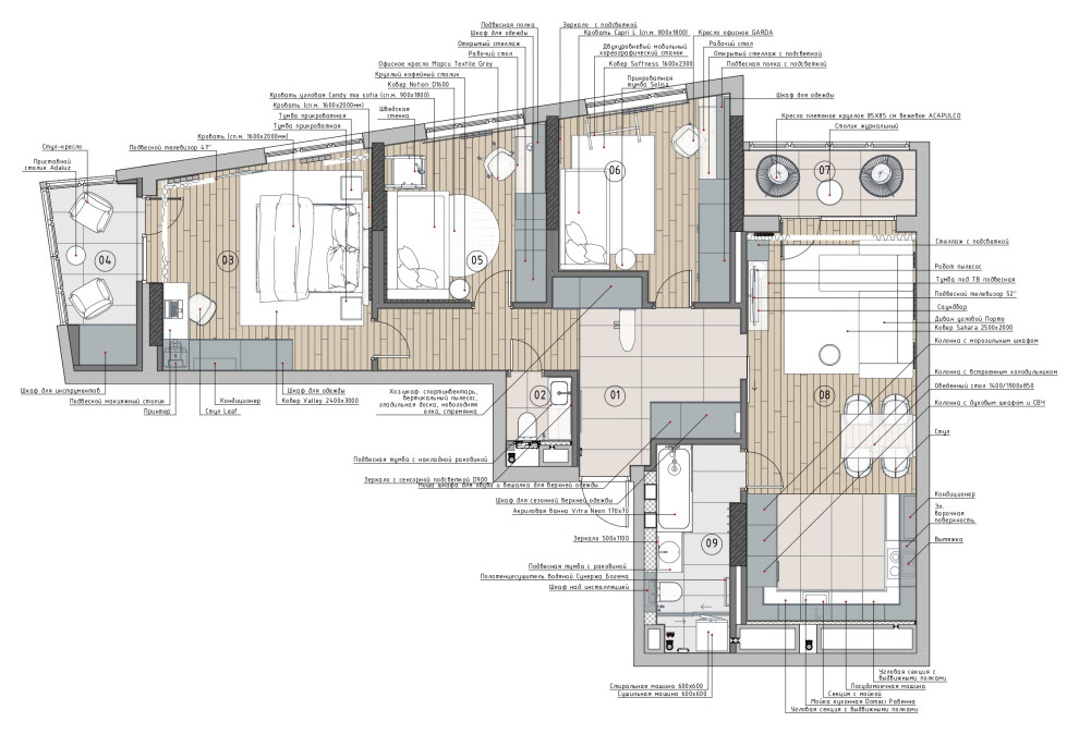
Данный проект был разработан для семьи с двумя детьми. Заказчица занимается детьми и домом, муж заказчицы любит в свободное от работы время отдохнуть на рыбалке. Сын ходит на спортивные секции, а дочка активно занимается гимнастикой. Семья очень активная и гостеприимная. . . В данном проекте главными пожеланием заказчиков были: . - создать максимально уютное домашнее пространство для совместного времяпрепровождения; . - выделить удобную зону для приема гостей; . - изолировать грязную зону прихожей; . - предусмотреть максимум возможных мест для хранения; . - задействовать лоджии в качестве зон отдыха, т.к. вид из квартиры открывается потрясающий, на реку Волгу и знаменитые Нижегородские закаты. . . Для того, чтобы изолировать прихожую мы перенесли вход в ванную комнату из коридора в зону гостиной, тем самым у нас образовалась выделенная зона прихожей, грязь с обуви теперь не будет расползаться по всей квартире, т.к. зона больше не проходная. . . В длинном коридоре, соединяющем спальные зоны с гостиной, в специально обустроенную нишу вписался вместительный хозяйственный шкаф. Одну из дверок шкафа мы выделили припыленным синим цветом в тон коридора, тем самым визуально отрезали длинный коридор в синих тонах от светло-серого холла. Проходное пространство коридор и холла за счет данного приема перестало казаться таким вытянутым. . . Общую зону кухни-гостиной мы изолировали от прихожей раздвижной перегородкой с рифленым матовым стеклом, она не перегружает визуально помещение, но в то же время зонирует пространство для отдыха и входную группу. В гостиной разместился большой диван, чтобы смотреть кино по вечерам всей семьей, а также справа от дивана встал раскладной обеденный стол за которым комфортно принимать гостей. . . Кухня образует П-образную нишу, что также отделяет визуально зону готовки от зоны отдыха. В теплое время из гостиной можно выйти на прилегающую лоджию и полюбоваться шикарными видами сидя в плетеном кресле. . . Чтобы полноценно полюбоваться панорамой в зимнее время, в квартире предусмотрена вторая утепленная лоджия при мастер-спальне. Также в мастер-спальне мы предусмотрели большое пространство для хранения в акцентном зеленом шкафу с золотистыми ручками и объединили его с небольшой рабоче-макияжной зоной. . . В детских комнатах основной акцент был сделан на функциональность. Кровати в угловом пространстве, в которое в дальнейшем поместиться и двуспальная кровать. Обязательная зона хранения и учебы в виде вместительных шкафов со стеллажами и письменным столом. При том столы и шкафы вписаны в одну линию и тем самым не ломают геометрию помещения, а наоборот образуют единую плоскость для учебы и гардероба. Не забыли и про спортивные увлечения детей, в комнате мальчика разместилась полноценная шведская стенка на прочном металлическом каркасе, а в деткой девочки мобильный гимнастический станок с большим зеркалом в полный рост напротив. . . Стилистическое решение квартиры выполнено в смеси современности и классически. Резные фасады шкафа в спальне и периодически встречающиеся молдинги на стенах отлично соседствуют с современной меблировкой, скрытыми дверьми и плинтусами, а также обилием светодиодной подсветки. . . Акцентные цвета использованные в проекте - синий, зеленый и розовый очень мягко и органично смотрятся в базовой серо-бежевой гамме за счет своего приглушенного тона. Используя множество оттенков, выровненных по насыщенности, мы получили не скучное, но в то же время такое спокойное и уютное пространство.
49 фотографий


















































