ЖК Подкова на Цветочной
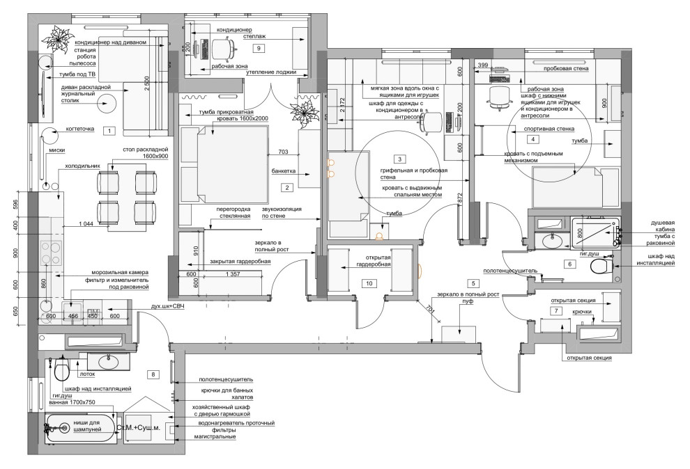
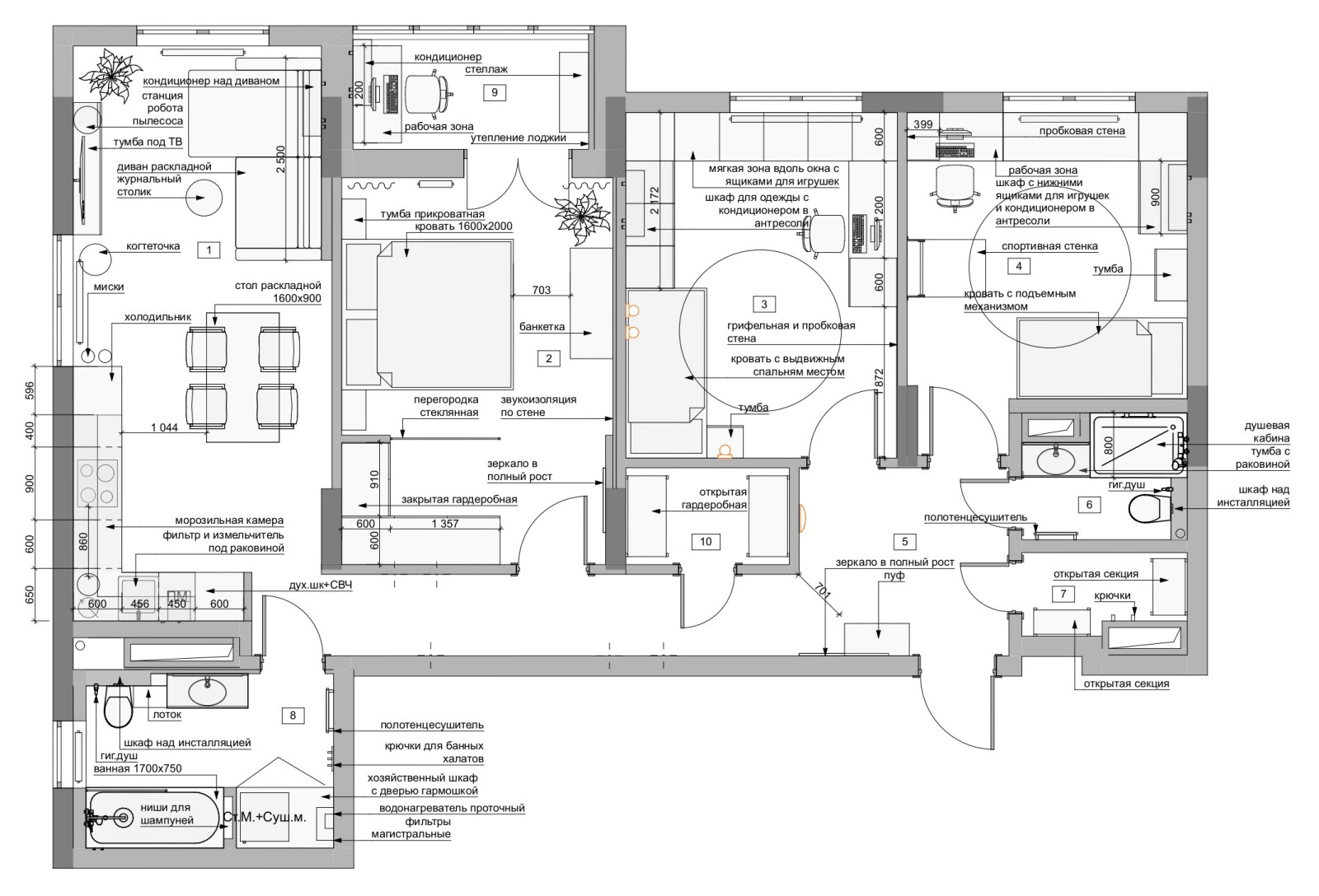
В данной квартире площадью 97 м.кв. будут проживать четверо человек - двое взрослых и двое детей. . . Хозяева квартиры инженеры и для них было крайне важно, чтобы интерьер был функциональным и комфортным для жизни, чтобы каждая деталь была продумана до мелочей. Поэтому мы уделили много внимания именно эргономике и проработке технических решений проекта. . . Цветовая гамма для квартиры была выбрана природных тонов - оттенки зеленого, синего, песочного и серого. Присутствует много деревянных фактур и элементов в стиле джапанди, соединяющего в себе скандинавский уют и восточный минимализм. . . Сложностью в проектировании данной квартиры был длинный коридор, который мы в результате перепланировки разделили на холл квадратной формы и проходную зону самого коридора, тем самым укоротив пространство визуально. Также в результате перепланировки мы выделили пространство для кладовой. В кладовой и гардеробной заложили модульные системы хранения, которые можно трансформировать без затрагивания отделки и тем самым менять конфигурацию хранения под нужды семьи. . . В детских мы оставили много пространства для активностей и творчества, повесили пробковые доски, на которые можно вешать детские рисунки и дипломы, в детской девочки сделали меловую стену, а в детской мальчика спортивную стенку. В детской мальчика также предусмотрели большой стол у окна, что было крайне важно для юного фаната конструктора LEGO. У девочки в комнате мы сделали мягкую зону по всей длине окна, на ней можно уютно расположиться с книгой или присесть родителям во время помощи с уроками. . . В спальне родителей за тонированной стеклянной перегородкой расположилась зона гардеробной. Перегородкой мы отделили зону с массивными шкафами визуально от спальной зоны, но за счет стекла в гардеробной всегда будет естественное освещение, что минимизирует использование искусственного света, а соответственно затрат на электроэнергию. Напротив гардеробной расположилось большое зеркало с подсветкой в полный рост, в него удобно смотреться при составлении образа. Свежий салатовый оттенок стен в спальне в сочетании с глубокой фактурой дерева на шкафах задает спокойную, природную и расслабляющую атмосферу в комнате. . . В кухне-гостиной внимание привлекает фактурная стена под камень с мягкой подсветкой. Тем самым мы подчеркнули обеденную зону. Над столом разместили светильники также напоминающие по форме камни обтесанные водой, древесные фактуры в отделке и мебели также придают этому интерьеру особое заземляющее настроение, в такой гостиной будет невероятно приятно находится после тяжелого рабочего дня, её природная атмосфера замедляет, обволакивает уютом и теплом. За большим диваном будет удобно расположиться вечером всей семьей и поиграть в приставку или вместе посмотреть кино. . . В санузлах мы использовали оттенки белого, синего и серого. За счет обилия белых тонов интерьер смотрится просторно, а синий задает свежие нотки и делает интерьер не пресным. Также мы добавили мягкие диодные подсветки в зоне душевой и зеркал, что позволяет менять атмосферу в санузлах и делать ее более приглушенной и расслабляющей. .
50 фотографий



















































