Загородный соседский центр "Эффект синергии"
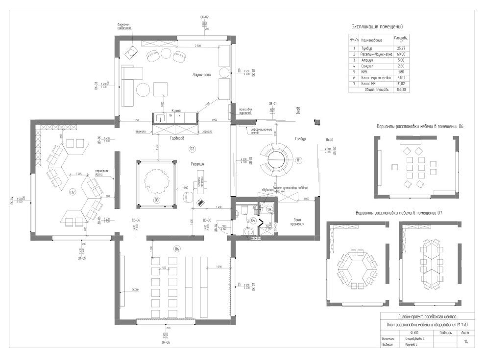
Объект - одноэтажный, каменный дом, расположенный на участке площадью 15 соток в коттеджном поселке Тюменского района. Здание полностью автономное, необычной крестообразной формы, высота потолков 4,0 м, панорамные окна, атриум внутри здания. Котельная и подсобные помещения расположены в отдельном здании на участке. . . Идея проектирования соседского центра продиктована запросом организации разнообразного круглогодичного досуга и возможности общения в обособленном загородном поселке. Пространство создано для объединения людей по интересам, создания сообщества для комфортного общения, обмена взглядами, идеями и обоюдной поддержки друг друга. . . Концепция проекта - открытое пространство, простые и понятные формы, природные оттенки - как источник вдохновения, концентрация на нахождении в моменте и сосредоточение на процессе созидания. Эффект синергии — это слияние человека с природой, соединение родственных душ, и, как следствие, реализации творческих способностей и поддержание "здоровой" атмосферы в социуме. Поэтому целью проектирования было создать лаконичный и современный интерьер. Спроектировать удобное, светлое, функциональное и мобильное пространство для режиссирования широкого спектра мероприятий.
12 фотографий













