Дизайн-проект загородного дома "Там, где живет душа"
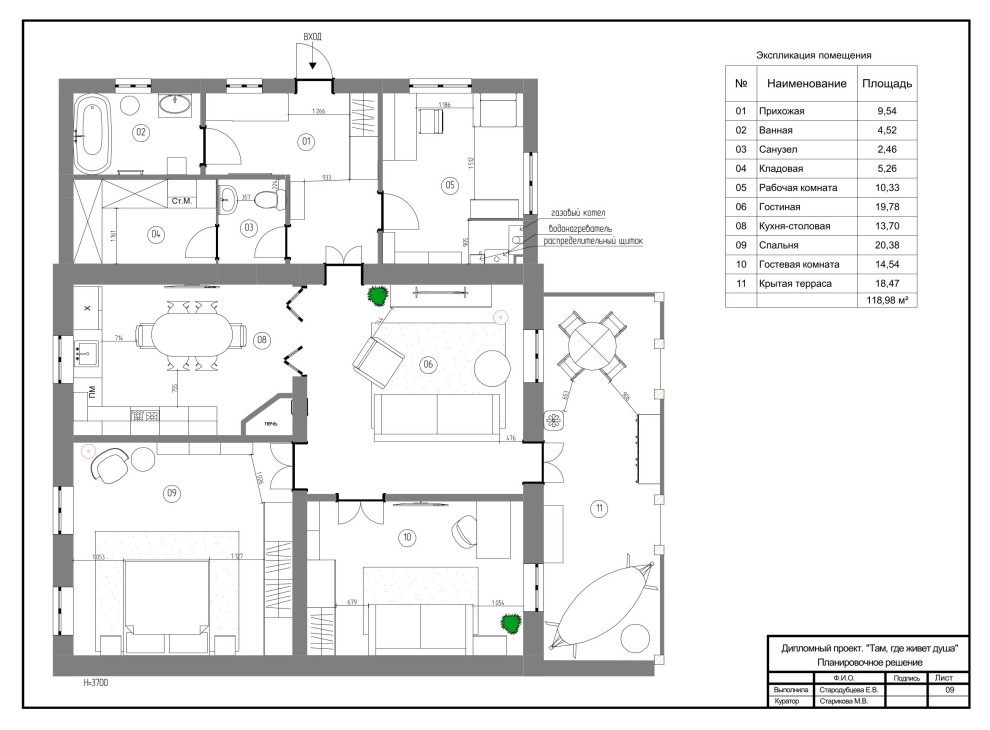
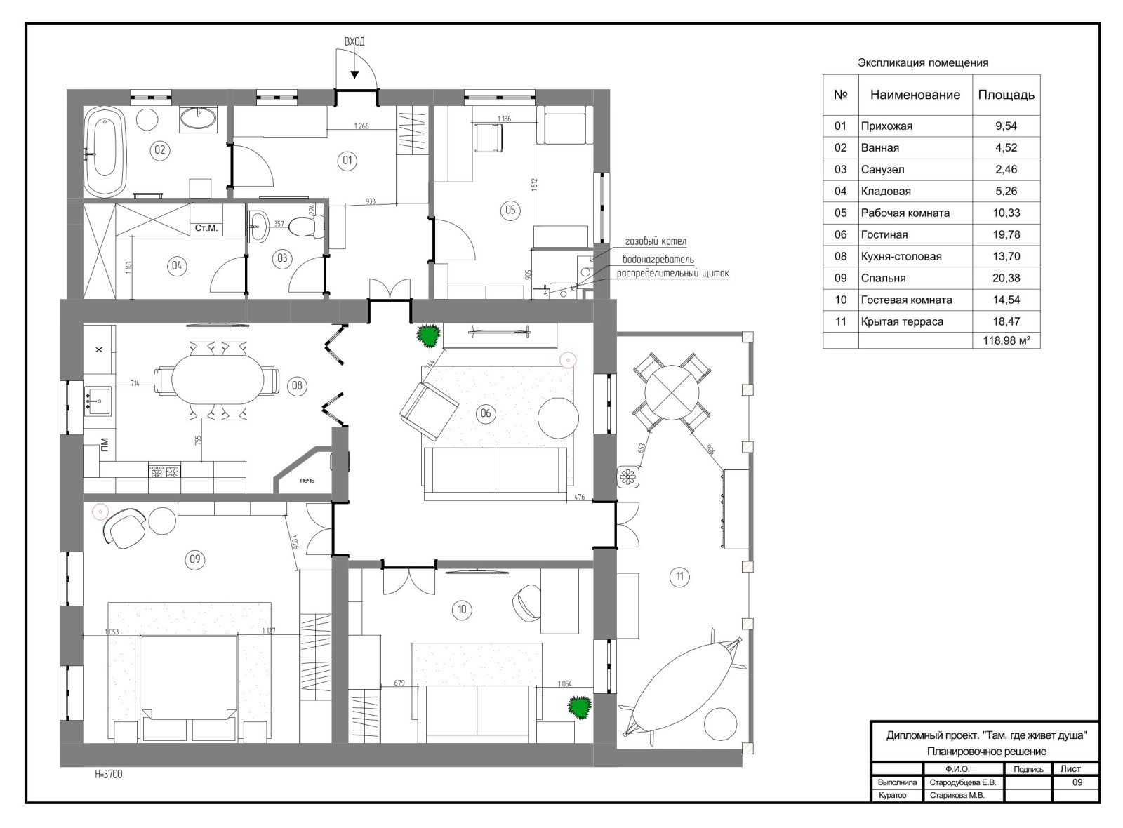
Описание объекта: 1/3 часть в одноэтажном частном доме, г. Сысерть, Свердловской области. . Площадь: 118,98 м2. Дом 1860-х годов постройки. Расположен в культурном центре города, недалеко от набережной Сысертского водохранилища. . Интерьер разработан для семейной пары пенсионного возраста. Заказчики являются вторым поколением семьи, проживающими в этом доме и очень трепетно относятся к его истории. . Концептуальная идея: «Там, где живет душа» – это место для восстановления сил: душевных, эмоциональных и физических. При разработке дизайна были учтены все увлечения заказчиков. А, так же, желание сделать интерьер современным, в спокойных, глубоких тонах. Но при этом оставить сохранившиеся декоративные элементы. Использование природных цветов: коричневый, зеленый, синий - позволяет почувствовать гормонию с собой и природой. Натуральные материалы в мебели и декоре еще больше усиливают связь с природой и родовыми корнями. Интерьер выступает, как точка слияния нескольких эпох. . Проектное решение: Из-за особенности конструкций (несущая стена, делящая дом пополам, растопка печи, выход на террасу и вход в погреб в проходной зоне гостинной) существенная перепланировка не представляется возможной. В данной зоне расположили проходную гостинную. В спальне предусмотрено многоуровневое световое решение для любителей почитать в кровати. В 3-х комнатах созданы системы хранения книг и обустроены комфортные зоны для их прочтения. В гостевой комнате организованы спальная и рабочая зоны, а так же система хранения. Сделан акцент на печи в помещении, где расположен ее «фасад». Кухня-столовая отделена от гостинной стеклянной, распашной перегородкой. При необходимости возможно создать кулуарность помещения, полностью закрыв все створки перегородки. Санузлы, кладовка и рабочая комната вынесены в пристрой. В небольшой прихожей предусмотрена вместительная система хранения. Ванная комната имеет окно, что создает дополнительное, естественное освещение и простор. В кладовку, совмещенную с постирочной, можно попасть через туалет. В рабочей комнате выделено место под лабораторию для винокурни хозяина. Открытая терраса разделена на зону для общения/принятия пищи и зону лаунжа с гамаком. . В 2-х помещениях – спальне и кухне – сохранены исторические потолки с потолочным и стеновым декором. В поддержку классического стиля все потолки имеют подобный декор. В большинстве комнат восстановлены исторические размеры и форма дверей. Пол отделан современными материалами, натуральных цветов. В жилых помещениях - это паркетная доска, в остальных – керамогранит. В отделке стен в основном использована краска насыщенных цветов. Высокие потолки позволяют смело использовать темные цвета. Сложное световое решение (подвесные светильники, бра, светодиодная подсветка стен и мебели, торшеры и настольные лампы) даёт возможность использовать разные сценарии освещения.
9 фотографий










