Загородный дом-баня из профилированного бруса "Ступино"
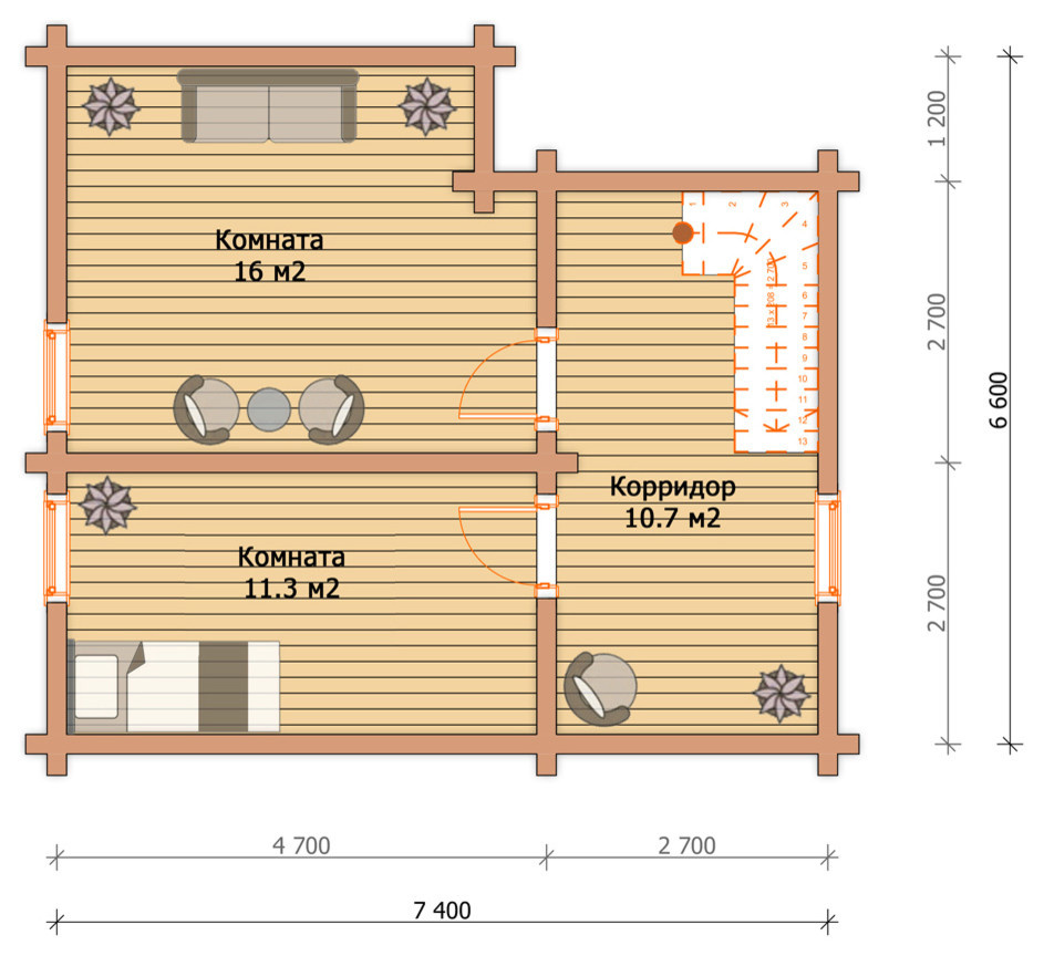
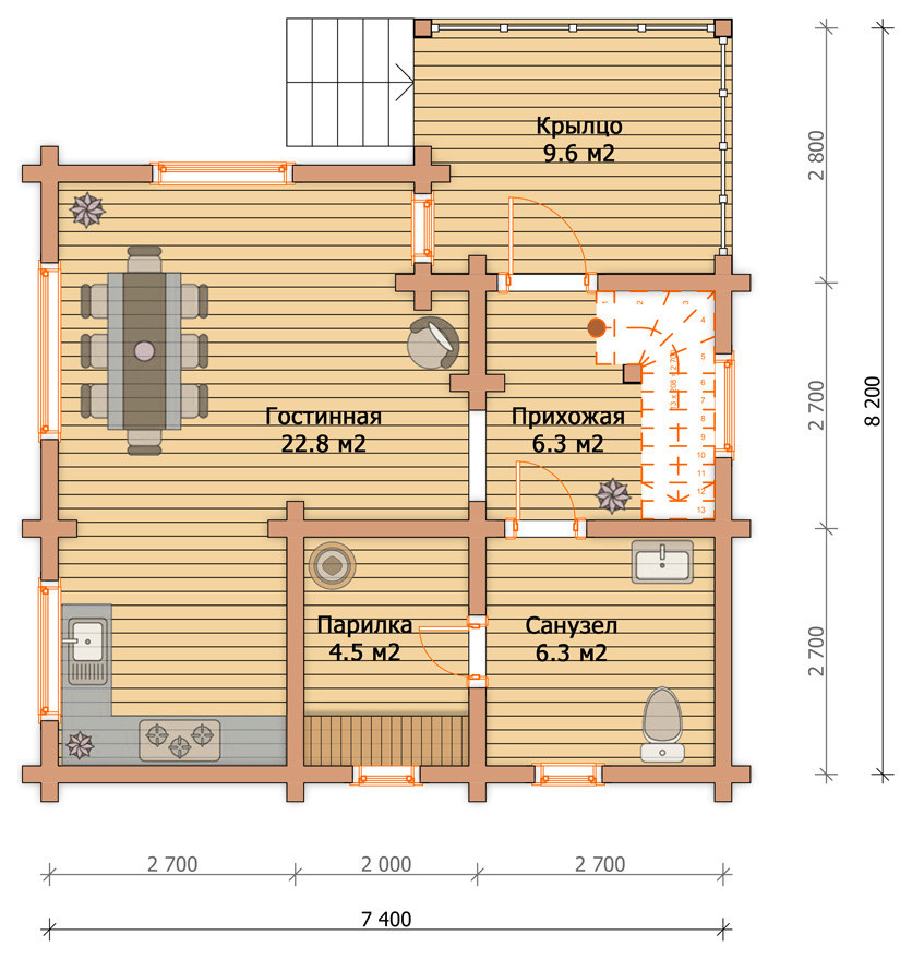
Общая площадь . 87,5 м² . Отапливаемая площадь . 77,91 м² . Площадь застройки . 58,9 м² . Габариты дома . 7х8 м . Срок строительства . 25 дней . Кол-во этажей . 2 этажа . Проект "Ступино" производится из профилированного бруса сечением 200х150 массив естественной влажности, камерной сушки и клееный брус.
Год реализации: 2017
Стоимость проектирования: 2 450 000 ₽
г. Сергиев Посад, 103 Вознесенская улица
7 фотографий






