Дом из профилированного бруса "Яхрома"
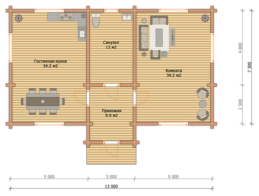
Общая площадь . 95,5 м² . Отапливаемая площадь . 91,3 м² . Площадь застройки . 107 м² . Габариты дома . 8,5х13 м . Срок строительства . 20 дней . Кол-во этажей . 1 этаж . Дом "Яхрома" производится из профилированного бруса сечением 200х150 массив естественной влажности, камерной сушки или клееный брус.
Стоимость проектирования: 2 450 000 ₽
г. Сергиев Посад, 103 Вознесенская улица
6 фотографий







