Баня из профилированного бруса "Куровское"
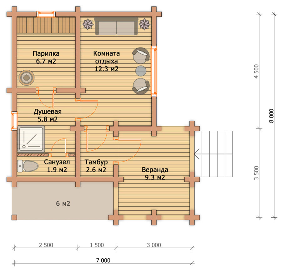
Общая площадь . 46,7 м² . Отапливаемая площадь . 29,3 м² . Площадь застройки . 55,4 м² . Габариты дома . 7х8 м . Срок строительства . 15 дней . Кол-во этажей . 1 этаж . Баня "Куровское" производится из профилированного бруса сечением 200х150 массив естественной влажности, камерной сушки или клееный брус.
Год реализации: 2015
Стоимость проектирования: 1 050 000 ₽
г. Сергиев Посад, 103 Вознесенская улица
6 фотографий







