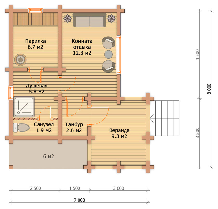
Баня из профилированного бруса "Куровское"

Другие фотографии в проекте Баня из профилированного бруса "Куровское"

Баня из профилированного бруса "Куровское"
Баня из профилированного бруса "Куровское"
Баня из профилированного бруса "Куровское"
Баня из профилированного бруса "Куровское"
Баня из профилированного бруса "Куровское"

Вопросы к фото 0

Задайте вопрос

Вам ответят эксперты. Пришлем уведомление, когда вам ответят

Бани, Сергиев Посад, Традиционный, проект бани из бруса, проекты деревянных бань, проекты деревянных домов, профилированный брус, строительство деревянных домов