Welna House
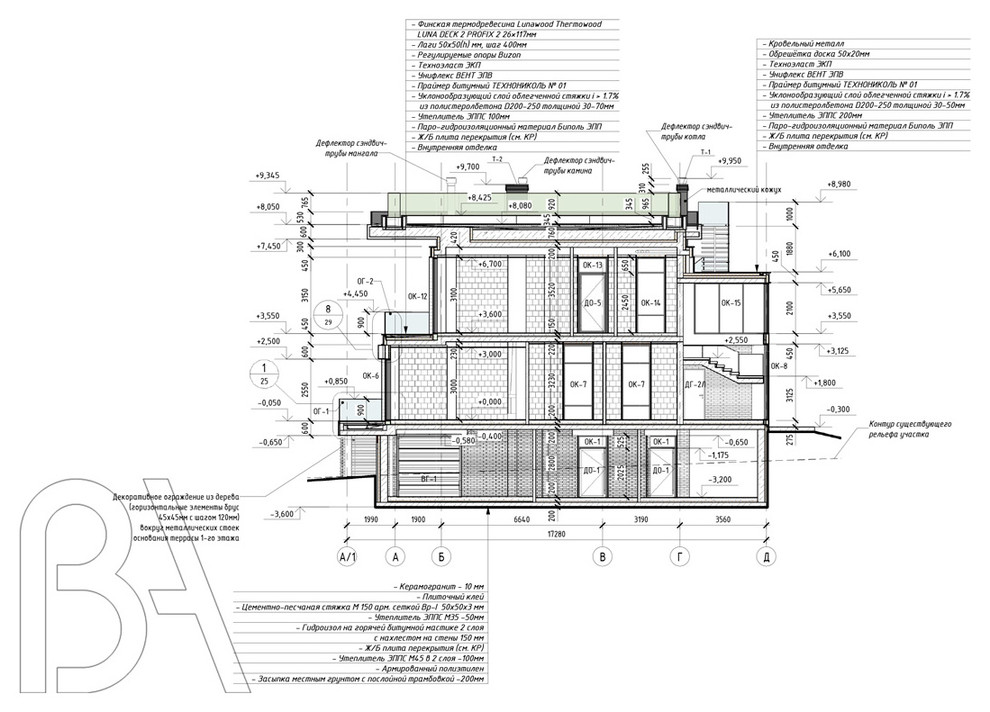
Welna house . Местоположение: Россия, Калужская область, район г. Таруса . Дом трёхэтажный с подвалом, размером в плане в общих габаритах 17,35х18,12м. . Объемно-планировочным решением запроектировано размещение на первом этаже : крыльца, прихожей с лестницей, гостевого с/у, гардеробной, двух гостевых спален, столовой с кухней, террасы с летней кухней, террасы с лаундж зоной, террас под навесом и консолью второго этажа. В подвале размещаются: терраса с навесом, инвентарная, топочная, кладовая-гараж. На втором этаже располагаются: холл с лестницей, гостевой с-у, гостиная-столовая- кухня, ванная, хозяйская спальня, гардеробная, балкон. На третьем этаже располагаются: эксплуатируемая . кровля, лестница на кровлю. . Высота подвала 2,8м, первого этажа - в чистоте 3,10м и 3,23м, второго этажа - 3,52м. Первый этаж размещается относительно площадки парковки на уровне +0,05м,- 0,11м. Высота жилого дома в коньке от проектируемого уровня отмостки при главном входе в дом составляет +8.58м. . Здание имеет шесть входов: главный вход, вход в столовую первого этажа, вход в кухню, вход в топочную, вход в инвентарную, вход в кладовую-гараж. Внутренняя лестница связывает холлы первого, второго этажей, наружная лестница связывает террасу с летней кухней первого этажа и эксплуатируемую кровлю на третьем этаже. Также на промежуточную площадку наружной лестницы можно попасть из помещения гардероба второго этажа. . . Общая площадь дома (БТИ) - 361,75м2 . Жилая площадь дома - 212,85м2 . Строительный объем дома - 916,78м3 в том числе ниже 0.000 - 188,95м3 . Площадь застройки - 255,14м2 . Верхняя отметка дома в коньке от ур. гл.входа +8.580
14 фотографий















