Twisted house
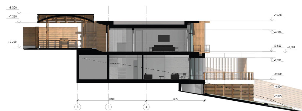
Двухуровневый дом запроектирован на берегу Черного моря с учетом сложного рельефа, с перепадом 14м, на узком участке. Объемно-пространственная композиция представлена в виде трех объемов. Первый - это интегрированный наполовину в рельеф жилой дом отделенный п-образной в плане подпорной стенкой. Функционально-планировочное решение дома создает возможность полной автономии для старшего и младшего поколений, здесь на разных этажах размещены две общественные зоны (гостиная-кухня-столовая), сопутствующие спальни с ваннами, технический блок с сауной и лестницей. Второй объем - это кубическая форма, венчающая вход, представляет навес для автомобилей, выполненной в виде деревянной сетчатой перголы с ярко выраженным внутренним сводом, создающим сразу при въезде на участок ощущение камерности, приватности и комфорта. Третий объем - это S-образная в плане терраса первого этажа, визуально “обнимающая” дом. Главный фасад жилого дома и террасы повернут в сторону наиболее удачного вида на море, ограниченного по бокам кипарисами, закрывающими неприглядную соседскую застройку и создающий ощущение близости участка к морю за счет слияния края подпорной стенки внизу участка с удаленной на 600м береговой линией. Дом выполнен из экологических материалов- дерево, бетон, сланец, вторичных материалов. Существует возможность установки инженерии на плоской крыше: кондиционирования и солнечных батарей на кровле дома. . . Жилая площадь-179м2 Общая площадь-289м2 Площадь застройки-273м2
18 фотографий



















