Квартира с этническими мотивами
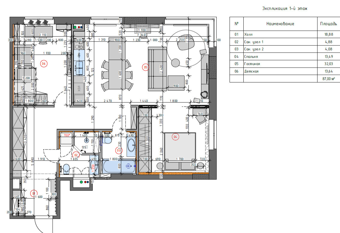
Площадь 86кв.м. Практически весь проект мы делали удалённо и с большой разницей во времени - клиенты живут и работают очень далеко, на экваториальном острове. Клиенты просили большую кухню-гостиную, никакого цвета в отделке, много дерева и очень хотели пол из американского ореха. Планировку меняли очень мало - сделали вход в спальню из гостиной, так зона хранения в спальне стала больше и лаконичнее. Но спальня все равно очень небольшая, поэтому мы сделали широкий раздвижные двери на входе, когда они открыты нет ощущения маленького пространства. Еще мы сместили стенку между 2 санузлами, сделали ее толще, чтобы с одной стороны в ней уместилась инсталляция для унитаза, с другой (над инсталляцией) – полки в душевой. Большой длинный коридор на входе, который совершенно нельзя убрать, пришлось просто сделать большую зону хранения, часть коридора мы все же убрали, сделав вход в спальню из кухни-гостиной. В гостиной есть шикарное угловое окно, вообще тут красивые высокие окна с черными рамами, низкими подоконниками. Мы подчеркнули пропорции окон откосами из дуба. В угловом окне вышел широкий подоконник, можно даже сидеть там с книгой, к сожалению вид из окна - на близко расположенный торговый центр с яркой иллюминацией по вечерам. В квартире две спальни - мастер спальня и кабинет со спальным местом. Ванная комната и душевая с блоком для стирки. Большая кухня-гостиная. Клиенты планировали позже привезти этнические маски и скульптуры из Папуа Новая Гвинея. И мы делали интерьер, где с одной стороны такие маски смотрелись бы органично, с другой – чтобы интерьер оставался европейским и лаконичным. Клиенты попросили проект – БЕЗ цвета, но им очень нравилось дерево. Мы использовали оттенки теплого серого, бежевого и сочетание дерева - орех, тик на полу в санузлах, шпон дуб в мебели. Мы выбирали лаконичные скандинавские бренды, Но вся концепция зародилась когда мы нашли сочетание люстры над обеденным столом – KIT POP-UP от Ole lighting, плетеной, но очень нейтральной по свету, над деревянным столом из тика ethnicraft. Простая, нейтральная по цвету, испанская, но формы и само плетение – отсылает нас к ручной работе. В проекте – очень лаконичная современная мебель, сантехника, свет скандинавских и итальянских брендов. Но есть ощущение экзотики, экваториальных лесов, хижин и отелей. ничего конкретного, просто воспоминание о поездках в экзотические страны. Еще мы стремились подчеркнуть красоту натурального дерева и сделать интерьер очень тактильным и очень спокойным в противовес суматохи Москвы и ярким вывескам за окном. Везде предусмотрены расслабляющие, очень теплые сценарии освещения, которые здорово работают с деревом. В проекте большое количество дерева, причем тик и орех имеют яркий интенсивный рисунок, чтобы это уравновесить – остальная отделка – штукатурка на стенах и потолке, плитка в санузлах – очень спокойные и нейтральные. Декор: Кубквадрат Понамарева Татьяна и Ольга Елизарова Фото: Диана Вишкурцева
42 фотографии











































